
Kings Road, Ilkley, West Yorkshire, LS29

- PROPERTY TYPE
Detached
- BEDROOMS
5
- BATHROOMS
2
- SIZE
1,751 sq ft
163 sq m
- TENUREDescribes how you own a property. There are different types of tenure - freehold, leasehold, and commonhold.Read more about tenure in our glossary page.
Freehold
Key features
- Excellent location within walking distance of amenities
- In need of updating
- Double garage
- Large gardens
Description
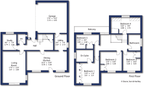
Enjoying an excellent location is this appealing five bedroom detached family home that is now in need of a degree of modernisation. The accommodation is arranged over two floors and includes to the ground floor an entrance hall, generous through sitting room with glazed sliding doors to the rear garden, a good sized dining kitchen also with rear access, study, cloakroom/WC and utility room with access to the integral double garage. Stairs lead to the first floor landing which features sliding glazed doors to a balcony. To the first floor are five good sized bedrooms, one with an ensuite shower room, and a house bathroom. To the outside, the property enjoys a generous plot with a garden to the front and driveway parking providing access to the double garage, whilst to the rear is a good sized garden which is predominantly laid to lawn and also features a paved seating area.
Ilkley needs little introduction as a place to live. The town offers a lovely living environment set amidst the unspoilt open countryside of the Wharfe Valley. Ilkley is renowned for its first-class shopping amenities, and for a broad choice of restaurants, tea rooms and other social amenities.
The surrounding countryside offers many opportunities for rural pursuits, and there are highly regarded sports clubs catering for golf, rugby, tennis and squash. The town is well positioned for the West Yorkshire business traveller and has its own railway station within comfortable walking distance of Kings Road, from which there are frequent services throughout the day into the local cities of Leeds and Bradford.
Agent's Notes:
Solar panels are installed to the roof at the front of the property.
Tenure
Freehold
Local Authority & Council Tax Band The City of Bradford Metropolitan District Council, Council Tax Band G
Services
All mains services are installed. Gas-fired central heating.
Parking
Integral double garage and off street driveway parking.
From our office in the heart of town head westward down The Grove and as the road bends to the right carry straight on, on to Grove Road. Proceed for three quarters of a mile and at the cross roads turn right on to Victoria Avenue, then first left on to Kings Road where the property will be found after a short distance on the right hand side.
Brochures
Particulars- COUNCIL TAXA payment made to your local authority in order to pay for local services like schools, libraries, and refuse collection. The amount you pay depends on the value of the property.Read more about council Tax in our glossary page.
- Band: G
- PARKINGDetails of how and where vehicles can be parked, and any associated costs.Read more about parking in our glossary page.
- Garage,Driveway,Off street
- GARDENA property has access to an outdoor space, which could be private or shared.
- Yes
- ACCESSIBILITYHow a property has been adapted to meet the needs of vulnerable or disabled individuals.Read more about accessibility in our glossary page.
- Ask agent
Kings Road, Ilkley, West Yorkshire, LS29
Add an important place to see how long it'd take to get there from our property listings.
__mins driving to your place
Get an instant, personalised result:
- Show sellers you’re serious
- Secure viewings faster with agents
- No impact on your credit score
Your mortgage
Notes
Staying secure when looking for property
Ensure you're up to date with our latest advice on how to avoid fraud or scams when looking for property online.
Visit our security centre to find out moreDisclaimer - Property reference CSC250304. The information displayed about this property comprises a property advertisement. Rightmove.co.uk makes no warranty as to the accuracy or completeness of the advertisement or any linked or associated information, and Rightmove has no control over the content. This property advertisement does not constitute property particulars. The information is provided and maintained by Dacre Son & Hartley, Ilkley. Please contact the selling agent or developer directly to obtain any information which may be available under the terms of The Energy Performance of Buildings (Certificates and Inspections) (England and Wales) Regulations 2007 or the Home Report if in relation to a residential property in Scotland.
*This is the average speed from the provider with the fastest broadband package available at this postcode. The average speed displayed is based on the download speeds of at least 50% of customers at peak time (8pm to 10pm). Fibre/cable services at the postcode are subject to availability and may differ between properties within a postcode. Speeds can be affected by a range of technical and environmental factors. The speed at the property may be lower than that listed above. You can check the estimated speed and confirm availability to a property prior to purchasing on the broadband provider's website. Providers may increase charges. The information is provided and maintained by Decision Technologies Limited. **This is indicative only and based on a 2-person household with multiple devices and simultaneous usage. Broadband performance is affected by multiple factors including number of occupants and devices, simultaneous usage, router range etc. For more information speak to your broadband provider.
Map data ©OpenStreetMap contributors.






