
Coach Road, Acrefair, Wrexham

- PROPERTY TYPE
Detached
- BEDROOMS
2
- BATHROOMS
2
- SIZE
Ask agent
- TENUREDescribes how you own a property. There are different types of tenure - freehold, leasehold, and commonhold.Read more about tenure in our glossary page.
Freehold
Key features
- 2 BEDROOM DETACHED COTTAGE
- POPULAR SEMI RURAL VILLAGE LOCATION
- 3 RECEPTION ROOMS
- LARGE GARDENS AND OUTBUILDINGS
- OIL CENTRAL HEATING
- PLEASANT OPEN ASPECT TO REAR
- AMPLE OFF ROAD PARKING FOR A NUMBER OF VEHICLES
- GARAGE/WORKSHOP
- VIEWINGS HIGHLY RECOMMENDED
Description
DIRECTIONS: From the Agents Wrexham Office proceed out of The City passing the football ground on the right hand side and at the main Wrexham roundabout turn left on to the bypass. Proceed down the bypass taking the 4th exit for Llangollen and at the mini roundabout turn right and proceed across three roundabouts and in the Llangollen direction. On entering Acrefair turn Right into Bethania Road and proceed along Bethania to the junction turning right onto Bowers Road and proceed for about 0.4 miles and the property will be noted on the left via the Molyneux for Sale Sign.
LOCATION: Situated in a popular and sought after semi rural location with easy access to village amenities, Wrexham City centre facilities and the main road network for commuting to Chester city centre and the surrounding areas of employment.
HEATING Oil fired radiator heating installed operated by an outside Worcester boiler.
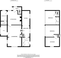
ENTRANCE HALL: Panelled radiator. Built in storage cupboards. Tiled floor. Door leading to side of property.
KITCHEN/DINER: 25' 0" x 6' 7" (7.62m x 2.01m) 2 panelled radiators.The kitchen is fitted with a comprehensive range of wall and base units with worktop surfaces and inset bowl and drainer and splash back tiling with integrated dish washer. Space for cooker with extractor hood above. Tiled floor. Staircase leading to bedroom one.
BEDROOM 1: 12' 0" x 7' 8" (3.66m x 2.34m) Panelled radiator. Tv point. Fitted range of wardrobe facilities and dressing table with Kneehole. Window to side elevation.
BATHROOM: Panelled radiator. Fitted 3 piece white suite comprising wc, wash hand basin and panelled bath with shower above.
LOUNGE/DINER: 20' 2" x 12' 3" (6.15m x 3.73m) 2 Panelled radiators. Windows to side and rear elevations.
STUDY: 9' 3" x 6' 5" (2.82m x 1.96m) Panelled radiator. Fitted desk unit and wall mounted shelving. Window to side elevation.
SITTING ROOM: 11' 10" x 9' 4" (3.61m x 2.84m) Panelled radiator. Feature beamed ceiling. Oil fired log burner set in a feature brick fireplace with timber mantle above.
SHOWER ROOM(DOWNSTAIRS) Fitted 3 piece white suite comprising wc, wash hand basin and large tiled shower enclosure with fitted shower. Built in storage cupboard.Tiled floor.Tiled walls.
FRONT PORCH: Panelled radiator. Stairs rising to 2nd bedroom. Door leading to front of property.
BEDROOM 2: 11' 4" x 11' 0" (3.45m x 3.35m) Panelled radiator. Fitted range of 4 door wardrobe facilities. Window to front and side elevation.
OUTSIDE: The outside space is a particular feature of the property being extremely generous in size and being approached by a farm style entrance gate opening onto a driveway which provides multiple parking space and leads to the garage/workshop with double entrance doors, power and lighting and fitted log burner. The front garden is lawned and extends to the right hand side of the property where there is a brook to the side elevation and former chicken coop and garden store. To the rear there are steps leading up to a patio area and summerhouse and the rear is stocked with various flowers and shrubs and the rear offers a pleasant aspect with views across open farm land. Further two outside stores and wc. Greenhouse. Outside tap.
- COUNCIL TAXA payment made to your local authority in order to pay for local services like schools, libraries, and refuse collection. The amount you pay depends on the value of the property.Read more about council Tax in our glossary page.
- Band: C
- PARKINGDetails of how and where vehicles can be parked, and any associated costs.Read more about parking in our glossary page.
- Yes
- GARDENA property has access to an outdoor space, which could be private or shared.
- Yes
- ACCESSIBILITYHow a property has been adapted to meet the needs of vulnerable or disabled individuals.Read more about accessibility in our glossary page.
- Ask agent
Coach Road, Acrefair, Wrexham
Add an important place to see how long it'd take to get there from our property listings.
__mins driving to your place
Explore area BETA
Wrexham
Get to know this area with AI-generated guides about local green spaces, transport links, restaurants and more.
Get an instant, personalised result:
- Show sellers you’re serious
- Secure viewings faster with agents
- No impact on your credit score
Your mortgage
Notes
Staying secure when looking for property
Ensure you're up to date with our latest advice on how to avoid fraud or scams when looking for property online.
Visit our security centre to find out moreDisclaimer - Property reference 101307033145. The information displayed about this property comprises a property advertisement. Rightmove.co.uk makes no warranty as to the accuracy or completeness of the advertisement or any linked or associated information, and Rightmove has no control over the content. This property advertisement does not constitute property particulars. The information is provided and maintained by Molyneux, Wrexham. Please contact the selling agent or developer directly to obtain any information which may be available under the terms of The Energy Performance of Buildings (Certificates and Inspections) (England and Wales) Regulations 2007 or the Home Report if in relation to a residential property in Scotland.
*This is the average speed from the provider with the fastest broadband package available at this postcode. The average speed displayed is based on the download speeds of at least 50% of customers at peak time (8pm to 10pm). Fibre/cable services at the postcode are subject to availability and may differ between properties within a postcode. Speeds can be affected by a range of technical and environmental factors. The speed at the property may be lower than that listed above. You can check the estimated speed and confirm availability to a property prior to purchasing on the broadband provider's website. Providers may increase charges. The information is provided and maintained by Decision Technologies Limited. **This is indicative only and based on a 2-person household with multiple devices and simultaneous usage. Broadband performance is affected by multiple factors including number of occupants and devices, simultaneous usage, router range etc. For more information speak to your broadband provider.
Map data ©OpenStreetMap contributors.








