
Claytons Corner, Birdham, Chichester, PO20

- PROPERTY TYPE
End of Terrace
- BEDROOMS
3
- BATHROOMS
2
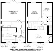
- SIZE
1,100 sq ft
102 sq m
- TENUREDescribes how you own a property. There are different types of tenure - freehold, leasehold, and commonhold.Read more about tenure in our glossary page.
Freehold
Key features
- 1 of 5 Exclusive New Build Properties
- 3 double bedrooms
- 2 allocated parking spaces
- Underfloor heating downstairs
- Downstairs WC
- Open plan sitting/dining room
- Sylvarna kitchen with quality integrated appliances
- High quality new build
- Landscaped gardens
- Village location close to the harbour and popular beaches
Description
Situated in the heart of Birdham village, within easy reach of Chichester Harbour, the property is finished to an exceptional standard with a Sylvarna kitchen, underfloor heating to the ground floor and three double bedrooms.
DESCRIPTION:
Claytons Corner is an exclusive collection of five individual homes built by a local, award-winning construction company. Each property has been completed to a high specification, combining unique architectural features with modern construction standards and energy efficiency. Constructed of handmade red brick and timber cladding beneath a clay-tiled roof, Plot 3 is an end-of-terrace three-bedroom house with a spacious internal layout and beautiful gardens.
The ground floor provides a spacious entrance hall with cloakroom and WC, a fitted Sylvarna kitchen with quartz worktops and integrated appliances, and a large open plan sitting/dining room with double doors leading to the paved terrace and landscaped rear garden.
On the first floor, there are three bedrooms and a well-appointed family bathroom. Heating is supplied by an air source heat pump, with underfloor heating throughout the ground floor. There is a large, boarded loft space which spans the length of the property for storage, accessible by a loft hatch and extending foot ladder in the 3rd double bedroom.
The front door is accessed by a brick path from Crooked Lane. There is parking for two cars directly next to the house within the development to offer secure off-street parking for two cars and easy access to the front and rear of the property.
LOCATION:
Church Lane lies at the centre of Birdham, a popular harbour-side village offering a convenience store, primary school, public hall and marina. The property is well positioned for access to Chichester Marina, the sailing clubs at Itchenor and Bosham, and the beaches at West Wittering.
The cathedral city of Chichester lies approximately 5 miles to the north-east and provides a comprehensive range of shops, restaurants and cultural attractions, including the Festival Theatre and Pallant House Gallery. There is a mainline rail service to London Victoria, and road access via the A27 to Brighton, Portsmouth and Southampton. The South Downs National Park lies just to the north, and the area is well served by both state and independent schools.
INFORMATION:
Tenure: Freehold
Services: Mains water, electricity and drainage. Heating via air source heat pump.
Council Tax: Band [TBC]
Local Authority: Chichester District Council
EPC Rating: [TBC] – certificate available on request
Warranty: ICW 10-year structural warranty
Brochures
Particulars- COUNCIL TAXA payment made to your local authority in order to pay for local services like schools, libraries, and refuse collection. The amount you pay depends on the value of the property.Read more about council Tax in our glossary page.
- Band: TBC
- PARKINGDetails of how and where vehicles can be parked, and any associated costs.Read more about parking in our glossary page.
- Yes
- GARDENA property has access to an outdoor space, which could be private or shared.
- Yes
- ACCESSIBILITYHow a property has been adapted to meet the needs of vulnerable or disabled individuals.Read more about accessibility in our glossary page.
- Ask agent
Energy performance certificate - ask agent
Claytons Corner, Birdham, Chichester, PO20
Add an important place to see how long it'd take to get there from our property listings.
__mins driving to your place
Get an instant, personalised result:
- Show sellers you’re serious
- Secure viewings faster with agents
- No impact on your credit score
Your mortgage
Notes
Staying secure when looking for property
Ensure you're up to date with our latest advice on how to avoid fraud or scams when looking for property online.
Visit our security centre to find out moreDisclaimer - Property reference CHO250367. The information displayed about this property comprises a property advertisement. Rightmove.co.uk makes no warranty as to the accuracy or completeness of the advertisement or any linked or associated information, and Rightmove has no control over the content. This property advertisement does not constitute property particulars. The information is provided and maintained by Stride and Son, Chichester. Please contact the selling agent or developer directly to obtain any information which may be available under the terms of The Energy Performance of Buildings (Certificates and Inspections) (England and Wales) Regulations 2007 or the Home Report if in relation to a residential property in Scotland.
*This is the average speed from the provider with the fastest broadband package available at this postcode. The average speed displayed is based on the download speeds of at least 50% of customers at peak time (8pm to 10pm). Fibre/cable services at the postcode are subject to availability and may differ between properties within a postcode. Speeds can be affected by a range of technical and environmental factors. The speed at the property may be lower than that listed above. You can check the estimated speed and confirm availability to a property prior to purchasing on the broadband provider's website. Providers may increase charges. The information is provided and maintained by Decision Technologies Limited. **This is indicative only and based on a 2-person household with multiple devices and simultaneous usage. Broadband performance is affected by multiple factors including number of occupants and devices, simultaneous usage, router range etc. For more information speak to your broadband provider.
Map data ©OpenStreetMap contributors.








