Wilton Avenue, Walker, Newcastle upon Tyne, Tyne and Wear, NE6 2TT

- PROPERTY TYPE
Semi-Detached
- BEDROOMS
3
- BATHROOMS
3
- SIZE
Ask agent
- TENUREDescribes how you own a property. There are different types of tenure - freehold, leasehold, and commonhold.Read more about tenure in our glossary page.
Freehold
Key features
- Three Bedrooms
- Three Bathrooms
- Semi-Detached House
- No Upper Chain
- Double glazed and Gas Central Heating
- Close to Local Amenities and Transport Links
- EPC: TBC
Description
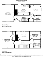
The accommodation comprises; entrance hall with stairs to the first floor, lounge, ground floor WC, dining kitchen with a good range of wall and base units, complimenting work surfaces, built in electric hob, oven and grill, integrated microwave, stainless steel one and a half sink with mixer tap, tiled splashback, space for appliances, space for dining table, tiled flooring, UPVC double glazed door leading to the rear garden, UPVC double glazed window and radiator. To the first floor, three good size bedrooms (master with en-suite) and three piece bathroom/WC.
Externally to the front is is a private garden which is mainly laid to lawn with large driveway providing off street parking for multiple vehicles and fenced boundaries, to the rear is a private south facing garden which is mainly paved, with raised bed, shed and fenced boundaries.
The property benefits from gas central heating, UPVC double glazing, CCTV and alarm system.
Properties in this area are extremely in demand so view early to avoid disappointment.
Virtual tour available at link below:
Please contact the Heaton Branch for further information or viewings
Council Tax Band: A
Tenure: Freehold
Front External
To the front of the property is a large garden which is mainly laid to lawn with driveway providing off street parking for multiple cars, side access to the rear garden and fenced boundaries.
Entrance Hall
With doors off to the lounge, dining area, ground floor WC, under stairs and stairs to the first floor.
Lounge
4.69m x 3.46m
UPVC double glazed window to the front and rear, electric log burner set into feature fireplace and radiator.
Dining Kitchen
6.95m x 2.92m
With a good range of wall and base units, complimenting work surfaces, built in electric hob, oven and grill, integrated microwave, stainless steel one and a half sink with mixer tap, tiled splashback, space for appliances, space for dining table, tiled flooring, UPVC double glazed door leading to the rear garden, UPVC double glazed window and radiator.
Downstairs WC
2.08m x 1.51m
With low level WC, hand wash basin, bidet, plumbed for washing, wall mounted storage cupboards, UPVC double glazed window and radiator.
First Floor Landing
With doors off to the bedrooms and bathroom/WC.
Master Bedroom
4.69m x 2.77m
UPVC double glazed windows to the front and rear, en-suite and radiator.
En-Suite
2.55m x 0.78m
Comprising; shower cubicle, low level WC, hand wash basin, tiled walls and heated towel rail.
Bedroom Two
3.75m x 2.56m
Two UPVC double glazed windows and radiator.
Bedroom Three
2.96m x 2.33m
UPVC double glazed window to the side aspect and radiator.
Bathroom/WC
2.12m x 2.06m
White three piece bathroom suite comprising; bath with shower over and glass screen, hand wash basin, low level WC, tiled walls, tiled flooring, UPVC double glazed window and radiator.
Loft
Boarded for storage with large hatch and ladder for ease of access.
Rear Garden
Private south facing rear garden mainly paved with raised bed, shed and fenced boundaries.
Brochures
Brochure- COUNCIL TAXA payment made to your local authority in order to pay for local services like schools, libraries, and refuse collection. The amount you pay depends on the value of the property.Read more about council Tax in our glossary page.
- Band: A
- PARKINGDetails of how and where vehicles can be parked, and any associated costs.Read more about parking in our glossary page.
- Driveway
- GARDENA property has access to an outdoor space, which could be private or shared.
- Yes
- ACCESSIBILITYHow a property has been adapted to meet the needs of vulnerable or disabled individuals.Read more about accessibility in our glossary page.
- Ask agent
Wilton Avenue, Walker, Newcastle upon Tyne, Tyne and Wear, NE6 2TT
Add an important place to see how long it'd take to get there from our property listings.
__mins driving to your place
Get an instant, personalised result:
- Show sellers you’re serious
- Secure viewings faster with agents
- No impact on your credit score

Your mortgage
Notes
Staying secure when looking for property
Ensure you're up to date with our latest advice on how to avoid fraud or scams when looking for property online.
Visit our security centre to find out moreDisclaimer - Property reference 481879. The information displayed about this property comprises a property advertisement. Rightmove.co.uk makes no warranty as to the accuracy or completeness of the advertisement or any linked or associated information, and Rightmove has no control over the content. This property advertisement does not constitute property particulars. The information is provided and maintained by Pattinson Estate Agents, Heaton. Please contact the selling agent or developer directly to obtain any information which may be available under the terms of The Energy Performance of Buildings (Certificates and Inspections) (England and Wales) Regulations 2007 or the Home Report if in relation to a residential property in Scotland.
*This is the average speed from the provider with the fastest broadband package available at this postcode. The average speed displayed is based on the download speeds of at least 50% of customers at peak time (8pm to 10pm). Fibre/cable services at the postcode are subject to availability and may differ between properties within a postcode. Speeds can be affected by a range of technical and environmental factors. The speed at the property may be lower than that listed above. You can check the estimated speed and confirm availability to a property prior to purchasing on the broadband provider's website. Providers may increase charges. The information is provided and maintained by Decision Technologies Limited. **This is indicative only and based on a 2-person household with multiple devices and simultaneous usage. Broadband performance is affected by multiple factors including number of occupants and devices, simultaneous usage, router range etc. For more information speak to your broadband provider.
Map data ©OpenStreetMap contributors.




