Trelil Lane, Budock Water, TR11

- PROPERTY TYPE
Barn
- SIZE
Ask agent
- TENUREDescribes how you own a property. There are different types of tenure - freehold, leasehold, and commonhold.Read more about tenure in our glossary page.
Freehold
Key features
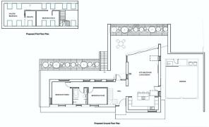
- Detached barn for conversion & development
- PA23/04890 for conversion of barn to dwelling (approved)
- PA24/08604 for loft extension & creation of detached garage (approved)
- Delightful rural setting
- 4 Bedroom accommodation
- Master bedroom en suite
- Double Garage
- Adjoining countryside
- C.I.L. payment £20,177.08
Description
THE OPPORTUNITY
Building plots, or development opportunities like this, are very rare and increasingly difficult to find; certainly, we have not sold anything like it for many years. This barn with detailed planning permission to convert to a detached four bedroom dwelling lies in an uplifting, unspoilt country setting just a five minute walk to Budock village pub and shop and less than 3 miles to Falmouth town, harbourside and beaches.
THE LOCATION
Trelil Lane lies on the outskirts of Budock Water village, on the country road that leads to Mawnan Smith village and the Helford River beyond. Trelil Barn is situated at the bottom of the Lane, bearing right, where the barn and development site are tucked into the corner of the adjacent field. It is a delightful and unspoilt rural setting next to fields and countryside, yet just a few minutes walk to the village centre. Budock Water has a population of about 1200 with an active community and good everyday facilities which include an excellent shop and popular Trelowarren Arms pub, CJ's Sanctuary restaurant, Anglican church, numerous clubs, societies and a bus service. There is a lovely walk leading on from Trelil Lane, which is a bridleway, through the countryside to Maenporth beach and the southwest coastal path. Falmouth town and harbourside is about 2.7 miles away and has an eclectic mixture of national shops and independents, together with galleries showcasing local arts and crafts, as well as great places to eat and drink.
AGENTS NOTE:
The site has been staked to indicate the plot size. There might be flexibility to allow purchasing a little more of the adjacent field, if desired.
Brochures
Property Brochure- COUNCIL TAXA payment made to your local authority in order to pay for local services like schools, libraries, and refuse collection. The amount you pay depends on the value of the property.Read more about council Tax in our glossary page.
- Ask agent
- PARKINGDetails of how and where vehicles can be parked, and any associated costs.Read more about parking in our glossary page.
- Yes
- GARDENA property has access to an outdoor space, which could be private or shared.
- Ask agent
- ACCESSIBILITYHow a property has been adapted to meet the needs of vulnerable or disabled individuals.Read more about accessibility in our glossary page.
- Ask agent
Energy performance certificate - ask agent
Trelil Lane, Budock Water, TR11
Add an important place to see how long it'd take to get there from our property listings.
__mins driving to your place
Get an instant, personalised result:
- Show sellers you’re serious
- Secure viewings faster with agents
- No impact on your credit score
Your mortgage
Notes
Staying secure when looking for property
Ensure you're up to date with our latest advice on how to avoid fraud or scams when looking for property online.
Visit our security centre to find out moreDisclaimer - Property reference 245812f1-62eb-4b4f-843c-94b08de3e5ab. The information displayed about this property comprises a property advertisement. Rightmove.co.uk makes no warranty as to the accuracy or completeness of the advertisement or any linked or associated information, and Rightmove has no control over the content. This property advertisement does not constitute property particulars. The information is provided and maintained by Heather & Lay, Falmouth. Please contact the selling agent or developer directly to obtain any information which may be available under the terms of The Energy Performance of Buildings (Certificates and Inspections) (England and Wales) Regulations 2007 or the Home Report if in relation to a residential property in Scotland.
*This is the average speed from the provider with the fastest broadband package available at this postcode. The average speed displayed is based on the download speeds of at least 50% of customers at peak time (8pm to 10pm). Fibre/cable services at the postcode are subject to availability and may differ between properties within a postcode. Speeds can be affected by a range of technical and environmental factors. The speed at the property may be lower than that listed above. You can check the estimated speed and confirm availability to a property prior to purchasing on the broadband provider's website. Providers may increase charges. The information is provided and maintained by Decision Technologies Limited. **This is indicative only and based on a 2-person household with multiple devices and simultaneous usage. Broadband performance is affected by multiple factors including number of occupants and devices, simultaneous usage, router range etc. For more information speak to your broadband provider.
Map data ©OpenStreetMap contributors.





