Bristol Road, Frampton Cotterell, Bristol

- PROPERTY TYPE
Detached Bungalow
- BEDROOMS
4
- BATHROOMS
4
- SIZE
1,474 sq ft
137 sq m
- TENUREDescribes how you own a property. There are different types of tenure - freehold, leasehold, and commonhold.Read more about tenure in our glossary page.
Freehold
Key features
- Detached Chalet Bungalow
- No Upward Chain
- South Westerly Facing Garden
- Garage & Parking
- Enclosed Private Driveway
- Renovated Throughout
- Four Bedroom
- Four Bath/Shower Room
- Open Plan Living/Kitchen/Dining Area
- Air source heat pump
Description
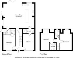
Entrance Hallway - Stairs to 1st floor, wood effect flooring with underfloor heating.
Open Plan Lounge/Kitchen/Dining Room - 8.00m x 6.30m (26'3" x 20'8") - Double glazed bi-folding doors and double glazed windows to the rear and side, Lantern roof, wood effect flooring with under floor heating, range of wall, drawer and base units with work surface over, built in oven and hob, sink unit with mixer tap, Island with storage under and seating area, integrated fridge/freezer and dishwasher, ceiling spotlights, oak door into
Utility - 1.80m x 1.19m (5'11" x 3'11") - Double glazed door to the side.
Bedroom Two - 3.81m x 3.00m (12'6" x 9'10") - Double glazed window to front, wood effect flooring with underfloor heating, ceiling spotlights, oak door into
Shower Room - Shower cubicle, concealed cistern WC, wash hand basin, ceiling spotlight, heated towel rail, wood effect flooring.
Bedroom Three - 4.19m x 3.00m (13'9" x 9'10") - Double glazed window to the front, wood effect flooring with under floor heating, oak door into
Jack And Jill Shower Room - Shower Cubicle, vanity wash hand basin, WC, wood effect flooring, further oak door into open plan living space.
First Floor Landing - Oak doors into
Bedroom One - 5.51m into bay x 3.51m (18'1" into bay x 11'6") - Double glazed window to the rear, radiator, ceiling spotlights, oak door into
En-Suite Shower Room - Double glazed velux window, white suite comprising, shower cubicle, WC, wash hand basin, heated towel rail, extractor fan.
Bedroom Four - 5.51m into bay x 3.00m (18'1" into bay x 9'10") - Double glazed window to the rear, radiator, ceiling spotlights.
Bathroom - Double glazed window to the rear, white suite comprising panelled bath with shower extension to mixer tap, vanity wash hand basin, WC, heated towel rail, extractor fan.
Outside - The enclosed front garden has mature hedge and fence boundary with gated access, laid to stones with bricked paved parking area leading to a single garage with pathway to the front door.
The enclosed westerly facing rear garden is laid to artificial grass and patio area.
Garage - The garage has up and over door, light and power.
Agents Note - Estate agents operating in the UK are required to conduct Anti-Money Laundering (AML) checks in compliance with the regulations set forth by HM Revenue and Customs (HMRC) for all property transactions. It is mandatory for both buyers and sellers to successfully complete these checks before any property transaction can proceed. Our estate agency uses Coadjute’s Assured Compliance service to facilitate the AML checks. A fee will be charged for each individual AML check conducted.
Brochures
Bristol Road, Frampton Cotterell, Bristol- COUNCIL TAXA payment made to your local authority in order to pay for local services like schools, libraries, and refuse collection. The amount you pay depends on the value of the property.Read more about council Tax in our glossary page.
- Band: E
- PARKINGDetails of how and where vehicles can be parked, and any associated costs.Read more about parking in our glossary page.
- Yes
- GARDENA property has access to an outdoor space, which could be private or shared.
- Yes
- ACCESSIBILITYHow a property has been adapted to meet the needs of vulnerable or disabled individuals.Read more about accessibility in our glossary page.
- Ask agent
Bristol Road, Frampton Cotterell, Bristol
Add an important place to see how long it'd take to get there from our property listings.
__mins driving to your place
Get an instant, personalised result:
- Show sellers you’re serious
- Secure viewings faster with agents
- No impact on your credit score
Your mortgage
Notes
Staying secure when looking for property
Ensure you're up to date with our latest advice on how to avoid fraud or scams when looking for property online.
Visit our security centre to find out moreDisclaimer - Property reference 34087076. The information displayed about this property comprises a property advertisement. Rightmove.co.uk makes no warranty as to the accuracy or completeness of the advertisement or any linked or associated information, and Rightmove has no control over the content. This property advertisement does not constitute property particulars. The information is provided and maintained by Hunters, Yate. Please contact the selling agent or developer directly to obtain any information which may be available under the terms of The Energy Performance of Buildings (Certificates and Inspections) (England and Wales) Regulations 2007 or the Home Report if in relation to a residential property in Scotland.
*This is the average speed from the provider with the fastest broadband package available at this postcode. The average speed displayed is based on the download speeds of at least 50% of customers at peak time (8pm to 10pm). Fibre/cable services at the postcode are subject to availability and may differ between properties within a postcode. Speeds can be affected by a range of technical and environmental factors. The speed at the property may be lower than that listed above. You can check the estimated speed and confirm availability to a property prior to purchasing on the broadband provider's website. Providers may increase charges. The information is provided and maintained by Decision Technologies Limited. **This is indicative only and based on a 2-person household with multiple devices and simultaneous usage. Broadband performance is affected by multiple factors including number of occupants and devices, simultaneous usage, router range etc. For more information speak to your broadband provider.
Map data ©OpenStreetMap contributors.





