
Gatesmead, Haywards Heath, RH16

- PROPERTY TYPE
Detached
- BEDROOMS
4
- BATHROOMS
2
- SIZE
Ask agent
- TENUREDescribes how you own a property. There are different types of tenure - freehold, leasehold, and commonhold.Read more about tenure in our glossary page.
Freehold
Key features
- Immaculate modern home built in 2019
- Quiet cul-de-sac location very close to countryside
- 0.8 mile walk to the railway station (summer time) - 1.4 mile drive
- Beautifully laid out rear gardens - Driveway, integral garage, useful side courtyard
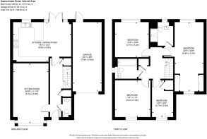
- Hall, cloakroom, bay fronted living room - Family size kitchen/breakfast room with integrated appliances
- Master bedroom with dressing area and shower room - 3 further bedrooms and family bathroom
- 10 minute walk to Haywards Heath Golf Club
- Easy walk into Lindfield Village and schools
- Estate charge: ???? - Managing agents: Hunters Group, Burgess Hill T:
- EPC rating: B - Council Tax Band: F
Description
GUIDE PRICE .. £800,000-£815,000
PLEASE WATCH THE VIDEO BEFORE BOOKING AN APPOINTMENT
A 4 double bedroom detached family house situated towards the very end of a quiet cul-de-sac on the Haywards Heath/Lindfield borders close to countryside and within walking distance of the railway station having the benefit of a 47’ x 44’ rear garden backing onto a nature corridor offering tremendous potential for a garage conversion and/or extension STPP
EPC Rating: B
Brochures
Property Brochure- COUNCIL TAXA payment made to your local authority in order to pay for local services like schools, libraries, and refuse collection. The amount you pay depends on the value of the property.Read more about council Tax in our glossary page.
- Band: F
- PARKINGDetails of how and where vehicles can be parked, and any associated costs.Read more about parking in our glossary page.
- Yes
- GARDENA property has access to an outdoor space, which could be private or shared.
- Yes
- ACCESSIBILITYHow a property has been adapted to meet the needs of vulnerable or disabled individuals.Read more about accessibility in our glossary page.
- Ask agent
Energy performance certificate - ask agent
Gatesmead, Haywards Heath, RH16
Add an important place to see how long it'd take to get there from our property listings.
__mins driving to your place
Get an instant, personalised result:
- Show sellers you’re serious
- Secure viewings faster with agents
- No impact on your credit score



Your mortgage
Notes
Staying secure when looking for property
Ensure you're up to date with our latest advice on how to avoid fraud or scams when looking for property online.
Visit our security centre to find out moreDisclaimer - Property reference f9bd0a61-e157-4109-b5ce-0917d9fdb984. The information displayed about this property comprises a property advertisement. Rightmove.co.uk makes no warranty as to the accuracy or completeness of the advertisement or any linked or associated information, and Rightmove has no control over the content. This property advertisement does not constitute property particulars. The information is provided and maintained by Mansell McTaggart, Haywards Heath. Please contact the selling agent or developer directly to obtain any information which may be available under the terms of The Energy Performance of Buildings (Certificates and Inspections) (England and Wales) Regulations 2007 or the Home Report if in relation to a residential property in Scotland.
*This is the average speed from the provider with the fastest broadband package available at this postcode. The average speed displayed is based on the download speeds of at least 50% of customers at peak time (8pm to 10pm). Fibre/cable services at the postcode are subject to availability and may differ between properties within a postcode. Speeds can be affected by a range of technical and environmental factors. The speed at the property may be lower than that listed above. You can check the estimated speed and confirm availability to a property prior to purchasing on the broadband provider's website. Providers may increase charges. The information is provided and maintained by Decision Technologies Limited. **This is indicative only and based on a 2-person household with multiple devices and simultaneous usage. Broadband performance is affected by multiple factors including number of occupants and devices, simultaneous usage, router range etc. For more information speak to your broadband provider.
Map data ©OpenStreetMap contributors.





