
Pulteney Drive, Stafford, ST16
- PROPERTY TYPE
Land
- SIZE
8,848 sq ft
822 sq m
Key features
- Plot For Development
- Extremely Popular Location
- Planning Permission For A Self Build Two-Storey Five Bedroom Detached Dwelling
- Contact Our Office For More Information
- Owner Estimated End Value: £650,000 (dependent on internal finish & market conditions) Buyers are also advised to conduct there own research into this
Description
Call us 9AM - 9PM -7 days a week, 365 days a year!
An exciting opportunity to purchase a generous plot in one of Stafford’s sought-after locations. Situated on Pulteney Drive, just off Eccleshall Road, this prime position is within easy reach of commuter routes, the mainline train station, highly regarded schools, and a wide range of local amenities. Stafford Town Centre is only a short distance away, making this the ideal spot for modern family living.
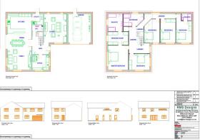
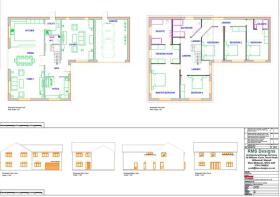
The plot benefits from full planning permission (Ref: 24/39395/FUL) for a substantial five-bedroom detached dwelling of approximately 300m², perfectly suited as a forever family home. The dropped curb is already in place, and the plot offers ample space for off-road parking. The proposed design includes a south-facing garden, with a garden shed already on site—ideal for use as a garden room or workshop.
A self-build here would give you the opportunity to design and finish the property to your exact taste and specification, while also enabling you to reclaim VAT on eligible building materials and elements (we recommend seeking advice from a financial adviser on this).
Opportunities like this in such a desirable location are rare—secure your chance to create a truly bespoke home in a well-connected, family-friendly area.
Kitchen / Diner
4.8m x 11m
-
Office
3m x 3.3m
-
Utility Room
2.2m x 2.2m
-
Lounge
4.6m x 5.7m
-
Garage
4.5m x 5.7m
-
Bedroom One
4m x 4.8m
-
Dressing Room
4m x 2.5m
-
Bedroom Two
3m x 4.2m
-
Bedroom Three
3m x 4.7m
-
Bedroom Four
3.1m x 4.7m
-
Bedroom Five
3.1m x 4m
-
Bathroom
4m x 2.4m
-
Agents Note
The proposed dwelling has not yet been constructed. All details, including room measurements and layout information, have been provided by the seller and are based on the approved planning drawings. The measurements are approximate and intended for guidance only. Prospective purchasers are advised to rely on their own enquiries and should not assume that the finished property will exactly match these specifications.
Pulteney Drive, Stafford, ST16
NEAREST STATIONS
Distances are straight line measurements from the centre of the postcode- Stafford Station1.3 miles
Notes
Disclaimer - Property reference 40963fbb-8389-4b24-8c6f-541c67ddf5fc. The information displayed about this property comprises a property advertisement. Rightmove.co.uk makes no warranty as to the accuracy or completeness of the advertisement or any linked or associated information, and Rightmove has no control over the content. This property advertisement does not constitute property particulars. The information is provided and maintained by Dourish & Day, Stafford. Please contact the selling agent or developer directly to obtain any information which may be available under the terms of The Energy Performance of Buildings (Certificates and Inspections) (England and Wales) Regulations 2007 or the Home Report if in relation to a residential property in Scotland.
Map data ©OpenStreetMap contributors.






