
3 bedroom semi-detached house for sale
Shortwood Villas, Hoyland, Barnsley

- PROPERTY TYPE
Semi-Detached
- BEDROOMS
3
- BATHROOMS
1
- SIZE
Ask agent
- TENUREDescribes how you own a property. There are different types of tenure - freehold, leasehold, and commonhold.Read more about tenure in our glossary page.
Freehold
Key features
- BIOMASS HEATING
- SEMI DETACHED
- SECLUDED WOODLAND LOCATION
- 2/3 BEDROOMS
- TWO BATHROOMS
- LENGTHY GARDENs
- PARKING
- CLOSE TO NETWORK LINK ROADS
Description
Comprising 2/3 bedrooms, this semi-detached home offers generous family living and a warm, welcoming atmosphere. The mature gardens adjoin woodland, providing privacy and a sense of tranquillity, while the property retains many period features that add character and charm.
With only 12 properties in this unique area, homes here rarely come to market. This one-of-a-kind semi-detached house also offers the potential to extend, subject to necessary planning, and comes with ample parking.
We strongly recommend an early inspection to fully appreciate this idyllic, rare opportunity.
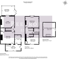
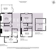
Ground Floor -
Side Entrance - Featuring tiled flooring and stairs rising to the first-floor landing.
Lounge - A cosy lounge featuring a multi-fuel burner set on a marble hearth, TV aerial point, and doors leading to the conservatory.
Dining Room - A spacious dining room with tiled flooring, a feature fireplace with electric-style fire, TV aerial point, door to the cellar, and a window and door leading through to the galley-style kitchen.
Kitchen - A galley-style kitchen fitted with a range of base units and worktop surfaces incorporating a sink unit with mixer tap. Integrated appliances include an oven, hob, and extractor unit, with space for a fridge/freezer and plumbing for a washing machine. The room benefits from a front-facing double glazed window, a side entrance door, and an internal door providing access to the downstairs bathroom.
Conservatory - An inviting additional sitting room enjoying lovely views over the extensive rear garden, providing a perfect spot to relax and take in the surroundings.
Bathroom - Fitted with a three-piece suite comprising a bath, WC, and wash hand basin. A window with obscure glazing provides natural light while maintaining privacy.
First Floor -
Bedroom One - A good-sized bedroom featuring a charming Juliet-style balcony overlooking the rear garden—perfect for enjoying a morning coffee while listening to the birds. The room also offers ample space for wardrobes and other furniture.
Bedroom Two - A well-proportioned bedroom featuring a side-facing window that provides plenty of natural light.
Shower Room - Comprising a shower cubicle, WC, and wash hand basin, with a window featuring obscure glazing for privacy.
Second Floor -
Attic Room Three/Occasional Room - Located on the second floor, this generously sized occasional room enjoys lovely views over the rear garden, offering a versatile space that could be used as a guest room, home office, or hobby area.
Outside - The standout feature of this unique property is its generous and beautifully mature garden areas, which extend from the side of the property and flow downwards. The grounds include a summerhouse, sheds, and a dedicated area housing the biomass boiler. Mature apple trees and a variety of other fruit trees add charm and character. The outdoor space also offers exciting potential to extend, subject to the necessary planning permissions.
Brochures
Shortwood Villas, Hoyland, BarnsleyBrochure- COUNCIL TAXA payment made to your local authority in order to pay for local services like schools, libraries, and refuse collection. The amount you pay depends on the value of the property.Read more about council Tax in our glossary page.
- Ask agent
- PARKINGDetails of how and where vehicles can be parked, and any associated costs.Read more about parking in our glossary page.
- Yes
- GARDENA property has access to an outdoor space, which could be private or shared.
- Yes
- ACCESSIBILITYHow a property has been adapted to meet the needs of vulnerable or disabled individuals.Read more about accessibility in our glossary page.
- Ask agent
Energy performance certificate - ask agent
Shortwood Villas, Hoyland, Barnsley
Add an important place to see how long it'd take to get there from our property listings.
__mins driving to your place
Get an instant, personalised result:
- Show sellers you’re serious
- Secure viewings faster with agents
- No impact on your credit score
Your mortgage
Notes
Staying secure when looking for property
Ensure you're up to date with our latest advice on how to avoid fraud or scams when looking for property online.
Visit our security centre to find out moreDisclaimer - Property reference 34105285. The information displayed about this property comprises a property advertisement. Rightmove.co.uk makes no warranty as to the accuracy or completeness of the advertisement or any linked or associated information, and Rightmove has no control over the content. This property advertisement does not constitute property particulars. The information is provided and maintained by Beecroft Estates, Barnsley. Please contact the selling agent or developer directly to obtain any information which may be available under the terms of The Energy Performance of Buildings (Certificates and Inspections) (England and Wales) Regulations 2007 or the Home Report if in relation to a residential property in Scotland.
*This is the average speed from the provider with the fastest broadband package available at this postcode. The average speed displayed is based on the download speeds of at least 50% of customers at peak time (8pm to 10pm). Fibre/cable services at the postcode are subject to availability and may differ between properties within a postcode. Speeds can be affected by a range of technical and environmental factors. The speed at the property may be lower than that listed above. You can check the estimated speed and confirm availability to a property prior to purchasing on the broadband provider's website. Providers may increase charges. The information is provided and maintained by Decision Technologies Limited. **This is indicative only and based on a 2-person household with multiple devices and simultaneous usage. Broadband performance is affected by multiple factors including number of occupants and devices, simultaneous usage, router range etc. For more information speak to your broadband provider.
Map data ©OpenStreetMap contributors.






