
South Molton Road, Bampton, Tiverton, Devon, EX16

- PROPERTY TYPE
Semi-Detached
- BEDROOMS
3
- BATHROOMS
1
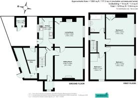
- SIZE
1,263 sq ft
117 sq m
- TENUREDescribes how you own a property. There are different types of tenure - freehold, leasehold, and commonhold.Read more about tenure in our glossary page.
Freehold
Key features
- Period, semi-detached cottage
- In need of renovation
- Large garden with potential building plot (stc)
- Garage building
- Ample parking
- Walking distance to amenities
- Sought after village location
- NO ONWARD CHAIN
Description
This three-bedroom, semi-detached period cottage is ideally located on the edge of Bampton, within easy walking distance of the village’s many amenities. Bampton is a thriving and characterful country village offering a selection of independent shops, pubs, cafés, a doctor’s surgery with pharmacy, and a beautiful 15th-century church. The market town of Tiverton lies approximately 7 miles to the south, providing further facilities and dual carriageway access to Junction 27 of the M5 and Tiverton Parkway mainline station (London Paddington in around 2 hours).
The Cottage
This charming cottage is full of character and offers great scope for renovation. The accommodation comprises:
Entrance hall
Two generous reception rooms (one with oil-fired Rayburn)
Kitchen with access to the rear courtyard
Three bedrooms upstairs
Family bathroom
The cottage sits within a generous plot of approximately 0.2 acres. Outside, there’s a courtyard area immediately behind the house with an outside WC and an attached store room, which leads through to the large enclosed garden. A real highlight of the property, the garden offers plenty of space with ample off-road parking, a stone-built garage building and double gates providing access from the road.
Planning Potential
The owners have previously submitted a planning application for a one-bedroom, single-storey dwelling in the garden (Mid Devon District Council Ref: 24/00305/FULL), which was refused in March 2024. While the application was not appealed, the pre-application advice from the planning officer was positive, provided certain guidelines were followed. The owners believe the application failed due to the planning consultant not adhering to these guidelines, and they feel there remains strong potential for a successful future application, subject to planning.
This is a rare opportunity to restore a lovely period cottage and potentially add value with a future development. Whether you're looking for a project, investment, or a charming home with space to grow, this property is packed with potential.
Please see the floor plan for the dimensions. The internal photos have been taken with a wide-angle lens to show more of the rooms.
Services - Mains electricity, water and drainage. Central heating is provided by the oil-fired Rayburn.
Tenure: Freehold
Council Tax: Band C
Local Authority: Mid Devon District Council
Brochures
Particulars- COUNCIL TAXA payment made to your local authority in order to pay for local services like schools, libraries, and refuse collection. The amount you pay depends on the value of the property.Read more about council Tax in our glossary page.
- Band: C
- PARKINGDetails of how and where vehicles can be parked, and any associated costs.Read more about parking in our glossary page.
- Driveway
- GARDENA property has access to an outdoor space, which could be private or shared.
- Yes
- ACCESSIBILITYHow a property has been adapted to meet the needs of vulnerable or disabled individuals.Read more about accessibility in our glossary page.
- Ask agent
South Molton Road, Bampton, Tiverton, Devon, EX16
Add an important place to see how long it'd take to get there from our property listings.
__mins driving to your place
Get an instant, personalised result:
- Show sellers you’re serious
- Secure viewings faster with agents
- No impact on your credit score
Your mortgage
Notes
Staying secure when looking for property
Ensure you're up to date with our latest advice on how to avoid fraud or scams when looking for property online.
Visit our security centre to find out moreDisclaimer - Property reference BAM230125. The information displayed about this property comprises a property advertisement. Rightmove.co.uk makes no warranty as to the accuracy or completeness of the advertisement or any linked or associated information, and Rightmove has no control over the content. This property advertisement does not constitute property particulars. The information is provided and maintained by Seddons, Bampton. Please contact the selling agent or developer directly to obtain any information which may be available under the terms of The Energy Performance of Buildings (Certificates and Inspections) (England and Wales) Regulations 2007 or the Home Report if in relation to a residential property in Scotland.
*This is the average speed from the provider with the fastest broadband package available at this postcode. The average speed displayed is based on the download speeds of at least 50% of customers at peak time (8pm to 10pm). Fibre/cable services at the postcode are subject to availability and may differ between properties within a postcode. Speeds can be affected by a range of technical and environmental factors. The speed at the property may be lower than that listed above. You can check the estimated speed and confirm availability to a property prior to purchasing on the broadband provider's website. Providers may increase charges. The information is provided and maintained by Decision Technologies Limited. **This is indicative only and based on a 2-person household with multiple devices and simultaneous usage. Broadband performance is affected by multiple factors including number of occupants and devices, simultaneous usage, router range etc. For more information speak to your broadband provider.
Map data ©OpenStreetMap contributors.





