
Barrowfield Drive, Stamford

- PROPERTY TYPE
Town House
- BEDROOMS
4
- BATHROOMS
2
- SIZE
Ask agent
- TENUREDescribes how you own a property. There are different types of tenure - freehold, leasehold, and commonhold.Read more about tenure in our glossary page.
Freehold
Key features
- 4 Bedroom End of Terrace Townhouse
- Extremely Well Presented
- Tucked Away in Quiet Cul-De-Sac Position
- Well Positioned for Both The Town Centre and Commuting Via The A1
- Single Garage and Parking for 2 Vehicles
- Large Master Bedroom with En Suite
- Well Appointed Kitchen Breakfast
- Enclosed Garden to Rear
- Please refer to attached Key Facts for Buyers for Material Information Disclosures
Description
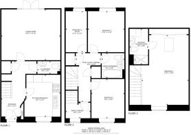
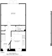
Set over 3 floors the accommodation is extremely flexible depending on your specific needs and includes: Entrance Hall, downstairs Cloakroom, Kitchen/Breakfast Room, Living Room with patio doors leading out to the garden area beyond. Upstairs off the First Floor Landing there are 2 Double Bedrooms, Single Bedroom/Study, and a Family Bathroom. On the second floor is a large Master Bedroom Suite with ample storage, high ceilings and an En suite Shower Room
Agents Note:
Local Authority – South Kesteven District Council
Council Tax Band – C
EPC Rating - B
Entrance Hall - 1.93m x 4.75m (6'4" x 15'7") -
Cloakroom - 1.83m x 1.04m (6'0" x 3'5") -
Kitchen Breakfast Room - 2.97m x 3.45m (9'9" x 11'4") -
Living Room - 4.88m x 4.22m (16'0" x 13'10") -
First Floor Landing - 2.03m x 3.96m (6'8" x 13'0") -
Bedroom 2 - 3.02m x 3.35m (9'11" x 11'0") -
Bedroom 3 - 2.74m x 3.25m (9'0" x 10'8") -
Bedroom 4/Study - 1.80m x 3.35m (5'11" x 11'0") -
Family Bathroom - 1.93m x 2.03m (6'4" x 6'8") -
Inner Landing Leading To Second Floor - 2.06m x 1.27m (6'9" x 4'2") -
Bedroom 1 - 3.86m x 5.79m (12'8" x 19'0") -
En Suite Shower Room - 1.52m x 2.95m (5'0" x 9'8") -
Garden -
Allocated Parking For 2 Vehicles -
Single Garage -
Sizes and dimensions are calculated using a laser measuring modelling device and as such whilst representative it must be noted that they are all approximate, actual sizes may vary.
Brochures
Barrowfield Drive, StamfordMaterial Information Disclosures (KFB)Brochure- COUNCIL TAXA payment made to your local authority in order to pay for local services like schools, libraries, and refuse collection. The amount you pay depends on the value of the property.Read more about council Tax in our glossary page.
- Band: C
- PARKINGDetails of how and where vehicles can be parked, and any associated costs.Read more about parking in our glossary page.
- Garage en bloc
- GARDENA property has access to an outdoor space, which could be private or shared.
- Yes
- ACCESSIBILITYHow a property has been adapted to meet the needs of vulnerable or disabled individuals.Read more about accessibility in our glossary page.
- Ask agent
Barrowfield Drive, Stamford
Add an important place to see how long it'd take to get there from our property listings.
__mins driving to your place
Get an instant, personalised result:
- Show sellers you’re serious
- Secure viewings faster with agents
- No impact on your credit score



Your mortgage
Notes
Staying secure when looking for property
Ensure you're up to date with our latest advice on how to avoid fraud or scams when looking for property online.
Visit our security centre to find out moreDisclaimer - Property reference 34108031. The information displayed about this property comprises a property advertisement. Rightmove.co.uk makes no warranty as to the accuracy or completeness of the advertisement or any linked or associated information, and Rightmove has no control over the content. This property advertisement does not constitute property particulars. The information is provided and maintained by Goodwin Property Services, Stamford. Please contact the selling agent or developer directly to obtain any information which may be available under the terms of The Energy Performance of Buildings (Certificates and Inspections) (England and Wales) Regulations 2007 or the Home Report if in relation to a residential property in Scotland.
*This is the average speed from the provider with the fastest broadband package available at this postcode. The average speed displayed is based on the download speeds of at least 50% of customers at peak time (8pm to 10pm). Fibre/cable services at the postcode are subject to availability and may differ between properties within a postcode. Speeds can be affected by a range of technical and environmental factors. The speed at the property may be lower than that listed above. You can check the estimated speed and confirm availability to a property prior to purchasing on the broadband provider's website. Providers may increase charges. The information is provided and maintained by Decision Technologies Limited. **This is indicative only and based on a 2-person household with multiple devices and simultaneous usage. Broadband performance is affected by multiple factors including number of occupants and devices, simultaneous usage, router range etc. For more information speak to your broadband provider.
Map data ©OpenStreetMap contributors.






