
Eddington Drive, Newton Mearns, Glasgow

- PROPERTY TYPE
Detached
- BEDROOMS
5
- BATHROOMS
3
- SIZE
Ask agent
- TENUREDescribes how you own a property. There are different types of tenure - freehold, leasehold, and commonhold.Read more about tenure in our glossary page.
Ask agent
Description
This impressive and spacious detached home offers versatile family living across two levels, set within the highly desirable residential pocket of Newton Mearns. With five bedrooms, multiple reception rooms, a private rear garden, and a detached double garage, this home combines style, comfort, and practicality.
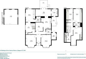
On the ground floor, the entrance vestibule leads into a welcoming hallway with storage. At the front of the property, the bay-windowed lounge provides a bright and relaxing space, while a second bay-windowed double bedroom offers flexibility for guests or family members. A centrally positioned dining room creates the perfect setting for family meals and entertaining. To the rear, the garden room opens directly onto the garden deck through French doors, offering seamless indoor-outdoor living. The modern kitchen is fitted with ample unit, complimentary worktop surfaces and is further complemented by a practical utility room that leads to further private terrace. The ground floor further benefits from a generous principal bedroom with fitted wardrobes and an en-suite bathroom, as well as a shower room and a versatile rear hall that can be used as a study or dressing area and provides access to the upper level.
Upstairs, there are three further well-proportioned bedrooms. The largest, Bedroom 3, is a bright and spacious double, while Bedrooms 4 and 5 provide excellent flexibility as children’s rooms, a home office, or guest accommodation. A well-appointed jack and jill ensuite shower service both bedroom three and four and additional linen storage complete the first floor.
Externally, the property is enhanced by two decked areas, perfect for outdoor dining and entertaining, along with a landscaped rear garden offering excellent privacy. A detached double garage and an external store provide further convenience and storage. The property also benefits from gas central heating and double glazing.
Eddington Drive is ideally positioned within Newton Mearns, one of Glasgow’s most sought-after suburbs. The property lies within the catchment area for highly regarded primary and secondary schools and is well placed for a wide range of amenities including local shops, supermarkets, leisure facilities, and parks. Excellent transport links ensure easy access to Glasgow city centre, East Kilbride, and surrounding areas.
Council Tax: F
EPC: C
Tenure: Freehold
EPC Rating: C
Council Tax Band: F
- COUNCIL TAXA payment made to your local authority in order to pay for local services like schools, libraries, and refuse collection. The amount you pay depends on the value of the property.Read more about council Tax in our glossary page.
- Band: F
- PARKINGDetails of how and where vehicles can be parked, and any associated costs.Read more about parking in our glossary page.
- Yes
- GARDENA property has access to an outdoor space, which could be private or shared.
- Yes
- ACCESSIBILITYHow a property has been adapted to meet the needs of vulnerable or disabled individuals.Read more about accessibility in our glossary page.
- Ask agent
Eddington Drive, Newton Mearns, Glasgow
Add an important place to see how long it'd take to get there from our property listings.
__mins driving to your place
Get an instant, personalised result:
- Show sellers you’re serious
- Secure viewings faster with agents
- No impact on your credit score
Your mortgage
Notes
Staying secure when looking for property
Ensure you're up to date with our latest advice on how to avoid fraud or scams when looking for property online.
Visit our security centre to find out moreDisclaimer - Property reference GWS250484. The information displayed about this property comprises a property advertisement. Rightmove.co.uk makes no warranty as to the accuracy or completeness of the advertisement or any linked or associated information, and Rightmove has no control over the content. This property advertisement does not constitute property particulars. The information is provided and maintained by Rettie, Newton Mearns. Please contact the selling agent or developer directly to obtain any information which may be available under the terms of The Energy Performance of Buildings (Certificates and Inspections) (England and Wales) Regulations 2007 or the Home Report if in relation to a residential property in Scotland.
*This is the average speed from the provider with the fastest broadband package available at this postcode. The average speed displayed is based on the download speeds of at least 50% of customers at peak time (8pm to 10pm). Fibre/cable services at the postcode are subject to availability and may differ between properties within a postcode. Speeds can be affected by a range of technical and environmental factors. The speed at the property may be lower than that listed above. You can check the estimated speed and confirm availability to a property prior to purchasing on the broadband provider's website. Providers may increase charges. The information is provided and maintained by Decision Technologies Limited. **This is indicative only and based on a 2-person household with multiple devices and simultaneous usage. Broadband performance is affected by multiple factors including number of occupants and devices, simultaneous usage, router range etc. For more information speak to your broadband provider.
Map data ©OpenStreetMap contributors.






