
Cranbrook Road, Bristol, BS6

- PROPERTY TYPE
Maisonette
- BEDROOMS
3
- BATHROOMS
2
- SIZE
Ask agent
- TENUREDescribes how you own a property. There are different types of tenure - freehold, leasehold, and commonhold.Read more about tenure in our glossary page.
Freehold
Key features
- Full rewire in 2023
- Three large double bedrooms
- Two bathrooms
- within 275 meters from Redland Green School
- Under 10-mintue walk to Gloucester Road
- Spacious 1036qsft maisonette
- No onward chain
Description
This beautifully light and spacious three-bedroom duplex flat is set over two floors and offers generous living space in the heart of Redland — just moments from Redland Green School and within a short walking distance to Gloucester Road, Redland Station and Clifton.
Key Features:
Three generous double bedrooms
Two bathrooms, including one en-suite
Bright and airy sitting room with large windows and views over Cranbrook Road
Compact but well-equipped kitchen
Fully rewired in 2023
Brand new roof and freshly redecorated throughout
Excellent location for schools, transport, and local amenities
Friendly neighbourhood with a strong community feel
Location Highlights:
Under 275m to Redland Green School
10 minutes to Gloucester Road’s vibrant shops, cafes, bars and restaurants
10-minute walk to Redland Station
20 minutes to Clifton’s iconic architecture and green spaces
This is a rare opportunity to own a spacious and well-maintained home in one of Bristol’s most desirable areas. Ideal for families, professionals, or investors alike.
**ENQUIRIES**
For all enquiries, viewing requests or to create your own listing please visit the Emoov website.
If calling, please quote reference: S5199
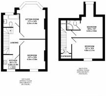
Master bedroom
3.8m x 4.5m
A generously sized light and airy master bedroom, featuring recently restored wooden floors and views across Bishopston. This space offers a perfect blend of character and comfort.
Bedroom 2
3.1m x 4.6m
Located on the second floor, this generously proportioned double bedroom is currently arranged with twin beds but easily accommodates a super king. Bright and adaptable, it offers plenty of space for relaxation, work, or guests.
Bedroom 3
4.6m x 5m
This characterful bedroom on the second floor offers a generous layout with space for a large bed, desk, and additional furniture. It features an en-suite bathroom and a charming period fireplace.
Sitting room
4.4m x 5.2m
This large sitting room features renovated original wood floors and offers ample space for both relaxing and dining. The generous southwest-facing windows flood the room with natural light throughout the day - especially lovely for watching sunsets in the evening with a glass of wine!
- COUNCIL TAXA payment made to your local authority in order to pay for local services like schools, libraries, and refuse collection. The amount you pay depends on the value of the property.Read more about council Tax in our glossary page.
- Ask agent
- PARKINGDetails of how and where vehicles can be parked, and any associated costs.Read more about parking in our glossary page.
- Permit
- GARDENA property has access to an outdoor space, which could be private or shared.
- Ask agent
- ACCESSIBILITYHow a property has been adapted to meet the needs of vulnerable or disabled individuals.Read more about accessibility in our glossary page.
- Ask agent
Cranbrook Road, Bristol, BS6
Add an important place to see how long it'd take to get there from our property listings.
__mins driving to your place
Get an instant, personalised result:
- Show sellers you’re serious
- Secure viewings faster with agents
- No impact on your credit score
Your mortgage
Notes
Staying secure when looking for property
Ensure you're up to date with our latest advice on how to avoid fraud or scams when looking for property online.
Visit our security centre to find out moreDisclaimer - Property reference 5199. The information displayed about this property comprises a property advertisement. Rightmove.co.uk makes no warranty as to the accuracy or completeness of the advertisement or any linked or associated information, and Rightmove has no control over the content. This property advertisement does not constitute property particulars. The information is provided and maintained by Emoov, Chelmsford. Please contact the selling agent or developer directly to obtain any information which may be available under the terms of The Energy Performance of Buildings (Certificates and Inspections) (England and Wales) Regulations 2007 or the Home Report if in relation to a residential property in Scotland.
*This is the average speed from the provider with the fastest broadband package available at this postcode. The average speed displayed is based on the download speeds of at least 50% of customers at peak time (8pm to 10pm). Fibre/cable services at the postcode are subject to availability and may differ between properties within a postcode. Speeds can be affected by a range of technical and environmental factors. The speed at the property may be lower than that listed above. You can check the estimated speed and confirm availability to a property prior to purchasing on the broadband provider's website. Providers may increase charges. The information is provided and maintained by Decision Technologies Limited. **This is indicative only and based on a 2-person household with multiple devices and simultaneous usage. Broadband performance is affected by multiple factors including number of occupants and devices, simultaneous usage, router range etc. For more information speak to your broadband provider.
Map data ©OpenStreetMap contributors.





