
Great Northern Tower, 1 Watson Street, Manchester, M3

- PROPERTY TYPE
Apartment
- BEDROOMS
2
- BATHROOMS
2
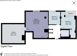
- SIZE
859 sq ft
80 sq m
Key features
- Sizeable terrace with incredible city views
- Eighth floor
- Separate balcony off primary bedroom
- Parking included
- Prime, central Manchester location
- Highly desired Great Northern Tower development
- EPC Rating = D
Description
Description
Savills are delighted to present this exceptional two bedroom, two bathroom apartment on the eighth floor of the prestigious Great Northern Tower. Complete with secure parking and a private terrace of rare proportions, this home offers an unrivalled perspective over Manchester’s ever evolving skyline.
The development itself has long been regarded as one of the city’s most desirable addresses. With its landmark presence, central location, and 24/7 concierge, Great Northern Tower delivers the perfect balance of convenience and prestige.
Inside, the apartment impresses immediately with its open plan living, dining and kitchen space. The showpiece of the property, however, is the expansive terrace, boasting a private outdoor haven, perfect for entertaining, relaxing, or simply enjoying Manchester from one of the best vantage points in the city.
Accommodation includes two generously sized double bedrooms. The primary suite enjoys a luxurious en suite bathroom and its own private balcony, while the second bedroom is served by a sleek three piece primary bathroom, finished to the same high specification.
This is premium city centre living at its finest, offering striking architecture, spectacular views, and a home designed for both comfort and style.
We are advised that there are no associated costs to leaseholders with respect to works to obtain the EWS1 form. Information and copy of a letter confirming this from the developer/building management is available upon request from the office.
Cladding/external wall system disclaimer: This property has cladding/external wall systems, as far as we know the current position with the property is:
It’s been tested and works are required however there are interim measures in place
* You should make enquires about the external wall system of any property you are viewing, if it has cladding and if it is safe or if there are interim measures in place.
Location
Great Northern Tower enjoys an unrivalled location set in the heart of city centre Manchester. St Peter's Square tram stop (0.2m) is situated close by for great access to Manchester's tram network, whilst Deansgate railway station is 0.3m distance for rail links.
Great Northern (0.1m) offers an ideal position for eating, drinking and activities. From the cinema, restaurants, bars, shops and entertainment, there's a host of things to keep you entertained whilst here.
Sports and entertainment are within easy reach also. Manchester's famous football stadiums Old Trafford (home to Manchester United) and the Etihad (home to Manchester City) are 1.7m and 2.4m away respectively.
For cultural activities, locally residents are only 0.4m from Castlefield Bowl which often hosts an array of food festivals and music gigs.
Please note all distances quoted are approximate.
Square Footage: 859 sq ft
Leasehold with approximately 128 years remaining.
Additional Info
Ground rent is reviewed in line with RPI, next review due 2033.
Brochures
Web DetailsParticulars- COUNCIL TAXA payment made to your local authority in order to pay for local services like schools, libraries, and refuse collection. The amount you pay depends on the value of the property.Read more about council Tax in our glossary page.
- Band: E
- PARKINGDetails of how and where vehicles can be parked, and any associated costs.Read more about parking in our glossary page.
- Yes
- GARDENA property has access to an outdoor space, which could be private or shared.
- Ask agent
- ACCESSIBILITYHow a property has been adapted to meet the needs of vulnerable or disabled individuals.Read more about accessibility in our glossary page.
- Ask agent
Great Northern Tower, 1 Watson Street, Manchester, M3
Add an important place to see how long it'd take to get there from our property listings.
__mins driving to your place
Get an instant, personalised result:
- Show sellers you’re serious
- Secure viewings faster with agents
- No impact on your credit score
Your mortgage
Notes
Staying secure when looking for property
Ensure you're up to date with our latest advice on how to avoid fraud or scams when looking for property online.
Visit our security centre to find out moreDisclaimer - Property reference MNS210040. The information displayed about this property comprises a property advertisement. Rightmove.co.uk makes no warranty as to the accuracy or completeness of the advertisement or any linked or associated information, and Rightmove has no control over the content. This property advertisement does not constitute property particulars. The information is provided and maintained by Savills, Manchester. Please contact the selling agent or developer directly to obtain any information which may be available under the terms of The Energy Performance of Buildings (Certificates and Inspections) (England and Wales) Regulations 2007 or the Home Report if in relation to a residential property in Scotland.
*This is the average speed from the provider with the fastest broadband package available at this postcode. The average speed displayed is based on the download speeds of at least 50% of customers at peak time (8pm to 10pm). Fibre/cable services at the postcode are subject to availability and may differ between properties within a postcode. Speeds can be affected by a range of technical and environmental factors. The speed at the property may be lower than that listed above. You can check the estimated speed and confirm availability to a property prior to purchasing on the broadband provider's website. Providers may increase charges. The information is provided and maintained by Decision Technologies Limited. **This is indicative only and based on a 2-person household with multiple devices and simultaneous usage. Broadband performance is affected by multiple factors including number of occupants and devices, simultaneous usage, router range etc. For more information speak to your broadband provider.
Map data ©OpenStreetMap contributors.