
Elizabeth Crescent, Chester, CH4
- PROPERTY TYPE
Land
- BEDROOMS
5
- BATHROOMS
7
- SIZE
Ask agent
Key features
- A rare opportunity, Plot with full planning permission for a stunning 7474 Sqft Home
Description
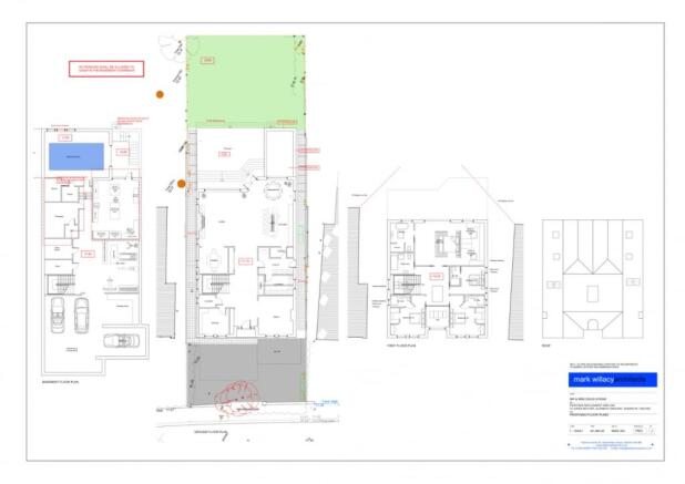
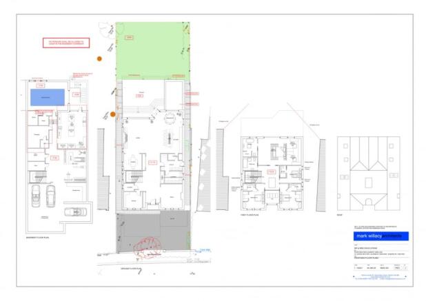
Chester and Cheshire West planning ref 25/00046/FUL
Welcome to 48 Elizabeth Crescent, a desirable plot of land situated in Handbridge, boasting full planning permission for a stunning 7474 Sqft home. This is an exceptional opportunity to build a dream family home.
**The Plot**
The plot measures approximately 0.5 acres, the current planning permission allows for a 7474 Sqft home, offering endless possibilities for design and layout.
**The Local Area**
Located in the prestigious CH4 7AZ postcode, 48 Elizabeth Crescent is nestled in a highly desirable area, renowned for its excellent schools, transport links, and local amenities. The historic city centre is within walking distance, offering a range of boutique shops, restaurants, and cultural attractions.
**The Planning Permission**
The full planning permission in place allows for a stunning 7474 Sqft home, complete with:
The floor plans can be totally remodelled to the buyers preference, an amazing overall size of 7474 Sqft with leisure suite, swimming pool, gym, art studio or cinema room and bar.
Underground garage and workshop with car lift.
stunning master suite, generous bedrooms,
fantastic open plan living with further reception rooms.
sunken garden for basement, large rear garden with terrace, overlooking the meadows and city sky line.
Ground investigation and infiltration testing has been carried out and the full report is available **ENQUIRIES**
For all enquiries, viewing requests or to create your own listing please visit the Emoov website. If calling, please quote reference: S5277
Brochures
Book a viewingElizabeth Crescent, Chester, CH4
NEAREST STATIONS
Distances are straight line measurements from the centre of the postcode- Chester Station0.6 miles
- Bache Station1.6 miles
Notes
Disclaimer - Property reference 5277. The information displayed about this property comprises a property advertisement. Rightmove.co.uk makes no warranty as to the accuracy or completeness of the advertisement or any linked or associated information, and Rightmove has no control over the content. This property advertisement does not constitute property particulars. The information is provided and maintained by Emoov, Chelmsford. Please contact the selling agent or developer directly to obtain any information which may be available under the terms of The Energy Performance of Buildings (Certificates and Inspections) (England and Wales) Regulations 2007 or the Home Report if in relation to a residential property in Scotland.
Map data ©OpenStreetMap contributors.






