
Ainsworth Drive, Felsted, Dunmow

- PROPERTY TYPE
Detached
- BEDROOMS
4
- BATHROOMS
2
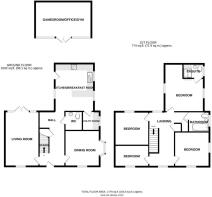
- SIZE
1,776 sq ft
165 sq m
- TENUREDescribes how you own a property. There are different types of tenure - freehold, leasehold, and commonhold.Read more about tenure in our glossary page.
Freehold
Key features
- Detached Family Home
- Four Bedrooms
- Principal Bedroom With En-Suite Facilities
- Kitchen With Integrated Appliances
- Utility Room
- Separate Living Room & Dining Room
- Driveway Parking For Two Vehicles
- Enclosed Rear Garden
- Gymnasium/Home Office
- No Onward Chain
Description
Entrance Hall - 5.5m x 2.6m (18'0" x 8'6") - Entrance via partly glazed UPVC front door, laminate wood effect flooring, access to under-stairs storage, wall mounted radiator, stairs to first floor landing, two ceiling mounted light fixtures, various power points.
Dining Room - 3.6m x 3.3m (11'9" x 10'9") - Double glazed UPVC bay window to side aspect, window to front aspect, wood laminate flooring, wall mounted radiator, ceiling mounted light fixture, various power points.
Kitchen / Breakfast Room - 4.7m x 3.9m (15'5" x 12'9") - Double glazed UPVC windows to either side aspect, partly glazed UPVC door to side aspect, various base and eye level units with marble effect worksurfaces over, four ring gas hob with extractor fan, one and half unit sink with drainer unit and mixer tap, double low-level oven with grill, integrated dishwasher, space for freestanding fridge/freezer; breakfast seating for four people, tiled flooring, splashback tiling, two wall mounted radiators, inset spotlights, ceiling mounted light fixture, various power points.
Utility Room - 1.8m x 1.8m (5'10" x 5'10") - Double glazed window to side aspect, various base level units with marble effect worksurfaces over, space for washing machine, space for tumble dryer, tiled flooring, wall mounted radiator, access to gas boiler, ceiling mounted light fixture, extractor fan.
Living Room - 5.5m x 3.3m (18'0" x 10'9") - Double glazed UPVC windows and French doors to rear aspect, window to front aspect, carpeted flooring, two wall mounted radiators, two ceiling mounted light fixtures, various power points, TV point.
Cloakroom - Low level WC, pedestal wash hand basin with separate taps, wall mounted heated towel rail, tiled flooring, partly tiled walls, ceiling mounted light fixture, extractor fan.
First Floor Landing - 5.5m x 4.0m (18'0" x 13'1") - Access via carpeted stairs with painted wooden banister, double glazed UPVC window to rear aspect, carpeted flooring, wall mounted radiator, access to airing cupboard and additional storage cupboard, access to loft, ceiling mounted light fixture, various power points. Doors to: Principal Bedroom, Bedroom Two, Bedroom Three, Bedroom Four, and Family Bathroom.
Principal Bedroom - 4.7m x 3.9m (15'5" x 12'9") - Double glazed UPVC window to side aspects, carpeted flooring, wall mounted radiator, ceiling mounted light fixture, various power points.
En-Suite - Frosted double glazed window to side aspect, three-piece suite comprising: low level WC, pedestal wash hand basin with separate taps, tile enclosed shower with sliding glass door and rainfall head; tiled flooring, partly tiled walls, ceiling mounted light fixtures, extractor fan.
Bedroom Two - 3.6m x 3.2m (11'9" x 10'5") - Double glazed UPVC window to front and side aspects, carpeted flooring, wall mounted radiator, ceiling mounted light fixture, various power points.
Bedroom Three - 3.4m x 3.4m (11'1" x 11'1") - Double glazed UPVC window to rear aspect, carpeted flooring, wall mounted radiator, ceiling mounted light fixture, various power points.
Bedroom Four - 3.4m x 2.1m (11'1" x 6'10") - Double glazed UPVC window to front aspect, carpeted flooring, wall mounted radiator, ceiling mounted light fixture, various power points.
Family Bathroom - Frosted double glazed UPVC window to side aspect, three-piece suite comprising: low level WC, pedestal wash hand basin with separate taps, panel enclosed bath with shower attachment and mixer tap; tiled flooring, vinyl flooring, wall mounted heated towel rail, inset spotlights, extractor fan.
Gardens - The property frontage consists of stone shingle beds with a stone path to the front door. To the rear aspect, a private rear garden is accessed via a timber gate, a stone patio entertaining area with stone path lead to the gymnasium outbuilding, and an artificial lawn - all enclosed by privacy fencing. Gymnasium/Home Office (5.7m x 3.6m or 18'8" x 11'9"): double glazed UPVC windows and French doors to garden aspect, timber built construction, separate consumer unit, loft storage, rubber matting flooring, ceiling mounted light fixtures, and various power points;
Driveway Parking - The property benefits from driveway parking for two vehicles, as well as communal guest parking.
Additional Information - Fibre to the property up to 900mbps. Gas central heating system. The property is subject to a service charge.
Brochures
Ainsworth Drive, Felsted, DunmowBrochure- COUNCIL TAXA payment made to your local authority in order to pay for local services like schools, libraries, and refuse collection. The amount you pay depends on the value of the property.Read more about council Tax in our glossary page.
- Band: F
- PARKINGDetails of how and where vehicles can be parked, and any associated costs.Read more about parking in our glossary page.
- Yes
- GARDENA property has access to an outdoor space, which could be private or shared.
- Yes
- ACCESSIBILITYHow a property has been adapted to meet the needs of vulnerable or disabled individuals.Read more about accessibility in our glossary page.
- Ask agent
Energy performance certificate - ask agent
Ainsworth Drive, Felsted, Dunmow
Add an important place to see how long it'd take to get there from our property listings.
__mins driving to your place
Get an instant, personalised result:
- Show sellers you’re serious
- Secure viewings faster with agents
- No impact on your credit score
Your mortgage
Notes
Staying secure when looking for property
Ensure you're up to date with our latest advice on how to avoid fraud or scams when looking for property online.
Visit our security centre to find out moreDisclaimer - Property reference 34143815. The information displayed about this property comprises a property advertisement. Rightmove.co.uk makes no warranty as to the accuracy or completeness of the advertisement or any linked or associated information, and Rightmove has no control over the content. This property advertisement does not constitute property particulars. The information is provided and maintained by Daniel Brewer Estate Agents, Essex. Please contact the selling agent or developer directly to obtain any information which may be available under the terms of The Energy Performance of Buildings (Certificates and Inspections) (England and Wales) Regulations 2007 or the Home Report if in relation to a residential property in Scotland.
*This is the average speed from the provider with the fastest broadband package available at this postcode. The average speed displayed is based on the download speeds of at least 50% of customers at peak time (8pm to 10pm). Fibre/cable services at the postcode are subject to availability and may differ between properties within a postcode. Speeds can be affected by a range of technical and environmental factors. The speed at the property may be lower than that listed above. You can check the estimated speed and confirm availability to a property prior to purchasing on the broadband provider's website. Providers may increase charges. The information is provided and maintained by Decision Technologies Limited. **This is indicative only and based on a 2-person household with multiple devices and simultaneous usage. Broadband performance is affected by multiple factors including number of occupants and devices, simultaneous usage, router range etc. For more information speak to your broadband provider.
Map data ©OpenStreetMap contributors.





