
Isle Of Wight Farm, Isle Of Wight Lane, Kensworth, LU6

- PROPERTY TYPE
Semi-Detached
- BEDROOMS
5
- BATHROOMS
3
- SIZE
3,136 sq ft
291 sq m
- TENUREDescribes how you own a property. There are different types of tenure - freehold, leasehold, and commonhold.Read more about tenure in our glossary page.
Freehold
Key features
- Exceptional character barn conversion
- Superb rural setting with tremendous country views
- Extraordinary vaulted living space with mezzanine
- Designer luxury fitted kitchen dining room
- Spacious study and family rooms
- Ensuite principal and guest bedrooms
- Three further bedrooms and bathroom
- Glorious private gardens with rural views
- Extensive off street courtyard parking
- Lovely condition throughout
Description
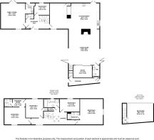
The feeling of space and light continues upstairs where there are four double bedrooms. The master bedroom again has a vaulted ceiling and en-suite shower room. Two of the remaining bedrooms have access to a dressing room and en suite shower room beyond. There is a further four piece family bathroom on this level. Outside the plot extends to nearly two-thirds of an acre and sits in an elevated position overlooking miles of open countryside. The gardens around the house have been designed by Rosemary Coldstream.
The garden is split into three distinct areas with a large Indian sandstone seating area adjacent to the main living space. To the other side of the house there is a further slate and sandstone patio, ideal for enjoying the late evening sun. A final circular sitting area with teak bench and limestone patio forms the perfect position to enjoy stunning uninterrupted countryside views. To the front of the property is a large driveway providing ample parking
Isle of Wight Lane is located on the fringe of Kensworth, a short drive from Whipsnade Zoo and the Dunstable Downs. Kensworth is a delightful village with 12th century church local school, shops and Public House. Beechwood Park mixed preparatory school is also close by. Excellent secondary schooling can be found in the nearby towns of Harpenden and St. Albans along with extensive shopping and leisure facilities and mainline rail services into London St Pancras. The M1 Junction 9 is around 5 miles away with close links to the M25. Luton Airport is also within easy driving distance.
Buyers Information:
In compliance with the UK's Anti Money Laundering (AML) regulations, we are required to confirm the identity of all prospective buyers at the point of an offer being accepted and use a third party, Identity Verification System to do so. There is a nominal charge of £48 (per person) including VAT for this service. For more information, please refer to the terms and conditions section of our website.
Brochures
Web DetailsBook Viewing- COUNCIL TAXA payment made to your local authority in order to pay for local services like schools, libraries, and refuse collection. The amount you pay depends on the value of the property.Read more about council Tax in our glossary page.
- Band: G
- PARKINGDetails of how and where vehicles can be parked, and any associated costs.Read more about parking in our glossary page.
- Off street
- GARDENA property has access to an outdoor space, which could be private or shared.
- Private garden
- ACCESSIBILITYHow a property has been adapted to meet the needs of vulnerable or disabled individuals.Read more about accessibility in our glossary page.
- Ask agent
Isle Of Wight Farm, Isle Of Wight Lane, Kensworth, LU6
Add an important place to see how long it'd take to get there from our property listings.
__mins driving to your place
Get an instant, personalised result:
- Show sellers you’re serious
- Secure viewings faster with agents
- No impact on your credit score
Your mortgage
Notes
Staying secure when looking for property
Ensure you're up to date with our latest advice on how to avoid fraud or scams when looking for property online.
Visit our security centre to find out moreDisclaimer - Property reference VAC132154. The information displayed about this property comprises a property advertisement. Rightmove.co.uk makes no warranty as to the accuracy or completeness of the advertisement or any linked or associated information, and Rightmove has no control over the content. This property advertisement does not constitute property particulars. The information is provided and maintained by Ashtons, Village & Country. Please contact the selling agent or developer directly to obtain any information which may be available under the terms of The Energy Performance of Buildings (Certificates and Inspections) (England and Wales) Regulations 2007 or the Home Report if in relation to a residential property in Scotland.
*This is the average speed from the provider with the fastest broadband package available at this postcode. The average speed displayed is based on the download speeds of at least 50% of customers at peak time (8pm to 10pm). Fibre/cable services at the postcode are subject to availability and may differ between properties within a postcode. Speeds can be affected by a range of technical and environmental factors. The speed at the property may be lower than that listed above. You can check the estimated speed and confirm availability to a property prior to purchasing on the broadband provider's website. Providers may increase charges. The information is provided and maintained by Decision Technologies Limited. **This is indicative only and based on a 2-person household with multiple devices and simultaneous usage. Broadband performance is affected by multiple factors including number of occupants and devices, simultaneous usage, router range etc. For more information speak to your broadband provider.
Map data ©OpenStreetMap contributors.





