
River House, 1 Victoria Road, Castletown

- PROPERTY TYPE
End of Terrace
- BEDROOMS
4
- BATHROOMS
2
- SIZE
Ask agent
- TENUREDescribes how you own a property. There are different types of tenure - freehold, leasehold, and commonhold.Read more about tenure in our glossary page.
Ask agent
Key features
- Elegant end of terrace period home in the heart of Castletown
- Idyllic riverside postion with superb vistas over Silver Burn River and Castletown Harbour
- Offered for sale with no onward chain
- Spacious and versatile accommodation over 3 levels
- Accommodation retains many period style details along with an abundance of charm and character
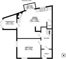
- Entrance porch and elegant reception hallway
- 2 Reception rooms comprisng stunning L shape first floor living room taking advantage of the vistas and there is a ground floor dining/family room
- Separate dining kitchen with a conservatory off
- 4 Bedrooms and 2 bathrooms
- Externally there is a side garden which has previously had planning approval for creation of off road parking (this has lapsed for some time - see link in heading for more details)
Description
An elegant end of terrace period home situated in the very heart of historic Castletown, occupying an idyllic riverside position with superb vistas over the Silver Burn River and Castletown Harbour. Offered for sale with no onward chain, this charming home presents a rare opportunity to acquire a characterful residence in one of the island’s most picturesque settings.
The property offers spacious and versatile accommodation arranged over three levels, retaining many delightful period-style details alongside an abundance of charm and character.
The accommodation comprises a welcoming entrance porch and elegant reception hallway, together with two reception rooms – a stunning L-shaped first floor living room designed to take full advantage of the harbour and riverside views, and a ground floor dining/family room. A separate dining kitchen leads through to a conservatory, further enhancing the living space.
There are four bedrooms served by two bathrooms, offering flexibility for family living or visiting guests.
Externally, the home benefits from a side garden, which has previously had planning approval for the creation of off-road parking (now lapsed – see link in heading for more details).
This is a truly special home that combines period elegance, riverside living, and a prime Castletown location – perfectly suited as a permanent residence or a charming retreat.
CLICK HERE TO VIEW PREVIOUS PLANNING APPROVAL (NOW LAPSED) FOR CREATION OF OFF ROAD PARKING
Inclusions All fitted floor coverings, blinds, curtains and light fittings
Appliances Oil fired Aga, fridge freezer
Tenure Freehold
Rates Treasury tel -
Heating Oil
- COUNCIL TAXA payment made to your local authority in order to pay for local services like schools, libraries, and refuse collection. The amount you pay depends on the value of the property.Read more about council Tax in our glossary page.
- Ask agent
- PARKINGDetails of how and where vehicles can be parked, and any associated costs.Read more about parking in our glossary page.
- Yes
- GARDENA property has access to an outdoor space, which could be private or shared.
- Yes
- ACCESSIBILITYHow a property has been adapted to meet the needs of vulnerable or disabled individuals.Read more about accessibility in our glossary page.
- Ask agent
Energy performance certificate - ask agent
River House, 1 Victoria Road, Castletown
Add an important place to see how long it'd take to get there from our property listings.
__mins driving to your place
Get an instant, personalised result:
- Show sellers you’re serious
- Secure viewings faster with agents
- No impact on your credit score
Your mortgage
Notes
Staying secure when looking for property
Ensure you're up to date with our latest advice on how to avoid fraud or scams when looking for property online.
Visit our security centre to find out moreDisclaimer - Property reference 6945. The information displayed about this property comprises a property advertisement. Rightmove.co.uk makes no warranty as to the accuracy or completeness of the advertisement or any linked or associated information, and Rightmove has no control over the content. This property advertisement does not constitute property particulars. The information is provided and maintained by Garforth Gray, Isle of Man. Please contact the selling agent or developer directly to obtain any information which may be available under the terms of The Energy Performance of Buildings (Certificates and Inspections) (England and Wales) Regulations 2007 or the Home Report if in relation to a residential property in Scotland.
*This is the average speed from the provider with the fastest broadband package available at this postcode. The average speed displayed is based on the download speeds of at least 50% of customers at peak time (8pm to 10pm). Fibre/cable services at the postcode are subject to availability and may differ between properties within a postcode. Speeds can be affected by a range of technical and environmental factors. The speed at the property may be lower than that listed above. You can check the estimated speed and confirm availability to a property prior to purchasing on the broadband provider's website. Providers may increase charges. The information is provided and maintained by Decision Technologies Limited. **This is indicative only and based on a 2-person household with multiple devices and simultaneous usage. Broadband performance is affected by multiple factors including number of occupants and devices, simultaneous usage, router range etc. For more information speak to your broadband provider.
Map data ©OpenStreetMap contributors.






