
Morgan Walk, Nantwich

- PROPERTY TYPE
Town House
- BEDROOMS
3
- BATHROOMS
2
- SIZE
Ask agent
- TENUREDescribes how you own a property. There are different types of tenure - freehold, leasehold, and commonhold.Read more about tenure in our glossary page.
Freehold
Key features
- Beautifully presented
- Popular development
- EPC C
- Garage
- Close to Nantwich town centre
- Short walk to the train station
- Good sized bedrooms
- Dual aspect lounge
- Open to offers
Description
Nantwich is a very popular town with many independent shops cafes bars and restaurants. Having the Shropshire union canal close by which is perfect for a leisurely stroll.
This beautifully presented family home has been improved with refitted kitchen bathroom and en-suite. Making it an easy home to just move in and enjoy living in.
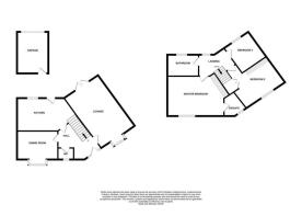
The accommodation comprises Entrance hall, cloakroom, lounge, dining room and kitchen to the ground floor. The first floor offers 3 good sized bedrooms the master with en-suite and a family bathroom. Outside the front garden has a path to the front door. The rear garden is a low maintenance court yard style with side access and a door the the garage.
Entrance Hall
A welcoming entrance with doors to cloakroom, lounge, dining room, and kitchen. Stairs to first floor.
Cloakroom
Window to front WC and wash hand basin. Radiator.
Lounge
17'8" (plus bay window.) x 10'8"
A bright dual aspect room with bay window to front flooding light in and French doors to rear giving access to the garden. Radiator.
Dining Room
12'6" x 7'7" (plus bay window)
Bay window to front. Radiator.
Kitchen
12'9" min. x 9'9"
An irregular shaped room. Refitted kitchen units in a shaker style. Built in Eye level double oven, Microwave, Dishwasher and Washing machine. Door to understairs cupboard. Door giving access to the rear garden. Window to rear. Radiator.
Master Bedroom
15'4" max x 11'2"
An irregular shaped room. Recess for wardrobe door to En-Suite. Window to front. Radiator.
Ensuite
Re fitted with shower cubicle, WC and hand basin in vanity unit. Fully tiled walls and floor. Ladder style radiator. Window to front.
Bedroom Two
13'2" x 13'7" max
A double bedroom with built in storage. Window to front. Radiator.
Bedroom Three
8'2" x 7'8"
Window to rear. Radiator.
Family Bathroom
6'7" x 6'"
Refitted bathroom with L shape bath shower above bath, WC Hand basin in vanity unit. Fully tiled walls and floor. Ladder style radiator. Window to rear.
Front Garden
Path to front door. Garden area with lawn and shrubs.
Rear Garden
A low maintenance garden with block paving. Side access gate. Door to garage.
Garage
Semi detached garage to rear with parking in front.
Agents Note
The freehold is available please ask the office for details.
Disclaimer
Butters John Bee Estate Agents also offer a professional, ARLA accredited Lettings and Management Service. If you are considering purchasing your property in order to rent, are looking at buy to let or would like a free review of your current portfolio then please call the Lettings Branch Manager on the number shown above.
Butters John Bee Estate Agents is the seller's agent for this property. Your conveyancer is legally responsible for ensuring any purchase agreement fully protects your position. We make detailed enquiries of the seller to ensure the information provided is as accurate as possible. Please inform us if you become aware of any information being inaccurate.
Brochures
Material InformationBrochure- COUNCIL TAXA payment made to your local authority in order to pay for local services like schools, libraries, and refuse collection. The amount you pay depends on the value of the property.Read more about council Tax in our glossary page.
- Band: D
- PARKINGDetails of how and where vehicles can be parked, and any associated costs.Read more about parking in our glossary page.
- Yes
- GARDENA property has access to an outdoor space, which could be private or shared.
- Yes
- ACCESSIBILITYHow a property has been adapted to meet the needs of vulnerable or disabled individuals.Read more about accessibility in our glossary page.
- Ask agent
Morgan Walk, Nantwich
Add an important place to see how long it'd take to get there from our property listings.
__mins driving to your place
Get an instant, personalised result:
- Show sellers you’re serious
- Secure viewings faster with agents
- No impact on your credit score
Affordability
Notes
Staying secure when looking for property
Ensure you're up to date with our latest advice on how to avoid fraud or scams when looking for property online.
Visit our security centre to find out moreDisclaimer - Property reference 0908_BJB090803811. The information displayed about this property comprises a property advertisement. Rightmove.co.uk makes no warranty as to the accuracy or completeness of the advertisement or any linked or associated information, and Rightmove has no control over the content. This property advertisement does not constitute property particulars. The information is provided and maintained by Butters John Bee, Nantwich. Please contact the selling agent or developer directly to obtain any information which may be available under the terms of The Energy Performance of Buildings (Certificates and Inspections) (England and Wales) Regulations 2007 or the Home Report if in relation to a residential property in Scotland.
*This is the average speed from the provider with the fastest broadband package available at this postcode. The average speed displayed is based on the download speeds of at least 50% of customers at peak time (8pm to 10pm). Fibre/cable services at the postcode are subject to availability and may differ between properties within a postcode. Speeds can be affected by a range of technical and environmental factors. The speed at the property may be lower than that listed above. You can check the estimated speed and confirm availability to a property prior to purchasing on the broadband provider's website. Providers may increase charges. The information is provided and maintained by Decision Technologies Limited. **This is indicative only and based on a 2-person household with multiple devices and simultaneous usage. Broadband performance is affected by multiple factors including number of occupants and devices, simultaneous usage, router range etc. For more information speak to your broadband provider.
Map data ©OpenStreetMap contributors.








