
Barnett Wood Lane, Ashtead, KT21

Letting details
- Let available date:
- 05/11/2025
- Deposit:
- £1,442A deposit provides security for a landlord against damage, or unpaid rent by a tenant.Read more about deposit in our glossary page.
- Min. Tenancy:
- Ask agent How long the landlord offers to let the property for.Read more about tenancy length in our glossary page.
- Let type:
- Long term
- Furnish type:
- Unfurnished
- Council Tax:
- Ask agent
- PROPERTY TYPE
Apartment
- BEDROOMS
1
- BATHROOMS
1
- SIZE
Ask agent
Key features
- AVAILABLE 5th NOVEMBER
- UNFURNISHED
- FIRST FLOOR SPACIOUS APARTMENT WITH BALCONY
- SUNNY LOUNGE WITH BALCONY AND PLEASANT OUTLOOK
- FITTED KITCHEN WITH APPLIANCES
- SPACIOUS DOUBLE BEDROOM WITH FITTED WARDROBES
- STYLISH MODERN BATHROOM
- EXCELLENT STORAGE
- OFF STREET PARKING SPACE
- LOVELY COMMUNAL GROUNDS
Description
MUST BE SEEN!
A fabulously appointed bright, one bedroom, first floor flat with balcony in the heart of Lower Ashtead, close to local shops and Ashtead station. Parking space and lovely communal grounds. MUST BE SEEN!
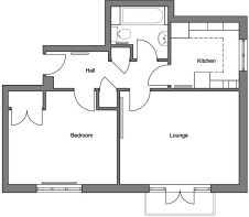
Hallway - Communal door leading to communal hallway and stairs rising to first floor and apartment front door.
Inside there is a spacious hallway, spacious storage cupboard with shelves and coat cupboard with rail. Entryphone system.
Lounge - Sunny, south facing room with ample sockets, tv aerial socket. Double French doors open onto the balcony with a pleasant outlook over Barnett Wood Lane.
Bedroom - A good size double bedroom, South facing to front aspect with double fitted wardrobe.
Kitchen - Fully fitted with a range of beech wall and base units and solid laminate worktop, gas hob and electric Electrolux oven, Hotpoint 1600 spin washer/dryer, Hotpoint fridge/freezer, cupboard housing water tank and extra shelving storage. Window overlooks communal garden.
Bathroom - Fully fitted modern white suite comprising wash hand basin with mirror above, wc, bath with electric Aqualisa shower, glass screen & shower curtain, heated chrome towel rail, and stunning grey tiles.
Outside - Generous non allocated resident's parking for one vehicle, well kept communal grounds, shared communal shed for tenant's own use (and at own risk). Short walk to local shops and station serving London Waterloo and Victoria.
EPC: C. Council Tax: C
Sorry unsuitable for pets or families.
Brochures
BARNETT WOOD LANE, ASHTEAD, KT21- COUNCIL TAXA payment made to your local authority in order to pay for local services like schools, libraries, and refuse collection. The amount you pay depends on the value of the property.Read more about council Tax in our glossary page.
- Band: C
- PARKINGDetails of how and where vehicles can be parked, and any associated costs.Read more about parking in our glossary page.
- Yes
- GARDENA property has access to an outdoor space, which could be private or shared.
- Ask agent
- ACCESSIBILITYHow a property has been adapted to meet the needs of vulnerable or disabled individuals.Read more about accessibility in our glossary page.
- Ask agent
Barnett Wood Lane, Ashtead, KT21
Add an important place to see how long it'd take to get there from our property listings.
__mins driving to your place
Notes
Staying secure when looking for property
Ensure you're up to date with our latest advice on how to avoid fraud or scams when looking for property online.
Visit our security centre to find out moreDisclaimer - Property reference 34174266. The information displayed about this property comprises a property advertisement. Rightmove.co.uk makes no warranty as to the accuracy or completeness of the advertisement or any linked or associated information, and Rightmove has no control over the content. This property advertisement does not constitute property particulars. The information is provided and maintained by Patrick Gardner, Ashtead - Lettings. Please contact the selling agent or developer directly to obtain any information which may be available under the terms of The Energy Performance of Buildings (Certificates and Inspections) (England and Wales) Regulations 2007 or the Home Report if in relation to a residential property in Scotland.
*This is the average speed from the provider with the fastest broadband package available at this postcode. The average speed displayed is based on the download speeds of at least 50% of customers at peak time (8pm to 10pm). Fibre/cable services at the postcode are subject to availability and may differ between properties within a postcode. Speeds can be affected by a range of technical and environmental factors. The speed at the property may be lower than that listed above. You can check the estimated speed and confirm availability to a property prior to purchasing on the broadband provider's website. Providers may increase charges. The information is provided and maintained by Decision Technologies Limited. **This is indicative only and based on a 2-person household with multiple devices and simultaneous usage. Broadband performance is affected by multiple factors including number of occupants and devices, simultaneous usage, router range etc. For more information speak to your broadband provider.
Map data ©OpenStreetMap contributors.