
Smary Lane, Murton, York YO19 5UG

- PROPERTY TYPE
Detached
- BEDROOMS
4
- BATHROOMS
2
- SIZE
Ask agent
- TENUREDescribes how you own a property. There are different types of tenure - freehold, leasehold, and commonhold.Read more about tenure in our glossary page.
Freehold
Key features
- 4 Bedroom Detached Extended Property
- Lovely Views Over Open Fields
- Large Private Gardens. Extensive Patio
- Superb Open Plan Kitchen Diner + Bi-Fold Doors
- Living Room + Oak Engineered Flooring
- Luxury Villeroy + Bosch House Bathroom. Main Bedroom Shower Suite
- Tandem Length Garage. Electric Gated Driveway Entrance
- Easy Access to the City of York & University
- Call Hudson Moody to View
- EPC: C
Description
General Remarks - This highly impressive property offers flexible accommodation over 2 floors, plus a good degree of privacy with generous sized, private lawned gardens, and is well situated to enjoy some lovely countryside views.
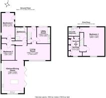
Accommodation comprises: a stylish, tiled walkway with glass balustrade leads up and into a superb 'Open Plan' kitchen diner via bi-fold doors. It's a noticeably light room enjoying countryside views. Integral units include: a full range of units with granite tops, dishwasher, low level fridge freezer, wine fridge, Island incorporating breakfast bar, black Rangemaster double oven with gas hob and extractor over. Karndean flooring. Beyond the kitchen is a generous sized living room with Oak engineered flooring also benefiting from countryside views. The flooring continues to the rear lobby; adjacent to which is a large utility room with bifold doors leading to the rear patio. Understairs storage. Ground floor luxury Villeroy & Bosch house bathroom which includes a free-standing bath and separate walk-in Hans Grohe shower. Two ground floor bedrooms; one with garden views and access. Storage cupboard housing water cylinder.
A contemporary staircase with Oak handrail and glass balustrade lead up to the first-floor accommodation, which comprises main bedroom with en-suite bathroom and shower. The bedroom enjoys countryside views, plus includes fitted wardrobes with matching dressing table. The fourth bedroom is currently set up as a walk-in wardrobe with an extensive range of fitted wardrobes.
Externally the property is accessed via stone pillared electric gates entering a large block paved driveway providing plenty of off-road parking provision (including space for a motor home or similar sized vehicle), plus attached tandem length garage. A separate pedestrian gate with paved path flanks a marble water feature with slate surround. The main garden lies to the rear of the property which is enclosed via a combination of Laurel hedge and timber fenced boundaries flanked within by a variety of shrubs. Immediately to the rear of the property is an extensive patio with anti-slip porcelain tiles that span the full property width. Garden storage shed. Summer house. Additional timber shed. Barbeque. Greenhouse.
In summary, a rare opportunity to secure a versatile property with lovely views.
Viewing - All viewing is strictly by prior appointment with the sole selling agents, Hudson Moody. Please contact our personal agent Alex McClean.
Location - The village of Murton lies approximately 3.5 miles to the east of York city centre. The nearby A166 trunk road gives easy access to York and the A64 bypass serving Leeds and the West Yorkshire conurbations. There is quick access in to the city of York which offers a vast array of amenities including the train station and the village itself has a Church. The property is in the catchment area for the Archbishop Holgate Secondary School.
Amenities - *Gas fired boiler (located in one of the ground floor bedrooms)
*aluminium double glazed windows
*acces hatch to loft space from the first floor landing
Local Authority - City of York Council, West Offices, Station Rise, York, YO1 6GA. Telephone .
Offer Procedure - Before contacting a Building Society, Bank or Solicitor you should make your offer to the office dealing with the sale, as any delay may result in the sale being agreed to another purchaser, thus incurring unnecessary costs. Under the Estate Agency Act 1991, you will be required to provide us with financial information in order to verify your position, before we can recommend your offer to the vendor. We will also require proof of identification in order to adhere to Money Laundering Regulations.
Agent's Note - We are advised that the garden is part of the green belt therefore certain restrictions may apply.
Brochures
Smary Lane, Murton, York YO19 5UGBrochure- COUNCIL TAXA payment made to your local authority in order to pay for local services like schools, libraries, and refuse collection. The amount you pay depends on the value of the property.Read more about council Tax in our glossary page.
- Band: E
- PARKINGDetails of how and where vehicles can be parked, and any associated costs.Read more about parking in our glossary page.
- Yes
- GARDENA property has access to an outdoor space, which could be private or shared.
- Yes
- ACCESSIBILITYHow a property has been adapted to meet the needs of vulnerable or disabled individuals.Read more about accessibility in our glossary page.
- Ask agent
Smary Lane, Murton, York YO19 5UG
Add an important place to see how long it'd take to get there from our property listings.
__mins driving to your place
Get an instant, personalised result:
- Show sellers you’re serious
- Secure viewings faster with agents
- No impact on your credit score
Your mortgage
Notes
Staying secure when looking for property
Ensure you're up to date with our latest advice on how to avoid fraud or scams when looking for property online.
Visit our security centre to find out moreDisclaimer - Property reference 34179360. The information displayed about this property comprises a property advertisement. Rightmove.co.uk makes no warranty as to the accuracy or completeness of the advertisement or any linked or associated information, and Rightmove has no control over the content. This property advertisement does not constitute property particulars. The information is provided and maintained by Hudson Moody, Dunnington. Please contact the selling agent or developer directly to obtain any information which may be available under the terms of The Energy Performance of Buildings (Certificates and Inspections) (England and Wales) Regulations 2007 or the Home Report if in relation to a residential property in Scotland.
*This is the average speed from the provider with the fastest broadband package available at this postcode. The average speed displayed is based on the download speeds of at least 50% of customers at peak time (8pm to 10pm). Fibre/cable services at the postcode are subject to availability and may differ between properties within a postcode. Speeds can be affected by a range of technical and environmental factors. The speed at the property may be lower than that listed above. You can check the estimated speed and confirm availability to a property prior to purchasing on the broadband provider's website. Providers may increase charges. The information is provided and maintained by Decision Technologies Limited. **This is indicative only and based on a 2-person household with multiple devices and simultaneous usage. Broadband performance is affected by multiple factors including number of occupants and devices, simultaneous usage, router range etc. For more information speak to your broadband provider.
Map data ©OpenStreetMap contributors.









