
Prospect Place, Hipley Street, Woking, Surrey, GU22

- PROPERTY TYPE
Flat
- BEDROOMS
2
- BATHROOMS
2
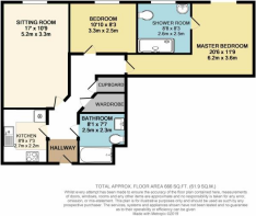
- SIZE
666 sq ft
62 sq m
Key features
- Third floor executive apartment
- Two spacious bedrooms
- Large living/diner room
- Separate fitted kitchen
- Master bedroom
- En-suite and Family bathroom
- 2 undercover parking bays
- Gated access and well-kept communal gardens
- Walking distance to high street, amenities and schools
- Loft Storage
Description
The pleasingly presented accommodation comprises a welcoming entrance hall leading to a spacious, well-proportioned living/dining room, and a modern fitted kitchen with a new kitchen hob, dishwasher, and oven, all installed within the last 6 months. The property also benefits from a newly installed hot water system, enhancing energy efficiency and ensuring reliable hot water supply throughout the home.
In addition, there are two double bedrooms and a family-size bathroom. The master bedroom is set away from the main living quarters and benefits from an en-suite shower/w.c. as well as a pleasant view. Additional features include a loft ideal for useful storage space, two allocated parking bays (both undercover), and maintained communal areas.
Brochures
Particulars- COUNCIL TAXA payment made to your local authority in order to pay for local services like schools, libraries, and refuse collection. The amount you pay depends on the value of the property.Read more about council Tax in our glossary page.
- Band: D
- PARKINGDetails of how and where vehicles can be parked, and any associated costs.Read more about parking in our glossary page.
- Yes
- GARDENA property has access to an outdoor space, which could be private or shared.
- Ask agent
- ACCESSIBILITYHow a property has been adapted to meet the needs of vulnerable or disabled individuals.Read more about accessibility in our glossary page.
- Ask agent
Prospect Place, Hipley Street, Woking, Surrey, GU22
Add an important place to see how long it'd take to get there from our property listings.
__mins driving to your place
Get an instant, personalised result:
- Show sellers you’re serious
- Secure viewings faster with agents
- No impact on your credit score



Your mortgage
Notes
Staying secure when looking for property
Ensure you're up to date with our latest advice on how to avoid fraud or scams when looking for property online.
Visit our security centre to find out moreDisclaimer - Property reference WOK190089. The information displayed about this property comprises a property advertisement. Rightmove.co.uk makes no warranty as to the accuracy or completeness of the advertisement or any linked or associated information, and Rightmove has no control over the content. This property advertisement does not constitute property particulars. The information is provided and maintained by Seymours Estate Agents, Woking. Please contact the selling agent or developer directly to obtain any information which may be available under the terms of The Energy Performance of Buildings (Certificates and Inspections) (England and Wales) Regulations 2007 or the Home Report if in relation to a residential property in Scotland.
*This is the average speed from the provider with the fastest broadband package available at this postcode. The average speed displayed is based on the download speeds of at least 50% of customers at peak time (8pm to 10pm). Fibre/cable services at the postcode are subject to availability and may differ between properties within a postcode. Speeds can be affected by a range of technical and environmental factors. The speed at the property may be lower than that listed above. You can check the estimated speed and confirm availability to a property prior to purchasing on the broadband provider's website. Providers may increase charges. The information is provided and maintained by Decision Technologies Limited. **This is indicative only and based on a 2-person household with multiple devices and simultaneous usage. Broadband performance is affected by multiple factors including number of occupants and devices, simultaneous usage, router range etc. For more information speak to your broadband provider.
Map data ©OpenStreetMap contributors.





