
Ludham Hall Lane, Great Notley, Essex
- PROPERTY TYPE
Land
- SIZE
Ask agent
Key features
- Exclusive gated development in sought-after Great Notley
- Custom build opportunity
- Open-plan kitchens with quartz worktops & Siemens appliances
- Luxury bathrooms with Crosswater fittings & walk-in showers
- Landscaped gardens with turfed lawns & Indian sandstone patios
- Air source heat pumps, underfloor heating, Cat 6 cabling & EV charging
- Secure entry, CCTV & alarm system
- Walking distance to shops, schools & parkland with great transport links
Description
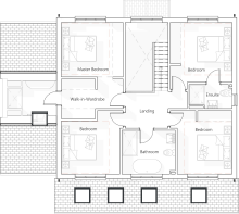
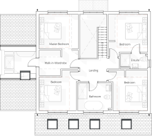
The Ashbury
A substantial four-bedroom, three-bathroom detached home extending to 2,415 sq ft across two floors. These homes offer the ability to tailor the design through a custom build process.
The ground floor centres around a large open-plan kitchen, dining and family space ideal for entertaining and everyday living, while upstairs the principal suite features a luxury ensuite and bespoke built-in storage. Three further bedrooms are generously proportioned and complemented by high-spec bathrooms.
Premium Specification – Inside and Out
Every home within the development is completed to an uncompromising standard:
Handcrafted kitchens with quartz worktops, Siemens appliances, boiling water taps, and bespoke lighting
Luxury bathrooms featuring Crosswater sanitaryware, large walk-in showers, freestanding baths (in selected plots), porcelain tiling, and chrome towel rails
Underfloor heating powered by air source heat pumps, Cat 6 cabling, LED lighting, and EV charging points
Aluminium windows and bifold doors, solid-core internal doors, and exceptional insulation for comfort and energy efficiency
Outside, each plot benefits from a Cotswold stone driveway, landscaped gardens, Indian sandstone patio, and comprehensive security features including gated access, CCTV, and motion-sensitive lighting.
Location
Tucked away on a quiet lane in Great Notley, this exclusive development offers a rare blend of village charm and modern convenience. Residents are within walking distance of green spaces, shops, cafés, and well-regarded schools, with easy access to Chelmsford, Cambridge, and London via excellent road and rail links.
Contact us today for more information, to discuss availability, reserve your plot, or explore the option to customise your new home.
Ludham Hall Lane, Great Notley, Essex
NEAREST STATIONS
Distances are straight line measurements from the centre of the postcode- Braintree Station1.3 miles
- Braintree Freeport Station1.5 miles
- Cressing Station1.8 miles

Notes
Disclaimer - Property reference YPW-19786425. The information displayed about this property comprises a property advertisement. Rightmove.co.uk makes no warranty as to the accuracy or completeness of the advertisement or any linked or associated information, and Rightmove has no control over the content. This property advertisement does not constitute property particulars. The information is provided and maintained by Willmott & Lake, Bishop's Stortford. Please contact the selling agent or developer directly to obtain any information which may be available under the terms of The Energy Performance of Buildings (Certificates and Inspections) (England and Wales) Regulations 2007 or the Home Report if in relation to a residential property in Scotland.
Map data ©OpenStreetMap contributors.







