
3 bedroom detached house for sale
Clos y Berllan, Newbridge-on-Wye, LD1

- PROPERTY TYPE
Detached
- BEDROOMS
3
- BATHROOMS
2
- SIZE
Ask agent
- TENUREDescribes how you own a property. There are different types of tenure - freehold, leasehold, and commonhold.Read more about tenure in our glossary page.
Freehold
Key features
- The reception room to the rear of the property has French windows which open onto the back patio. The patio has an electric canopy to provide shade, if required.
- Parking space at the front of the house for 2 vehicles, with capacity for further spaces
- The large master bedroom has an ensuite shower room and toilet. This is in addition to the main bathroom and downstairs toilet.
- The kitchen includes an induction cooker and dishwasher. There is a spacious utility room adjoining the kitchen.
Description
Well presented detached family home in the bustling village of Newbridge-on-Wye is situated in a quiet cul-de-sac on the outskirts. The village has a primary school, two pubs, a post office, two churches and has excellent links to the nearby towns of Built Wells, Llandrindod Wells and Rhayader.
The property is situated high above the river Wye and backs onto ancient woodland. The rear garden offers a unique space of tranquility and privacy, surrounded by nature. The garden contains a large hut, which has an electricity supply.
**ENQUIRIES**
For all enquiries, viewing requests or to create your own listing please visit the Emoov website.
If calling, please quote reference: S5397
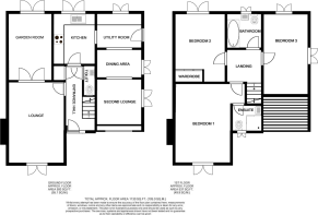
Lounge
4.6m x 3.3m
A spacious lounge features an open fireplace with a chimney. It is front-facing and overlooks the front garden. Double doors separate the lounge from the rear garden room, providing flexible space for both areas. There are twelve plug sockets and two USB charging points for convenience.
Garden Room
2.5m x 4m
Located at the rear of the property, the garden room provides natural light and has French windows which open onto the back patio, providing a clear view of the private back garden. There is a central heating radiator and six plug sockets within the room.
Kitchen
3m x 2.55m
The kitchen is at the rear of the house, adjacent to the garden room and contains an induction hob and cooker hood, with extractor fan. There are built in units, including a dishwasher and free-standing fridge. The kitchen has a radiator and five plug sockets.
Utility area
3.5m x 2.65m
A versatile space which includes an area for dining as well as coat and shoe storage. Adjoining the kitchen, it has a spacious worktop and fitted cupboards, heating control panel and four plug sockets. The external door leads onto the side patio, giving access to the back garden and front drive.
Second lounge
3m x 2.65m
A cosy second lounge located next to the utility/dining area providing additional space for socialising and relaxing. The window overlooks the side patio and contains four sockets and a radiator. This additional space was a conversion from the original, integrated garage.
Downstairs toilet
The downstairs toilet includes a basin pedestal, extractor fan and storage space. This is a useful convenience on the ground floor.
Bedroom 1
5.5m x 4.1m
The very spacious master bedroom includes an en-suite shower room with toilet, basin pedestal and extractor fan and wall-mounted radiator. Located at the front of the house, it overlooks the drive and front garden. The bedroom has a radiator a four plug sockets.
Bedroom 2
3.9m x 3m
The rear second bedroom overlooks the garden and includes built-in wardrobes on one side. The room comfortably fits a double bed and is entered from the upstairs landing. There is a radiator in the room and five sockets. The electric socket for the patio canopy is plugged into this room.
Bedroom 3
4.65m x 2.7m
This generously proportioned bedroom extends the length of the house and has windows on two sides. It is a bright and airy space and can comfortably fit a double bed. The bedroom has a radiator and four plug sockets.
Bathroom
2.1m x 2m
The bathroom is spacious and includes an electric shower over the bath and glass shower panel. The bathroom also contains a radiator and towel rail as well as shaver socket.
Brochures
Book a viewing- COUNCIL TAXA payment made to your local authority in order to pay for local services like schools, libraries, and refuse collection. The amount you pay depends on the value of the property.Read more about council Tax in our glossary page.
- Ask agent
- PARKINGDetails of how and where vehicles can be parked, and any associated costs.Read more about parking in our glossary page.
- Driveway
- GARDENA property has access to an outdoor space, which could be private or shared.
- Front garden,Patio,Rear garden
- ACCESSIBILITYHow a property has been adapted to meet the needs of vulnerable or disabled individuals.Read more about accessibility in our glossary page.
- Ask agent
Clos y Berllan, Newbridge-on-Wye, LD1
Add an important place to see how long it'd take to get there from our property listings.
__mins driving to your place
Get an instant, personalised result:
- Show sellers you’re serious
- Secure viewings faster with agents
- No impact on your credit score
Your mortgage
Notes
Staying secure when looking for property
Ensure you're up to date with our latest advice on how to avoid fraud or scams when looking for property online.
Visit our security centre to find out moreDisclaimer - Property reference 5397. The information displayed about this property comprises a property advertisement. Rightmove.co.uk makes no warranty as to the accuracy or completeness of the advertisement or any linked or associated information, and Rightmove has no control over the content. This property advertisement does not constitute property particulars. The information is provided and maintained by Emoov, Chelmsford. Please contact the selling agent or developer directly to obtain any information which may be available under the terms of The Energy Performance of Buildings (Certificates and Inspections) (England and Wales) Regulations 2007 or the Home Report if in relation to a residential property in Scotland.
*This is the average speed from the provider with the fastest broadband package available at this postcode. The average speed displayed is based on the download speeds of at least 50% of customers at peak time (8pm to 10pm). Fibre/cable services at the postcode are subject to availability and may differ between properties within a postcode. Speeds can be affected by a range of technical and environmental factors. The speed at the property may be lower than that listed above. You can check the estimated speed and confirm availability to a property prior to purchasing on the broadband provider's website. Providers may increase charges. The information is provided and maintained by Decision Technologies Limited. **This is indicative only and based on a 2-person household with multiple devices and simultaneous usage. Broadband performance is affected by multiple factors including number of occupants and devices, simultaneous usage, router range etc. For more information speak to your broadband provider.
Map data ©OpenStreetMap contributors.





