
Lan Close, Graigwen, Pontypridd

- PROPERTY TYPE
Semi-Detached
- BEDROOMS
3
- BATHROOMS
1
- SIZE
1,292 sq ft
120 sq m
- TENUREDescribes how you own a property. There are different types of tenure - freehold, leasehold, and commonhold.Read more about tenure in our glossary page.
Freehold
Key features
- South-West Facing
- Off-Road Parking and Garage
- Fantastic Views
- Sought After Location
- Close To Local Amenities
- No Onward Chain
- Ideal First Time Purchase
- Great A470/M4 Access
Description
**NO ONWARD CHAIN**
**FANTASTIC VIEWS TO REAR**
**3D VIDEO TOUR AVAILABLE**
UNIQUE and RARE OPPORTUNITY TO PURCHASE THIS THREE BEDROOM SEMI-DETACHED PROPERTY - LOCATED IN THE SMALL VILLAGE OF GRAIGWEN, PONTYPRIDD. PROPERTIES HERE ARE RARELY AVAILABLE, SO AN EARLY VIEWING IS THOROUGHLY RECOMMENDED.
**ORIGINAL PARQUET FLOORING**
**BLOCK PAVED OFF-ROAD PARKING AND GARAGE**
**POTENTIAL TO EXTEND STP**
The Whiterock estate is within a few minute drive of Pontypridd town centre which includes a wide range of shops and sporting and recreational facilities. The local primary schools are Coedylan Primary & Ysgol G.G. Evan James Primary School with the local comprehensive being Pontypridd High School. There is also a useful mainline railway in Pontypridd town centre. Easy access to the M4 motorway brings other major centres including the capital city of Cardiff, Newport and Swansea within commuting distance.
Additional Information
------------------------------------
Tenure: Freehold
EPC: D
Council Tax Band: C
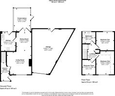
Entrance Porch/Hallway (Ground Floor)
Accessed via UPVC double glazed door to side. Parquet flooring. Skimmed walls and ceiling. Single pendant ceiling light. Wall mounted radiator. Staircase. Door leading through to living/dining room.
Living/Dining Room (Ground Floor)
UPVC double glazed window to front. UPVC double glazed French doors to rear leading to conservatory. Skimmed and papered walls. Skimmed ceiling. Two pendant ceiling lights. Wall mounted radiator. Electric feature fireplace. Understairs storage housing gas meter, fuse box and electric meter. Door leading through to kitchen.
Kitchen (Ground Floor)
UPVC double glazed door leading to rear garden. UPVC double glazed window to rear. Tiled flooring. Skimmed and tiled walls. Skimmed ceiling. Spotlights. Modern grey wall and base units. Laminate worktops. Grey composite sink. Four ring gas hob. Fan oven. Integrated dishwasher. Space for fridge/freezer. Extractor fan.
Conservatory (Ground Floor)
UPVC double glazed door to side leading to rear garden. UPVC double glazed windows to side and rear. Tiled flooring. Skimmed walls. Polycarbonate roof. Three prong ceiling light. Single wall light. Views.
Landing (First Floor)
Continuation of carpeted flooring from staircase. Skimmed walls and ceiling. Three prong ceiling light. Loft hatch. Doors leading to all first floor rooms and airing cupboard housing Ariston combi boiler.
Bedroom One (First Floor)
UPVC double glazed window to front elevation. Continuation of carpeted flooring from landing. Papered walls. Artex ceiling. Single ceiling light/fan. Wall mounted radiator. Built-in wardrobes. Views.
Bedroom Two (First Floor)
UPVC double glazed window to rear elevation. Continuation of carpeted flooring from landing. Skimmed walls. Papered ceiling. Three prong ceiling light. Wall mounted radiator.
Bedroom Three (First Floor)
UPVC double glazed window to front elevation. Continuation of carpeted flooring from landing. Skimmed walls. Papered ceiling. Three prong ceiling light. Wall mounted radiator. Views.
Bathroom (First Floor)
UPVC double glazed window to rear elevation. Lino flooring. Tiled walls. Wood clad ceiling. Single ceiling light. Wall mounted radiator. Mains shower over bath. Low level WC. Wash hand basin.
Garage (First Floor)
Up and over door to the front. UPVC double glazed door to the rear. Concrete base. Brick and block walls. Five ceiling strip lights. Fuse box. Space for chest freezer, washing machine and tumble dryer.
Outside
Block paved off-road driveway parking and a large garage to the front. South-west facing two tier rear garden space complemented by chippings, real grass, trees, shrubbery and decking. Further access to the garage from the rear garden. Outside tap. Featheredge fencing.
Directions
From our office at 1 Church St, Pontypridd CF37 2TH, head north on Gelliwastad Rd/A4223 towards Penuel Ln, turn left onto Gelliwastad Grove, continue onto Thomas St, turn right onto Tyfica Rd, turn left onto Thomas St, turn left onto Graigwen Pl, turn right onto Graigwen Rd, turn right onto Whiterock Ave, turn left onto Whiterock Cl, turn left onto Lanwood Rd, turn right onto Lan Cl, destination will be on the right.
Brochures
Property Brochure- COUNCIL TAXA payment made to your local authority in order to pay for local services like schools, libraries, and refuse collection. The amount you pay depends on the value of the property.Read more about council Tax in our glossary page.
- Band: C
- PARKINGDetails of how and where vehicles can be parked, and any associated costs.Read more about parking in our glossary page.
- Garage,Driveway,Off street,No disabled parking,Not allocated,Rear,No permit
- GARDENA property has access to an outdoor space, which could be private or shared.
- Private garden,Rear garden
- ACCESSIBILITYHow a property has been adapted to meet the needs of vulnerable or disabled individuals.Read more about accessibility in our glossary page.
- Ask agent
Lan Close, Graigwen, Pontypridd
Add an important place to see how long it'd take to get there from our property listings.
__mins driving to your place
Get an instant, personalised result:
- Show sellers you’re serious
- Secure viewings faster with agents
- No impact on your credit score
Your mortgage
Notes
Staying secure when looking for property
Ensure you're up to date with our latest advice on how to avoid fraud or scams when looking for property online.
Visit our security centre to find out moreDisclaimer - Property reference sale-896. The information displayed about this property comprises a property advertisement. Rightmove.co.uk makes no warranty as to the accuracy or completeness of the advertisement or any linked or associated information, and Rightmove has no control over the content. This property advertisement does not constitute property particulars. The information is provided and maintained by James Douglas, Pontypridd. Please contact the selling agent or developer directly to obtain any information which may be available under the terms of The Energy Performance of Buildings (Certificates and Inspections) (England and Wales) Regulations 2007 or the Home Report if in relation to a residential property in Scotland.
*This is the average speed from the provider with the fastest broadband package available at this postcode. The average speed displayed is based on the download speeds of at least 50% of customers at peak time (8pm to 10pm). Fibre/cable services at the postcode are subject to availability and may differ between properties within a postcode. Speeds can be affected by a range of technical and environmental factors. The speed at the property may be lower than that listed above. You can check the estimated speed and confirm availability to a property prior to purchasing on the broadband provider's website. Providers may increase charges. The information is provided and maintained by Decision Technologies Limited. **This is indicative only and based on a 2-person household with multiple devices and simultaneous usage. Broadband performance is affected by multiple factors including number of occupants and devices, simultaneous usage, router range etc. For more information speak to your broadband provider.
Map data ©OpenStreetMap contributors.







