Dennings Mews, York

- PROPERTY TYPE
House
- BEDROOMS
3
- BATHROOMS
2
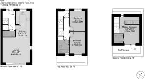
- SIZE
Ask agent
- TENUREDescribes how you own a property. There are different types of tenure - freehold, leasehold, and commonhold.Read more about tenure in our glossary page.
Freehold
Key features
- Exclusive development of just 9 contemporary townhouses
- Ideally situated in a quiet enclave close to the hospital and city centre
- Innovative and dramatic aesthetics and impressive eco-credentials
- Mix of 3 and 4 bedroom homes each with gardens 2 parking spaces and EV charging
- Stylish kitchens and 2 contemporary bathrooms
- Stunning roof terrace from primary bedroom
- Award winning builders behind The Purey Cust and Connaught Gardens
- Urban living with an unusually green outlook and delightful cycle/footpath to the city
- TURNKEY HOMES- REGISTER FOR EARLY RELEASE INFORMATION
- 10 year Warranty
Description
BE THE FIRST TO KNOW. REGISTER NOW
COMING SOON REGISTER YOUR INTEREST
A rare opportunity to purchase one of just nine 3 and 4 bedroom new build townhouses, offering cutting-edge design, exceptional energy efficiency, and contemporary living at its finest.
Each home has been thoughtfully designed with spacious open-plan living, high-spec finishes, and eco-conscious features including energy efficient heat pumps and underfloor heating to the ground floor. Stylish handleless kitchens with Silestone worktops, wine cooler and quality AEG appliances enjoy access to landscaped gardens Ideal for al-fresco entertaining. These stunning new properties combine style and sustainability in a prime location.
Prices from £495k to £575k
Brochures
Brochure 1- COUNCIL TAXA payment made to your local authority in order to pay for local services like schools, libraries, and refuse collection. The amount you pay depends on the value of the property.Read more about council Tax in our glossary page.
- Band: TBC
- PARKINGDetails of how and where vehicles can be parked, and any associated costs.Read more about parking in our glossary page.
- Yes
- GARDENA property has access to an outdoor space, which could be private or shared.
- Yes
- ACCESSIBILITYHow a property has been adapted to meet the needs of vulnerable or disabled individuals.Read more about accessibility in our glossary page.
- Ask agent
Dennings Mews, York
Add an important place to see how long it'd take to get there from our property listings.
__mins driving to your place
Get an instant, personalised result:
- Show sellers you’re serious
- Secure viewings faster with agents
- No impact on your credit score
Your mortgage
Notes
Staying secure when looking for property
Ensure you're up to date with our latest advice on how to avoid fraud or scams when looking for property online.
Visit our security centre to find out moreDisclaimer - Property reference 34191747. The information displayed about this property comprises a property advertisement. Rightmove.co.uk makes no warranty as to the accuracy or completeness of the advertisement or any linked or associated information, and Rightmove has no control over the content. This property advertisement does not constitute property particulars. The information is provided and maintained by Prime Residential, York. Please contact the selling agent or developer directly to obtain any information which may be available under the terms of The Energy Performance of Buildings (Certificates and Inspections) (England and Wales) Regulations 2007 or the Home Report if in relation to a residential property in Scotland.
*This is the average speed from the provider with the fastest broadband package available at this postcode. The average speed displayed is based on the download speeds of at least 50% of customers at peak time (8pm to 10pm). Fibre/cable services at the postcode are subject to availability and may differ between properties within a postcode. Speeds can be affected by a range of technical and environmental factors. The speed at the property may be lower than that listed above. You can check the estimated speed and confirm availability to a property prior to purchasing on the broadband provider's website. Providers may increase charges. The information is provided and maintained by Decision Technologies Limited. **This is indicative only and based on a 2-person household with multiple devices and simultaneous usage. Broadband performance is affected by multiple factors including number of occupants and devices, simultaneous usage, router range etc. For more information speak to your broadband provider.
Map data ©OpenStreetMap contributors.




