
Whinney Lane, Lund House Green, Harrogate, North Yorkshire, HG3

- PROPERTY TYPE
Barn Conversion
- BEDROOMS
3
- BATHROOMS
3
- SIZE
1,677 sq ft
156 sq m
- TENUREDescribes how you own a property. There are different types of tenure - freehold, leasehold, and commonhold.Read more about tenure in our glossary page.
Freehold
Key features
- Stunning three bedroom barn conversion
- Prime south side setting
- Luxury specification throughout
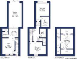
- Flexible layout - over 1670 sqft
- Innovative design features
- Delightful rear aspects
Description
A stunning three bedroom barn conversion revealing over 1670 sqft of contemporary accommodation with striking design features and far reaching aspects across southerly facing gardens.
An exciting opportunity in a prime South Side location.
Innovative conversion of former barns to create three bespoke characterful homes along with two architecturally designed new builds combining a unique attention to aesthetics with a focus on family living and energy efficiency.
RESTORE’s extensive experience in restoring and designing aspirational homes makes them ideal to breathe life back into these neglected barns and sympathetically build new alongside them.
Residing in a picturesque farmyard setting, this unique collection of five properties, including three historic barn conversions and two architecturally designed new builds, will provide characterful living coupled with access to great local amenities and schools.
RESTORE’S Castle Hill Farm development delivers a rare opportunity to own a bespoke home in the sought after south side of Harrogate. Imagine views over open fields and hills whilst benefiting from the convenience of a premium suburban location and easy access to some of the best schools in the country. Castle Hill Farm, Harrogate, provides exactly that.
The area and the stunning original character of the barns provide the perfect opportunity for RESTORE to deliver the high level of specification and interior design, replicating the success of previous projects.
GENERAL SPECIFICATION
Structure
- ICW 10-year ICW structural building warranty
- Timber framed construction for maximum energy efficiency in new builds
- A-rated double-glazed windows from the Residence Collection
- Original or reclaimed stone walls
- Natural slate roofing tiles
- XP88 flush finish slimline bi-folding doors
- Multi-point locking composite front doors
Heating
- Mitsubishi air source heat pumps, to new builds, A-rated gas central heating to barn conversions
- Wireless heating controls
- Piped underfloor heating to ground floor
- White column radiators to upper floors
Electrical
- Bespoke lighting throughout
- Downlights to kitchen area workspace
- White soft edge sockets and switches throughout
- Dedicated electric vehicle charging point to each proper
Kitchens
- Award winning interior design
- Bespoke kitchen cabinets to maximise space efficiency
- Handmade, shaker style cabinet doors and panels
- Caesarstone worktops
- Ceramic under-mount sinks
- Premium glazed porcelain tiled splash-backs
- Single lever brushed nickel mixer tap
- Integrated appliances included
Bathrooms
- Award winning interior design
- Brushed nickel brassware
- Natural stone floors
- Stone counters
- Counter-top basins over bespoke vanity units
- Wall mounted toilets with dual flush, concealed cisterns and soft-close seats
- Full height tiling to shower areas
- Classic wooden panelling to other areas
- Cast-iron style towel rail column radiators
Interiors and finishes
- Award winning interior design
- Oak panelled internal doors
- Satin nickel internal door handles
- Contemporary colour scheme to walls and woodwork
Local Authority & Council Tax Band
• North Yorkshire Council,
• Council Tax Band To Be Confirmed
Tenure, Services & Parking
• Freehold
• All mains services installed
• Allocated residents parking
Internet & Mobile Coverage
For information on Internet and Mobile coverage access the Ofcom website from this link
Flooding
For information on flood risks please use this link Check for flooding in England - GOV.UK
Agent’s Notes
If any issue such as location, communications or condition of the property are of material importance to your decision to view then please discuss these priorities with us before making arrangements to view.
Buyer Anti Money Laundering Checks
We are required by HMRC to undertake Anti Money Laundering checks for all buyers to the contract. These checks are carried out through iamproperty who will make a charge of £26.10 inclusive of VAT per buyer. We will also need to see proof of funding. We cannot mark a property Sold Subject to Contract until the checks have been satisfactorily completed.
Referral Fees
Where we refer a seller/s or a purchaser/s to any of the following providers (and you are welcome to use an alternative), we reserve the right to claim a reasonable commission in respect of such services which will be charged to the third party provider:- Conveyancing Provider to deal with the transfer of title and Surveyor Services. In either instance the fee/commission will not exceed £450 per case. In respect of referrals to Mortgage Advice Bureau the average fee will be approximately £450 but may vary and is case specific. Any such commission does not affect our prices to you but may result in the third party provider’s prices being higher than it may otherwise be.
Proceeding out of Harrogate on Otley Road, turning left onto Pannal Ash Road. At the roundabout take the third exit on to Whinney Lane where the development will be identified by our For Sale board, on the left hand side.
Brochures
Particulars- COUNCIL TAXA payment made to your local authority in order to pay for local services like schools, libraries, and refuse collection. The amount you pay depends on the value of the property.Read more about council Tax in our glossary page.
- Band: TBC
- PARKINGDetails of how and where vehicles can be parked, and any associated costs.Read more about parking in our glossary page.
- Gated,EV charging,Residents
- GARDENA property has access to an outdoor space, which could be private or shared.
- Yes
- ACCESSIBILITYHow a property has been adapted to meet the needs of vulnerable or disabled individuals.Read more about accessibility in our glossary page.
- Ask agent
Energy performance certificate - ask agent
Whinney Lane, Lund House Green, Harrogate, North Yorkshire, HG3
Add an important place to see how long it'd take to get there from our property listings.
__mins driving to your place
Get an instant, personalised result:
- Show sellers you’re serious
- Secure viewings faster with agents
- No impact on your credit score
Your mortgage
Notes
Staying secure when looking for property
Ensure you're up to date with our latest advice on how to avoid fraud or scams when looking for property online.
Visit our security centre to find out moreDisclaimer - Property reference HAR220125. The information displayed about this property comprises a property advertisement. Rightmove.co.uk makes no warranty as to the accuracy or completeness of the advertisement or any linked or associated information, and Rightmove has no control over the content. This property advertisement does not constitute property particulars. The information is provided and maintained by Dacre Son & Hartley, Harrogate. Please contact the selling agent or developer directly to obtain any information which may be available under the terms of The Energy Performance of Buildings (Certificates and Inspections) (England and Wales) Regulations 2007 or the Home Report if in relation to a residential property in Scotland.
*This is the average speed from the provider with the fastest broadband package available at this postcode. The average speed displayed is based on the download speeds of at least 50% of customers at peak time (8pm to 10pm). Fibre/cable services at the postcode are subject to availability and may differ between properties within a postcode. Speeds can be affected by a range of technical and environmental factors. The speed at the property may be lower than that listed above. You can check the estimated speed and confirm availability to a property prior to purchasing on the broadband provider's website. Providers may increase charges. The information is provided and maintained by Decision Technologies Limited. **This is indicative only and based on a 2-person household with multiple devices and simultaneous usage. Broadband performance is affected by multiple factors including number of occupants and devices, simultaneous usage, router range etc. For more information speak to your broadband provider.
Map data ©OpenStreetMap contributors.






