
Manor Way, Heamoor, TR18 3HN

- PROPERTY TYPE
Terraced
- BEDROOMS
3
- BATHROOMS
1
- SIZE
Ask agent
- TENUREDescribes how you own a property. There are different types of tenure - freehold, leasehold, and commonhold.Read more about tenure in our glossary page.
Freehold
Key features
- THREE BEDROOMS
- FIRST FLOOR BATHROOM
- LOUNGE
- KITCHEN/DINING ROOM
- FRONT AND REAR GARDENS
- POPULAR LOCATION
- NO ONWARD CHAIN
- ON STREET PARKING
- EPC = E * COUNCIL TAX BAND = C
- APPROXIMATELY 81 SQUARE METRES
Description
Property additional info
Double glazed door with side panel into:
PORCH:
Tiled floor, further glazed door into:
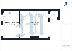
LOUNGE: 16' 9" x 15' 9" (5.11m x 4.80m)
Stairs rising with cupboard under, double glazed window to front, electric fire to one wall, TV point, doors lead into:
KITCHEN/DINING ROOM: 16' 0" x 9' 6" (4.88m x 2.90m)
Two double glazed windows and door to rear, tiled floor, night storage heater, base and wall units with worksurfaces and tiling over, single drainer stainless steel sink unit, plumbing for washing machine.
FIRST FLOOR LANDING:
Access to loft, night storage heater, cupboard housing hot water tank.
BEDROOM ONE: 13' 0" x 9' 2" (3.96m x 2.79m)
Double glazed window to front, built in wardrobes and cupboard.
BEDROOM TWO: 9' 6" x 7' 7" (2.90m x 2.31m)
Double glazed window to rear, built in wardrobes
BEDROOM THREE: 10' 2" x 6' 3" (3.10m x 1.91m)
Double glazed window to front, over stairs storage cupboard, bath, double glazed window to rear, pedestal wash hand basin, WC, panelled bath, fully tiled shower cubicle.
BATHROOM:
UPVC double glazed window to rear, WC, pedestal wash hand basin, panelled bath, fully tiled mains shower cubicle and partial wall tiling.
OUTSIDE:
To the front there is a lawned garden enclosed by low level block built wall. To the rear is a fully enclosed garden laid to patio with steps leading to lawn, bordered by shrubs and plants, outside tap, pedestrian access to rear lane.
SERVICES:
Mains water, electricity, gas and drainage.
DIRECTIONS:
Via "What3Words" app: ///tribe.unwanted.fears
AGENTS NOTE:
We understand from Openreach website that Full Fibre Broadband (FTTP) is available to the property. We tested the mobile signal for O2 which was good. The property is constructed of block under a concrete tiled roof.
Roof type: Concrete roof tiles.
Mobile signal/coverage: Good.
Construction materials used: Brick and block.
Water source: Direct mains water.
Electricity source: National Grid.
Sewerage arrangements: Standard UK domestic.
Heating Supply: Central heating (gas).
Broadband internet type: FTTP (fibre to the premises).
Parking Availability: Yes.
Brochures
Brochure 1- COUNCIL TAXA payment made to your local authority in order to pay for local services like schools, libraries, and refuse collection. The amount you pay depends on the value of the property.Read more about council Tax in our glossary page.
- Band: C
- PARKINGDetails of how and where vehicles can be parked, and any associated costs.Read more about parking in our glossary page.
- Ask agent
- GARDENA property has access to an outdoor space, which could be private or shared.
- Yes
- ACCESSIBILITYHow a property has been adapted to meet the needs of vulnerable or disabled individuals.Read more about accessibility in our glossary page.
- Ask agent
Manor Way, Heamoor, TR18 3HN
Add an important place to see how long it'd take to get there from our property listings.
__mins driving to your place
Get an instant, personalised result:
- Show sellers you’re serious
- Secure viewings faster with agents
- No impact on your credit score
Your mortgage
Notes
Staying secure when looking for property
Ensure you're up to date with our latest advice on how to avoid fraud or scams when looking for property online.
Visit our security centre to find out moreDisclaimer - Property reference M44. The information displayed about this property comprises a property advertisement. Rightmove.co.uk makes no warranty as to the accuracy or completeness of the advertisement or any linked or associated information, and Rightmove has no control over the content. This property advertisement does not constitute property particulars. The information is provided and maintained by Marshalls Estate Agents, Penzance. Please contact the selling agent or developer directly to obtain any information which may be available under the terms of The Energy Performance of Buildings (Certificates and Inspections) (England and Wales) Regulations 2007 or the Home Report if in relation to a residential property in Scotland.
*This is the average speed from the provider with the fastest broadband package available at this postcode. The average speed displayed is based on the download speeds of at least 50% of customers at peak time (8pm to 10pm). Fibre/cable services at the postcode are subject to availability and may differ between properties within a postcode. Speeds can be affected by a range of technical and environmental factors. The speed at the property may be lower than that listed above. You can check the estimated speed and confirm availability to a property prior to purchasing on the broadband provider's website. Providers may increase charges. The information is provided and maintained by Decision Technologies Limited. **This is indicative only and based on a 2-person household with multiple devices and simultaneous usage. Broadband performance is affected by multiple factors including number of occupants and devices, simultaneous usage, router range etc. For more information speak to your broadband provider.
Map data ©OpenStreetMap contributors.









