
Lower Park Road, Braunton

- PROPERTY TYPE
Detached
- BEDROOMS
3
- BATHROOMS
3
- SIZE
1,235 sq ft
115 sq m
- TENUREDescribes how you own a property. There are different types of tenure - freehold, leasehold, and commonhold.Read more about tenure in our glossary page.
Freehold
Key features
- The choice of 3 New Detached Houses
- Completion anticipated Autumn 2025
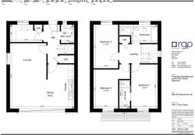
- Each comprises; Hall, Cloak/Wet room
- Kitchen/Dining Room with appliances
- Lounge, Utility Room, Gas C.H.
- 3 Bedrooms [1 En Suite] & Bath/shower room
- Detached garages & parking
- Manageable gardens. 10 year guarantee
- Council Tax Band & EPC TBC. Freehold
Description
Situation & Amenities - On the semi-rural outskirts of the village, fronting a sought-after residential road, backing onto a large scenic, fenced-off pond (in separate ownership) and with views from the first floor over Braunton village towards the estuary and coast. At the same time, the property is within a healthy walking distance of Braunton village, which offers a good range of shopping facilities and amenities, providing for day-to-day needs, as well as a Tesco supermarket and both primary and secondary schools. The village is also ideally placed for easy access to the sandy surfing beaches at Croyde, Putsborough, Saunton (also a Championship Golf Course) and Woolacombe, which are approximately 5 miles to the West. Barnstaple the regional centre of North Devon is approximately 6 miles to the South East and houses the area’s main business, commercial, leisure and shopping venues. The town is also well known for its exclusive range of outlets, including all of the high street favourites, as well as a diverse selection of local stores. Other notable facilities include the Pannier Market, live theatre and North Devon District Hospital on the periphery of the town. Fishing and boating can be enjoyed on the Rivers Taw and Torridge. Exmoor is within easy reach to the North East and there is access at Barnstaple to the North Devon Link Road, which leads through to Jct.27 of the M5, whilst Barnstaple Railway Station provides a link to the national railway system, as well as to Exeter. London Paddington can be reached via Tiverton Parkway in just over 2 hours. There are a number of well-regarded private schools in the area, including Kingsley at Bideford, West Buckland and Blundell’s at Tiverton. The nearest international airports are at Bristol and Exeter.
Description - Introducing a brand-new development of just three exclusive detached eco homes, set in a desirable semi-rural location with south facing outlook. These stunning properties are thoughtfully designed to combine contemporary style with sustainable living. Each property offers a spacious, light-filled layout finished to an exceptional standard, creating a truly modern and luxurious home.
Built with energy efficiency and sustainability at their core, each home features striking elevations of stone and render beneath a traditional slate roof. Inside, the layouts are light filled and versatile, designed to suit both busy family life and relaxed entertaining.
The ground floor is centred around a spacious open-plan kitchen, dining, and lounge area – a truly versatile space for entertaining or relaxing with family. The sleek kitchen is fitted with high-specification appliances and finished with large-format tiled flooring and underfloor heating throughout. Expansive sliding doors open directly onto a raised sun deck, creating a seamless flow to the garden and providing the perfect setting for al fresco dining and enjoying the garden views. A practical utility room and a stylish wet room/WC complete the ground floor.
Upstairs, the first floor offers a bright landing and airing cupboard, a luxurious master bedroom with its own en-suite shower room, plus two further double bedrooms served by a beautifully appointed family bathroom.
•Semi-rural setting with excellent access to local amenities
•Built using ICF (Insulated Concrete Form) for excellent energy efficiency.
•Solar Panels and EV chargers.
•10-Year Build Zone warranty for peace of mind
•Spacious open plan kitchen/dining/living space with NEFF high-spec appliances
•Large-format tiled flooring with underfloor heating throughout the ground floor
•Elegant bathrooms finished to a high standard
•Large single garages with power and water (6m x 2.7m)
•Landscaped, turfed gardens
•Generous parking area with ample space for multiple vehicles or even a motor home
•Direct access to scenic countryside walks right from the doorstep – ideal for dog owners and outdoor lovers
Services - Mains electricity, gas and water. Individual private drainage systems. Individual waste treatment plant. Heating gas-fired with underfloor heating to the ground floor.
Viewings - Strictly by appointment only please through the agents Stags – or .
Agent’S Note - Some images in this brochure are computer generated. The landscaping and other aspects may differ.
Directions - W3W//////remotest.qualify.agents
On leaving the traffic lights at the centre of the village of Braunton, proceed in the direction of Barnstaple and then turn immediately left into Heanton Street. At the end of Heanton Street bear left at the minor roundabout, and bear right onto Lower Park Road. Continue for approximately ½ mile, where the entrance to the site will be found on the right, just before reaching open countryside. Alternatively, leaving Barnstaple through Pilton and Bradiford, climb the hill towards Prixford and bear first left signed ‘Ashford & Heanton’. Follow this lane through open countryside to Braunton, and the development is on the left-hand side as you leave open countryside.
Special Note - Please be aware that some images have been generated using AI to show how a typical room may be furnished.
Brochures
Lower Park Road, Braunton- COUNCIL TAXA payment made to your local authority in order to pay for local services like schools, libraries, and refuse collection. The amount you pay depends on the value of the property.Read more about council Tax in our glossary page.
- Band: TBC
- PARKINGDetails of how and where vehicles can be parked, and any associated costs.Read more about parking in our glossary page.
- Yes
- GARDENA property has access to an outdoor space, which could be private or shared.
- Yes
- ACCESSIBILITYHow a property has been adapted to meet the needs of vulnerable or disabled individuals.Read more about accessibility in our glossary page.
- Ask agent
Energy performance certificate - ask agent
Lower Park Road, Braunton
Add an important place to see how long it'd take to get there from our property listings.
__mins driving to your place
Get an instant, personalised result:
- Show sellers you’re serious
- Secure viewings faster with agents
- No impact on your credit score
Your mortgage
Notes
Staying secure when looking for property
Ensure you're up to date with our latest advice on how to avoid fraud or scams when looking for property online.
Visit our security centre to find out moreDisclaimer - Property reference 34204340. The information displayed about this property comprises a property advertisement. Rightmove.co.uk makes no warranty as to the accuracy or completeness of the advertisement or any linked or associated information, and Rightmove has no control over the content. This property advertisement does not constitute property particulars. The information is provided and maintained by Stags, Barnstaple. Please contact the selling agent or developer directly to obtain any information which may be available under the terms of The Energy Performance of Buildings (Certificates and Inspections) (England and Wales) Regulations 2007 or the Home Report if in relation to a residential property in Scotland.
*This is the average speed from the provider with the fastest broadband package available at this postcode. The average speed displayed is based on the download speeds of at least 50% of customers at peak time (8pm to 10pm). Fibre/cable services at the postcode are subject to availability and may differ between properties within a postcode. Speeds can be affected by a range of technical and environmental factors. The speed at the property may be lower than that listed above. You can check the estimated speed and confirm availability to a property prior to purchasing on the broadband provider's website. Providers may increase charges. The information is provided and maintained by Decision Technologies Limited. **This is indicative only and based on a 2-person household with multiple devices and simultaneous usage. Broadband performance is affected by multiple factors including number of occupants and devices, simultaneous usage, router range etc. For more information speak to your broadband provider.
Map data ©OpenStreetMap contributors.









