
5 bedroom detached house for sale
Old Reigate Road, Betchworth, Surrey, RH3

- PROPERTY TYPE
Detached
- BEDROOMS
5
- BATHROOMS
4
- SIZE
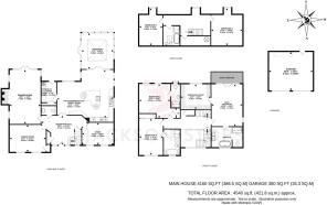
4,160 sq ft
386 sq m
- TENUREDescribes how you own a property. There are different types of tenure - freehold, leasehold, and commonhold.Read more about tenure in our glossary page.
Freehold
Key features
- DRAWING ROOM
- DINING ROOM
- KITCHEN/BREAKFAST/FAMILY ROOM
- ORANGERY
- PRINCIPAL BEDROOM DRESSING ROOM EN-SUITE
- TWO BEDROOMS WITH EN-SUITES
- TWO FURTHER BEDROOMS AND FAMILY BATHROOM
- ESTABLISHED GARDENS AND SUN TERRACE
- DOUBLE DETACHED GARAGE
- GROUNDS EXTEND TO 0.54 OF AN ACRE
Description
Langham House is a substantial and most attractive detached executive home, constructed by Millwood Homes in 2016, fully designed with evident attention to detail and high specification throughout – creating a stylish and beautifully appointed property, in a highly desirable location in the heart of Betchworth village. Langham House boasts some 4500 SQ FT (including garaging) of well-proportioned and balanced accommodation, ideally suited to modern family lifestyles, offering a fabulous combination of open plan living, together with separate self-contained spaces with the opportunity to work from home, if required. The property has a welcoming feel with a spacious reception hall providing access to the cloakroom, study, dining room, plus the formal drawing room enjoying a double aspect with patio doors to the garden and an impressive open fireplace. The current owners have been responsible for re-fitting the kitchen/breakfast/family room to a magnificent standard and it is very much the ‘heart of the home’, featuring a large kitchen island and high-quality kitchen furniture with integrated Miele ovens, a microwave and heated drawer, plus a Sub Zero large fridge and wine fridge, all of which complemented by Corian worksurfaces. Our clients have also recently built an orangery, which makes for a delightful seating area overlooking the grounds. On the first floor there is a luxurious principal suite with an excellent sized dressing room and en-suite bathroom, plus a balcony with space for a small table and chairs. There are two further bedrooms suites, with built-in wardrobes, whilst on the second floor there are two further bedrooms and a family bathroom and this floor presents great versatility potentially ideal for guests visiting, home officing or a dedicated area for older children.
Langham House is approached via electronically operated gates leading to a large shingle parking area for several vehicles, together with a detached double garage with EV charging point. As you approach the front door there is a beautifully planted front garden and to the rear of the property the south-facing gardens have been superbly landscaped with a variety of plants, shrubs and specimen trees. There is substantial sun terrace running the majority of the rear of the property with raised brick-built flowerbeds and cleverly incorporates access to the sitting room, utility room and orangery. In all, the grounds extend to approximately 0.54 of an acre.
Brochures
Particulars- COUNCIL TAXA payment made to your local authority in order to pay for local services like schools, libraries, and refuse collection. The amount you pay depends on the value of the property.Read more about council Tax in our glossary page.
- Band: H
- PARKINGDetails of how and where vehicles can be parked, and any associated costs.Read more about parking in our glossary page.
- Garage,Driveway,Off street,Gated,Private
- GARDENA property has access to an outdoor space, which could be private or shared.
- Yes
- ACCESSIBILITYHow a property has been adapted to meet the needs of vulnerable or disabled individuals.Read more about accessibility in our glossary page.
- Ask agent
Old Reigate Road, Betchworth, Surrey, RH3
Add an important place to see how long it'd take to get there from our property listings.
__mins driving to your place
Get an instant, personalised result:
- Show sellers you’re serious
- Secure viewings faster with agents
- No impact on your credit score
Your mortgage
Notes
Staying secure when looking for property
Ensure you're up to date with our latest advice on how to avoid fraud or scams when looking for property online.
Visit our security centre to find out moreDisclaimer - Property reference DOK240089. The information displayed about this property comprises a property advertisement. Rightmove.co.uk makes no warranty as to the accuracy or completeness of the advertisement or any linked or associated information, and Rightmove has no control over the content. This property advertisement does not constitute property particulars. The information is provided and maintained by Jackson-Stops, Dorking. Please contact the selling agent or developer directly to obtain any information which may be available under the terms of The Energy Performance of Buildings (Certificates and Inspections) (England and Wales) Regulations 2007 or the Home Report if in relation to a residential property in Scotland.
*This is the average speed from the provider with the fastest broadband package available at this postcode. The average speed displayed is based on the download speeds of at least 50% of customers at peak time (8pm to 10pm). Fibre/cable services at the postcode are subject to availability and may differ between properties within a postcode. Speeds can be affected by a range of technical and environmental factors. The speed at the property may be lower than that listed above. You can check the estimated speed and confirm availability to a property prior to purchasing on the broadband provider's website. Providers may increase charges. The information is provided and maintained by Decision Technologies Limited. **This is indicative only and based on a 2-person household with multiple devices and simultaneous usage. Broadband performance is affected by multiple factors including number of occupants and devices, simultaneous usage, router range etc. For more information speak to your broadband provider.
Map data ©OpenStreetMap contributors.








