
Boxhill Road, Tadworth, Surrey, KT20
- PROPERTY TYPE
Land
- BEDROOMS
4
- BATHROOMS
3
- SIZE
1,945 sq ft
181 sq m
Key features
- PLANNING CONSENT REF: MO/2025/0407 GRANTED FOR A NEW DETACHED PROPERTY COMPRISING:
- KITCHEN/DINING ROOM
- LIVING ROOM AND STUDY
- MAIN BEDROOM WITH EN-SUITE SHOWER ROOM
- GUEST BEDROOM WITH EN-SUITE SHOWER ROOM
- TWO FURTHER BEDROOMS
- FAMILY BATHROOM
- ESTABLISHED SECLUDED PLOT
- DRIVEWAY AND DOUBLE DETACHED CAR BARN
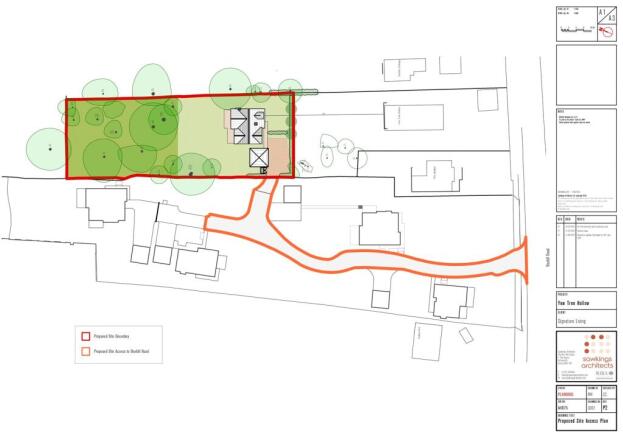
- IN ALL, THE PLOT EXTENDS TO 0.4 OF AN ACRE
Description
An excellent and rare opportunity to acquire a plot of land with the benefit of planning consent to replace with a new detached executive-style property. The planning permission was granted recently on 12th September 2025 – Ref No. MO/2025/0407. The planning advises “Erection of 1 No. dwelling with detached car port, bin/refuse store and associated landscaping.” Please study the planning consent and the associated documents via Mole Valley District Council’s online planning portal for full details, including the planning conditions.
Planning consent has been granted for an attractive detached two storey dwelling of a total gross internal size 1945 SQ FT plus an adjacent two-bay car barn set in an established secluded ground. The plot itself, which would benefit from careful and sympathetic landscaping in harmony with its surroundings, extends in all to about 0.4 of an acre. This is an exciting opportunity for the eventual purchaser to acquire a development plot in an unspoilt secluded rural location in the green belt area and within an Area of Outstanding Natural Beauty – opportunities like these are rare events. Please call Jackson-Stops – Dorking for more information.
Box Hill is an historic and local landmark in Surrey, managed by The National Trust, providing miles of unspoilt countryside and ancient woodland, with many walks and footpaths, and forming part of the North Downs. The view point is well known and gives the most wonderful vista across Dorking and beyond, with a National Trust run café and seating area nearby. The nearby town of Dorking offers a range of local and national restaurants, cafes, shops and supermarkets along with The Dorking Halls for cinema, theatre, and other live shows. The leisure centre provides for all one’s sporting needs; there is also a 24-hour gym within the town centre. Dorking has two train stations running east to west and north to south. The mainline station has services to London and the south coast, Dorking Deepdene provides services to Redhill and Gatwick to the east, Guildford and Reading to the west. The national motorway network is easily accessible with junction 9 of the M25 accessed from Leatherhead, the A217 is a short drive to the north east with the A24 running along the foot of Box Hill. Schools are well catered for with a choice of both private and state schools in the immediate area, Box Hill, Chinthurst, The Ashcombe, Downsend and St Andrews to name but a few. The location also sits between two high quality golf clubs; Walton Heath Golf Club and The Beaverbrook Golf Club.
Boxhill Road, Tadworth, Surrey, KT20
NEAREST STATIONS
Distances are straight line measurements from the centre of the postcode- Betchworth Station0.7 miles
- Dorking Station2.0 miles
- Boxhill & Westhumble Station2.0 miles
Notes
Disclaimer - Property reference DOK250226. The information displayed about this property comprises a property advertisement. Rightmove.co.uk makes no warranty as to the accuracy or completeness of the advertisement or any linked or associated information, and Rightmove has no control over the content. This property advertisement does not constitute property particulars. The information is provided and maintained by Jackson-Stops, Dorking. Please contact the selling agent or developer directly to obtain any information which may be available under the terms of The Energy Performance of Buildings (Certificates and Inspections) (England and Wales) Regulations 2007 or the Home Report if in relation to a residential property in Scotland.
Map data ©OpenStreetMap contributors.









