
Church Street, Northborough, Peterborough

- PROPERTY TYPE
Detached
- BEDROOMS
3
- BATHROOMS
2
- SIZE
Ask agent
- TENUREDescribes how you own a property. There are different types of tenure - freehold, leasehold, and commonhold.Read more about tenure in our glossary page.
Freehold
Key features
- Grade II Listed Stone Cottage
- Converted Barn to Workshop & Hobby Rooms
- Versatile Accommodation
- Cottage - 2/3 Double Bedrooms - 3/4 Reception Rooms
- Bespoke Kitchen Breakfast Room
- Popular Village Location
- Mature Gardens
- Ample Off Road Parking & Single Garage
- Please refer to attached Key Facts for Buyers for Material Information Disclosures
Description
This charming Grade II listed stone cottage, together with its beautifully converted barn, is situated in the heart of the ever-popular village of Northborough, just eight miles north of Peterborough city centre and its mainline railway station.
The delightful three-bedroom cottage has been sympathetically converted, updated, and modernised over the years, while carefully retaining many of its original character features. Unusually light and airy for a property of this period, it provides flexible and well-proportioned accommodation suited to a wide range of buyers.
The adjacent converted barn presents an excellent opportunity for those working from home, accommodating extended family, or generating additional income through Airbnb or a long-term rental (subject to the necessary consents).
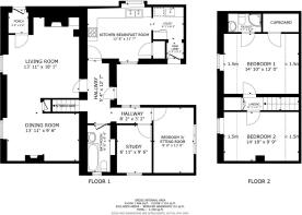
Briefly the accommodation comprises; Cottage - Ground Floor - Entrance Porch, Living Room, Dining Room, Hallway, Family Bathroom, Study, Bedroom 3/Sitting Room, Kitchen Breakfast Room, Utility, and Rear lobby. First Floor - Landing, 2 Double Bedrooms, Bedroom 1 with En-Suite Shower Room and good sized Cupboard. The Barn - The barn currently has planning permission to be used as a workshop and hobby rooms - for residential use, the property would need to obtain planning permission to convert usage. Current layout of Barn - Ground Floor - Hallway, Shower Room, Utility, Workshop and Single Garage. First Floor - 29' Hobby Room, and Sewing Room.
Outside - To the front the property there is a good sized lawned area and a driveway that provides off road parking for several vehicles which in turn leads to the Single Garage. To the rear is a private rear garden and patio area, mature planting and an outside store.
Internal Viewing Is Highly Recommended To Fully Appreciate The Accommodation On Offer
Agents Note:
Local Authority – Peterborough City Council
Council Tax Band – D
EPC Rating - Exempt
Cottage -
Porch - 1.22m x 1.42m (4'0" x 4'8") -
Living Room - 4.24m x 5.51m (13'11" x 18'1") -
Dining Room - 4.24m x 2.90m (13'11" x 9'6") -
Hallway - 1.63m x 3.84m (5'4" x 12'7") -
Kitchen Breakfast Room - 3.86m x 3.53m (12'8" x 11'7") -
Utility - 1.85m x 1.96m (6'1" x 6'5") -
Rear Lobby - 1.02m x 0.97m (3'4" x 3'2") -
Bathroom - 1.37m x 2.84m (4'6" x 9'4") -
Hallway - 2.49m x 0.97m (8'2" x 3'2") -
Study - 2.11m x 2.90m (6'11" x 9'6") -
Bedroom 3/Sitting Room - 2.44m x 3.96m (8'0" x 13'0") -
Landing -
Bedroom 1 - 4.52m x 3.66m (14'10" x 12'0") -
En -Suite - 2.01m x 1.12m (6'7" x 3'8") -
Bedroom 2 - 4.52m x 2.97m (14'10" x 9'9") -
The Barn -
Entrance Hall - 2.11m x 4.09m (6'11" x 13'5") -
Shower Room - 1.73m x 1.07m (5'8" x 3'6") -
Utility - 1.73m x 2.54m (5'8" x 8'4") -
Workshop - 5.18m x 4.09m (17'0" x 13'5") -
Single Garage -
First Floor -
Hobby Rooms - 9.02m x 3.63m (29'7" x 11'11") -
Sewing Room - 2.90m x 5.26m (9'6" x 17'3") -
Sizes and dimensions are calculated using a laser measuring modelling device and as such whilst representative it must be noted that they are all approximate, actual sizes may vary.
Brochures
Church Street, Northborough, PeterboroughMaterial Information Disclosures (KFB)Brochure- COUNCIL TAXA payment made to your local authority in order to pay for local services like schools, libraries, and refuse collection. The amount you pay depends on the value of the property.Read more about council Tax in our glossary page.
- Band: D
- LISTED PROPERTYA property designated as being of architectural or historical interest, with additional obligations imposed upon the owner.Read more about listed properties in our glossary page.
- Listed
- PARKINGDetails of how and where vehicles can be parked, and any associated costs.Read more about parking in our glossary page.
- Garage
- GARDENA property has access to an outdoor space, which could be private or shared.
- Yes
- ACCESSIBILITYHow a property has been adapted to meet the needs of vulnerable or disabled individuals.Read more about accessibility in our glossary page.
- Ask agent
Energy performance certificate - ask agent
Church Street, Northborough, Peterborough
Add an important place to see how long it'd take to get there from our property listings.
__mins driving to your place
Get an instant, personalised result:
- Show sellers you’re serious
- Secure viewings faster with agents
- No impact on your credit score



Your mortgage
Notes
Staying secure when looking for property
Ensure you're up to date with our latest advice on how to avoid fraud or scams when looking for property online.
Visit our security centre to find out moreDisclaimer - Property reference 34224531. The information displayed about this property comprises a property advertisement. Rightmove.co.uk makes no warranty as to the accuracy or completeness of the advertisement or any linked or associated information, and Rightmove has no control over the content. This property advertisement does not constitute property particulars. The information is provided and maintained by Goodwin Property Services, Stamford. Please contact the selling agent or developer directly to obtain any information which may be available under the terms of The Energy Performance of Buildings (Certificates and Inspections) (England and Wales) Regulations 2007 or the Home Report if in relation to a residential property in Scotland.
*This is the average speed from the provider with the fastest broadband package available at this postcode. The average speed displayed is based on the download speeds of at least 50% of customers at peak time (8pm to 10pm). Fibre/cable services at the postcode are subject to availability and may differ between properties within a postcode. Speeds can be affected by a range of technical and environmental factors. The speed at the property may be lower than that listed above. You can check the estimated speed and confirm availability to a property prior to purchasing on the broadband provider's website. Providers may increase charges. The information is provided and maintained by Decision Technologies Limited. **This is indicative only and based on a 2-person household with multiple devices and simultaneous usage. Broadband performance is affected by multiple factors including number of occupants and devices, simultaneous usage, router range etc. For more information speak to your broadband provider.
Map data ©OpenStreetMap contributors.






