Old Portsmouth, Hampshire

- PROPERTY TYPE
Town House
- BEDROOMS
4
- BATHROOMS
3
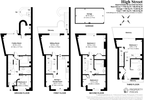
- SIZE
1,941 sq ft
180 sq m
- TENUREDescribes how you own a property. There are different types of tenure - freehold, leasehold, and commonhold.Read more about tenure in our glossary page.
Freehold
Key features
- A Modern Town House
- Four Bedrooms, En-Suite Bathroom & Family Bathroom
- 20' Kitchen / Dining Room & Garden Room
- 1941 Sq Ft of Versatile Living Space
- Two Roof Terraces & South Easterly Facing Rear Garden
- Garage & Off Road Parking
- Close to Amenities, Schools & Motorway Links
- Viewing Highly Recommended
- Council Tax Band F Portsmouth City Council
Description
ENTRANCE Steps leading up to covered porch, entry phone system, main front door with glazed panels leading to:
HALLWAY Tall built-in meter cupboard housing electric consumer box, coir matted area, wood laminate flooring, staircase rising to first floor, steps leading down to ground floor rear mezzanine.
BEDROOM 4 / STUDY 8' 8" x 8' 6" (2.64m x 2.59m) Double glazed window to front aspect, range of louvre doored built-in storage cupboards with surface over/sleeping area, radiator, glazed panelling to hallway, recess with range of shelving.
CLOAKROOM Concealed cistern w.c. with shelf over, wash hand basin with mixer tap and cupboards under, radiator, ceramic tiled flooring, ceiling spotlights.
GROUND FLOOR MEZZANINE TO REAR Large walk-in cloaks cupboard with rail and shelf.
UTILITY ROOM 6' 8" x 6' 4" (2.03m x 1.93m) Range of floor units with roll top work surface, inset single drainer stainless steel sink unit with mixer tap, tiled surrounds, washing machine point, ceramic tiled flooring, extractor fan, fluorescent tube lighting, radiator.
GARDEN / FAMILY ROOM 16' 10" x 12' 3" (5.13m x 3.73m) Wood laminate flooring, radiator, ceiling spotlights, double glazed door with full height window to one side leading to rear garden, door to:
SHOWER / WET ROOM Window to rear aspect, wall mounted boiler supplying domestic hot water and central heating (not tested), radiator, tiled flooring and skirting boards, step-in shower area with curved wall, drench style hood, extractor fan, tiled surrounds, tiled flooring with drain away.
FIRST FLOOR Landing with recess and shelving, entry phone system, mezzanine to rear with stairs leading up to primary landing, door to:
SITTING ROOM 16' 10" maximum, decreasing to 15'2" at narrowest point x 12' 2" (5.13m x 3.71m) Angled to on wall, stripped and varnished floorboards, two radiators, borrowed light window to kitchen, full height double glazed windows to rear aspect with door to one side leading onto roof top terrace overlooking garden.
FIRST FLOOR Primary landing, glazed panelled window providing borrowed light, staircase rising to upper floors, door to:
KITCHEN/DINING ROOM 13' 11" decreasing to 6'9" x 20' 3" decreasing to 9'0" (4.24m x 6.17m) L shaped.
Dining area: Window to front aspect, further window to front aspect with radiator under, wood laminate flooring.
Kitchen: Range of wall and floor units with wood block work surface, inset 1½ bowl stainless steel sink unit with mixer tap and cupboards under, brushed steel T bar handles, ceramic tiled surrounds, inset electric hob with oven under, extractor hood, fan and light over, small borrowed light window to rear overlooking sitting room.
SECOND FLOOR Mezzanine landing to rear, recess with range of built-in shelving, radiator, stairs leading to primary landing with further staircase rising to top floor.
BEDROOM 2 16' 10" decreasing to 15'0" x 12' 4" (5.13m x 3.76m) Slight angle to one wall, double glazed window to rear aspect overlooking garden with radiator under, stripped and stained floorboards, raised built-in wardrobe with hanging rail, built-in shelving to either side of bed.
THIRD FLOOR Landing with staircase rising to top floor.
BATHROOM White suite comprising: panelled bath with mixer tap and shower attachment, rail and curtain over, radiator, ceramic tiled flooring, recess with wash hand basin, mixer tap and cupboard under, mirror, ceiling spotlights, concealed cistern w.c.
BEDROOM 3 13' 10" x 8' 8" (4.22m x 2.64m) Built-in wardrobe with hanging space and shelf, built-in book shelving over bed, window to front aspect with radiator under, wood laminate flooring, tall narrow window to one side.
TOP FLOOR Mezzanine landing to rear, skylight window, ceiling spotlights.
PRIMARY BEDROOM SUITE 15' 6" x 11' 4" (4.72m x 3.45m) Full height sliding double glazed door with full height window to one side leading to roof terrace with far reaching views, narrow borrowed light window to landing, three skylight windows, steps leading up to:
EN-SUITE & DRESSING AREA 11' 4" x 10' 10" maximum (3.45m x 3.3m)
BATHROOM White suite comprising: bath with mixer tap and shower attachment, ceramic tiled surrounds with shelving to one end, concealed cistern w.c., bidet, wash hand basin with mixer tap and cupboards under, shaver point, narrow window to front aspect, radiator, tiled flooring.
DRESSING AREA Built-in double doored wardrobe with hanging space and shelving, door to front aspect leading to:
NARROW BALCONY AREA Balcony with railings, views towards the No.1 Building and Spinnaker Tower over roof tops.
OUTSIDE To the rear accessible from the primary bedroom area is a roof terrace.
ROOF TERRACE 16' 6" x 6' 5" approx. (5.03m x 1.96m) Accessible from the primary bedroom area, high brick retaining wall with railing overlooking garden with far reaching views, lighting.
TERRACE Accessible from the sitting room is a decked terrace with railing and curved feature wall, composite flooring, staircase leading down to garden.
OUTSIDE Directly to the rear of the property, accessible from the garden room and first floor sitting room is part-covered patio area leading to lawned garden with flagstone patio, shrubs, evergreens and bushes, the garden is enclsoed by brick retaining wall on one side and fence panelling to the other, pergola and patio area, pedestrian gate providing rear access to residents garages and car parking space.
GARAGE 16' 10" x 8' 11" (5.13m x 2.72m) Remote controlled roller up and over door.
AGENTS NOTES Council Tax Band F - Portsmouth City Council
Broadband - ASDL/FTTC Fibre Checker (openreach.com)
Flood Risk - Refer to - (GOV.UK (check-long-term-flood-risk.service.gov.uk)
Brochures
Brochure- COUNCIL TAXA payment made to your local authority in order to pay for local services like schools, libraries, and refuse collection. The amount you pay depends on the value of the property.Read more about council Tax in our glossary page.
- Band: F
- PARKINGDetails of how and where vehicles can be parked, and any associated costs.Read more about parking in our glossary page.
- Garage,Off street
- GARDENA property has access to an outdoor space, which could be private or shared.
- Yes
- ACCESSIBILITYHow a property has been adapted to meet the needs of vulnerable or disabled individuals.Read more about accessibility in our glossary page.
- Ask agent
Old Portsmouth, Hampshire
Add an important place to see how long it'd take to get there from our property listings.
__mins driving to your place
Get an instant, personalised result:
- Show sellers you’re serious
- Secure viewings faster with agents
- No impact on your credit score
Your mortgage
Notes
Staying secure when looking for property
Ensure you're up to date with our latest advice on how to avoid fraud or scams when looking for property online.
Visit our security centre to find out moreDisclaimer - Property reference 100157007489. The information displayed about this property comprises a property advertisement. Rightmove.co.uk makes no warranty as to the accuracy or completeness of the advertisement or any linked or associated information, and Rightmove has no control over the content. This property advertisement does not constitute property particulars. The information is provided and maintained by Fine & Country, Drayton. Please contact the selling agent or developer directly to obtain any information which may be available under the terms of The Energy Performance of Buildings (Certificates and Inspections) (England and Wales) Regulations 2007 or the Home Report if in relation to a residential property in Scotland.
*This is the average speed from the provider with the fastest broadband package available at this postcode. The average speed displayed is based on the download speeds of at least 50% of customers at peak time (8pm to 10pm). Fibre/cable services at the postcode are subject to availability and may differ between properties within a postcode. Speeds can be affected by a range of technical and environmental factors. The speed at the property may be lower than that listed above. You can check the estimated speed and confirm availability to a property prior to purchasing on the broadband provider's website. Providers may increase charges. The information is provided and maintained by Decision Technologies Limited. **This is indicative only and based on a 2-person household with multiple devices and simultaneous usage. Broadband performance is affected by multiple factors including number of occupants and devices, simultaneous usage, router range etc. For more information speak to your broadband provider.
Map data ©OpenStreetMap contributors.







