
Easedale Close, Linacre Woods, Chesterfield

- PROPERTY TYPE
Semi-Detached
- BEDROOMS
2
- BATHROOMS
1
- SIZE
618 sq ft
57 sq m
- TENUREDescribes how you own a property. There are different types of tenure - freehold, leasehold, and commonhold.Read more about tenure in our glossary page.
Freehold
Key features
- DELIGHTFUL SEMI DETACHED HOUSE - GUIDE PRICE £145,000 TO £150,000
- HEAD OF CUL-DE-SAC POSITION
- GOOD SIZED LIVING ROOM
- MODERN KITCHEN WITH INTEGRATED COOKING APPLIANCES
- TWO DOUBLE BEDROOMS
- MODERN BATHROOM
- MATURE GARDENS & OFF STREET PARKING
- NO CHAIN
- EPC RATING: D
Description
AFFORDABLE TWO BED SEMI - CUL-DE-SAC POSITION - MODERN KITCHEN & BATHROOM - NO CHAIN
Sat at the head of a cul-de-sac and offered for sale with no chain is this two double bedroomed semi detached house which would make an ideal starter home/investment property. Offering 618 sq.ft. of neutrally presented and easily managed accommodation including a good sized living room and modern kitchen and bathroom. Outside, there are gardens to the front and rear, together with off street parking.
Located in a popular residential area, the property is well placed for the local shops and amenities on Wardgate Way and just a short distance from Brushfield Park and Holmebrook Valley Country Park. The property is also readily accessible for transport links towards Chesterfield Town Centre, Dronfield and Sheffield.
Do not miss the chance to make this delightful property your own.
General - Gas central heating (Glow Worm 30Ci Combi Boiler)
uPVC sealed unit double glazed windows and doors
Gross internal floor area - 57.4 s.qm./618 sq.ft.
Council Tax Band - B
Tenure - Freehold
Secondary School Catchment Area - Outwood Academy Newbold
On The Ground Floor - A uPVC double glazed front entrance door opens into a ...
Entrance Porch - Having a door opening into the ...
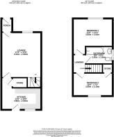
Living Room - 5.28m x 3.81m (17'4 x 12'6) - A generous front facing reception room having a feature fireplace with wood surround, marble inset and hearth, and an inset electric fire.
A staircase rises to the First Floor accommodation.
Centre Lobby - Having a built-in under stair store.
Kitchen - 3.81m x 3.05m (12'6 x 10'0) - Being part tiled and fitted with a range of wall, drawer and base units with under unit lighting and complementary work surfaces over.
Inset single drainer stainless steel sink with mixer tap.
Integrated appliances to include an electric oven and 4-ring gas hob with concealed extractor over.
Space and plumbing is provided for a washing machine.
Vinyl flooring.
A uPVC double glazed door gives access onto the rear of the property.
On The First Floor -
Landing -
Bedroom One - 3.81m x 3.43m (12'6 x 11'3) - A good sized front facing double bedroom.
Bedroom Two - 3.81m x 2.18m (12'6 x 7'2) - A rear facing double bedroom having a built-in over stair storage cupboard which houses the gas boiler.
Family Bathroom - 2.59m x 1.65m (8'6 x 5'5) - Being fully tiled and fitted with a white 3-piece suite comprising of a panelled bath with glass shower screen and mixer shower over, semi recessed wash hand basin with vanity unit below, and a low flush WC.
Vinyl flooring.
Outside - To the front of the property there is a small lawned garden. A shared gravelled driveway leads to off street parking at the side of the property.
To the rear of the property there is a south west facing garden which requires attention. There is also a garden shed.
Brochures
Easedale Close, Linacre Woods, ChesterfieldBuyers Guide- COUNCIL TAXA payment made to your local authority in order to pay for local services like schools, libraries, and refuse collection. The amount you pay depends on the value of the property.Read more about council Tax in our glossary page.
- Band: B
- PARKINGDetails of how and where vehicles can be parked, and any associated costs.Read more about parking in our glossary page.
- Yes
- GARDENA property has access to an outdoor space, which could be private or shared.
- Yes
- ACCESSIBILITYHow a property has been adapted to meet the needs of vulnerable or disabled individuals.Read more about accessibility in our glossary page.
- Ask agent
Easedale Close, Linacre Woods, Chesterfield
Add an important place to see how long it'd take to get there from our property listings.
__mins driving to your place
Get an instant, personalised result:
- Show sellers you’re serious
- Secure viewings faster with agents
- No impact on your credit score



Your mortgage
Notes
Staying secure when looking for property
Ensure you're up to date with our latest advice on how to avoid fraud or scams when looking for property online.
Visit our security centre to find out moreDisclaimer - Property reference 34244278. The information displayed about this property comprises a property advertisement. Rightmove.co.uk makes no warranty as to the accuracy or completeness of the advertisement or any linked or associated information, and Rightmove has no control over the content. This property advertisement does not constitute property particulars. The information is provided and maintained by Wilkins Vardy Residential, Chesterfield. Please contact the selling agent or developer directly to obtain any information which may be available under the terms of The Energy Performance of Buildings (Certificates and Inspections) (England and Wales) Regulations 2007 or the Home Report if in relation to a residential property in Scotland.
*This is the average speed from the provider with the fastest broadband package available at this postcode. The average speed displayed is based on the download speeds of at least 50% of customers at peak time (8pm to 10pm). Fibre/cable services at the postcode are subject to availability and may differ between properties within a postcode. Speeds can be affected by a range of technical and environmental factors. The speed at the property may be lower than that listed above. You can check the estimated speed and confirm availability to a property prior to purchasing on the broadband provider's website. Providers may increase charges. The information is provided and maintained by Decision Technologies Limited. **This is indicative only and based on a 2-person household with multiple devices and simultaneous usage. Broadband performance is affected by multiple factors including number of occupants and devices, simultaneous usage, router range etc. For more information speak to your broadband provider.
Map data ©OpenStreetMap contributors.






