
Regency Drive, Kenilworth

- PROPERTY TYPE
End of Terrace
- BEDROOMS
3
- BATHROOMS
2
- SIZE
Ask agent
- TENUREDescribes how you own a property. There are different types of tenure - freehold, leasehold, and commonhold.Read more about tenure in our glossary page.
Freehold
Key features
- Three Double Bedrooms
- Garage
- Viewing Essential
- Ready To Move Into
- Tastefully Presented
Description
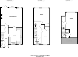
ENTRANCE HALL With radiator, Amtico flooring and understairs storage cupboards.
CLOAKROOM Having w.c. and vanity basin with cupboard under.
KITCHEN/BREAKFAST ROOM 14' 1" x 11' 8" (4.29m x 3.56m) Having an extensive range of cupboard and drawer units with matching wall cupboards and space for breakfast table and chairs. Space and plumbing for dishwasher and washing machine, space also for tall fridge/freezer. Stainless steel sink, four ring gas hob, electric double oven and extractor. Tall radiator and natural stone Travertine flooring.
LOUNGE/DINER 18' 2" x 16' 3" (5.54m x 4.95m) A stylish and spacious living room with feature fireplace and modern contemporary fitted fire, bay window and French doors leading to the rear garden. Radiator and Amtico flooring.
FIRST FLOOR LANDING With built in storage cupboard.
BATHROOM Having panelled bath with fixed head and hand held shower attachment, w.c. and vanity basin with cupboard under. Fully tiled walls and heated towel rail.
DOUBLE BEDROOM 12' 8" x 7' 6" (3.86m x 2.29m) With bay window, radiator and built in wardrobe.
LARGE DOUBLE ROOM 13' 6" x 13' 4" (4.11m x 4.06m) Max A large double bedroom which was originally two separate bedrooms and can easily be converted back if desired. Rear garden views, built in double wardrobe and radiator.
SECOND FLOOR LANDING Having a large walk in storage cupboard.
LARGE DOUBLE BEDROOM 21' 1" x 10' 2" (6.43m x 3.1m) A large bedroom with rear garden views and radiator. This room has plenty of space for a dressing area and wardrobes plus room for a large en-suite if a buyer chooses.
EN-SUITE SHOWER Having a corner shower enclosure with glazed shower screen and pedestal wash basin
OUTSIDE
SINGLE GARAGE The garage is next to the property and has an up and over door.
GARDENS The front and rear gardens have been landscaped to provide low maintenance and have stone chippings, mature shrubs and paving along with, in the rear garden, attractive shrubs in the borders and sunny seating areas. Timber fencing forms the boundaries.
Brochures
Regency Drive Bro...- COUNCIL TAXA payment made to your local authority in order to pay for local services like schools, libraries, and refuse collection. The amount you pay depends on the value of the property.Read more about council Tax in our glossary page.
- Band: D
- PARKINGDetails of how and where vehicles can be parked, and any associated costs.Read more about parking in our glossary page.
- Garage
- GARDENA property has access to an outdoor space, which could be private or shared.
- Yes
- ACCESSIBILITYHow a property has been adapted to meet the needs of vulnerable or disabled individuals.Read more about accessibility in our glossary page.
- Ask agent
Regency Drive, Kenilworth
Add an important place to see how long it'd take to get there from our property listings.
__mins driving to your place
Get an instant, personalised result:
- Show sellers you’re serious
- Secure viewings faster with agents
- No impact on your credit score

Your mortgage
Notes
Staying secure when looking for property
Ensure you're up to date with our latest advice on how to avoid fraud or scams when looking for property online.
Visit our security centre to find out moreDisclaimer - Property reference 103644001477. The information displayed about this property comprises a property advertisement. Rightmove.co.uk makes no warranty as to the accuracy or completeness of the advertisement or any linked or associated information, and Rightmove has no control over the content. This property advertisement does not constitute property particulars. The information is provided and maintained by Julie Philpot, Kenilworth. Please contact the selling agent or developer directly to obtain any information which may be available under the terms of The Energy Performance of Buildings (Certificates and Inspections) (England and Wales) Regulations 2007 or the Home Report if in relation to a residential property in Scotland.
*This is the average speed from the provider with the fastest broadband package available at this postcode. The average speed displayed is based on the download speeds of at least 50% of customers at peak time (8pm to 10pm). Fibre/cable services at the postcode are subject to availability and may differ between properties within a postcode. Speeds can be affected by a range of technical and environmental factors. The speed at the property may be lower than that listed above. You can check the estimated speed and confirm availability to a property prior to purchasing on the broadband provider's website. Providers may increase charges. The information is provided and maintained by Decision Technologies Limited. **This is indicative only and based on a 2-person household with multiple devices and simultaneous usage. Broadband performance is affected by multiple factors including number of occupants and devices, simultaneous usage, router range etc. For more information speak to your broadband provider.
Map data ©OpenStreetMap contributors.





