
Laundry Lane, Thorpe St. Andrew, Norwich

Letting details
- Let available date:
- Now
- Deposit:
- £1,730A deposit provides security for a landlord against damage, or unpaid rent by a tenant.Read more about deposit in our glossary page.
- Min. Tenancy:
- 6 months How long the landlord offers to let the property for.Read more about tenancy length in our glossary page.
- Let type:
- Long term
- Furnish type:
- Unfurnished
- Council Tax:
- Ask agent
- PROPERTY TYPE
Chalet
- BEDROOMS
1
- BATHROOMS
1
- SIZE
Ask agent
Key features
- Four bedroom
- SEMI DETACHED CHALET
- Newly re-furbished
- Sought after location
- Off Road Parking
Description
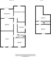
Accommodation Comprises
Door to
Entrance Hall (Ground Floor)
Doors to Bedrooms One, Two, Bathroom, Lounge and Kitchen, stairs to first floor .
Lounge (Ground Floor)
5.14m ( 16'11'') x 3.80m ( 12'6'')
UPVC window, radiator.
Bedroom One (Ground Floor)
3.50m ( 11'6'') x 3.04m ( 10'0'')
UPVC window, radiator.
Bedroom Two (Ground Floor)
3.50m ( 11'6'') x 3.36m ( 11'1'')
Radiator, UPVC windows and patio doors to Conservatory.
Kitchen (Ground Floor)
4.19m ( 13'9'') x 3.07m ( 10'1'')
Brand New fitted Kitchen, fitted oven and hob, Integral fridge, freezer, washing machine and dishwasher. Single sink and drainer, UPVC window door to conservatory.
Conservatory (Ground Floor)
4.65m ( 15'4'') x 3.51m ( 11'7'')
UPVC window, UPVC patio doors.
Bathroom (Ground Floor)
Low level WC, hand wash basin, bath with shower over, UPVC window, heated towel rail.
First Floor landing (First Floor)
Doors to Bedroom Three and Four
Bedroom Three (First Floor)
4.43m ( 14'7'') x 2.37m ( 7'10'')
UPVC window, radiator, storage into eaves.
Bedroom Four (First Floor)
4.63m ( 15'3'') x 2.64m ( 8'8'')
UPVC window, radiator.
Outside Front
Driveway with ample parking to the front.
Outside Rear
Patio , large rear garden enclosed by timber fencing.
Brochures
Property Brochure- COUNCIL TAXA payment made to your local authority in order to pay for local services like schools, libraries, and refuse collection. The amount you pay depends on the value of the property.Read more about council Tax in our glossary page.
- Band: C
- PARKINGDetails of how and where vehicles can be parked, and any associated costs.Read more about parking in our glossary page.
- Driveway,No disabled parking,Not allocated,No permit
- GARDENA property has access to an outdoor space, which could be private or shared.
- Rear garden
- ACCESSIBILITYHow a property has been adapted to meet the needs of vulnerable or disabled individuals.Read more about accessibility in our glossary page.
- Ask agent
Laundry Lane, Thorpe St. Andrew, Norwich
Add an important place to see how long it'd take to get there from our property listings.
__mins driving to your place
Notes
Staying secure when looking for property
Ensure you're up to date with our latest advice on how to avoid fraud or scams when looking for property online.
Visit our security centre to find out moreDisclaimer - Property reference 6506. The information displayed about this property comprises a property advertisement. Rightmove.co.uk makes no warranty as to the accuracy or completeness of the advertisement or any linked or associated information, and Rightmove has no control over the content. This property advertisement does not constitute property particulars. The information is provided and maintained by Gilson Bailey, Norwich. Please contact the selling agent or developer directly to obtain any information which may be available under the terms of The Energy Performance of Buildings (Certificates and Inspections) (England and Wales) Regulations 2007 or the Home Report if in relation to a residential property in Scotland.
*This is the average speed from the provider with the fastest broadband package available at this postcode. The average speed displayed is based on the download speeds of at least 50% of customers at peak time (8pm to 10pm). Fibre/cable services at the postcode are subject to availability and may differ between properties within a postcode. Speeds can be affected by a range of technical and environmental factors. The speed at the property may be lower than that listed above. You can check the estimated speed and confirm availability to a property prior to purchasing on the broadband provider's website. Providers may increase charges. The information is provided and maintained by Decision Technologies Limited. **This is indicative only and based on a 2-person household with multiple devices and simultaneous usage. Broadband performance is affected by multiple factors including number of occupants and devices, simultaneous usage, router range etc. For more information speak to your broadband provider.
Map data ©OpenStreetMap contributors.







