Holland Drive, London, SE23

Letting details
- Let available date:
- 16/11/2025
- Deposit:
- £2,750A deposit provides security for a landlord against damage, or unpaid rent by a tenant.Read more about deposit in our glossary page.
- Min. Tenancy:
- Ask agent How long the landlord offers to let the property for.Read more about tenancy length in our glossary page.
- Let type:
- Long term
- Furnish type:
- Furnished or unfurnished, landlord is flexible
- Council Tax:
- Ask agent
- PROPERTY TYPE
Terraced
- BEDROOMS
4
- BATHROOMS
3
- SIZE
Ask agent
Key features
- No Agent Fees
- Students Can Enquire
- Property Reference Number: 2673551
Description
Recently Renovated 3–4 Bedroom House Private Road Close to Mayow Park
Beautifully refurbished 3–4 bedroom family home located just a 5-minute walk from Mayow Park, on Holland Drive — a quiet private no-through road off Queenswood Road.
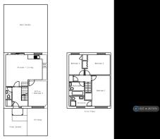
Ground Floor:
-
Entrance lobby with guest WC
-
Utility cupboard with washing machine and dryer
-
Versatile fourth bedroom or home office
-
Spacious open-plan living room and modern fitted kitchen with direct access to a private rear garden
First Floor:
-
Three good-sized bedrooms
-
Contemporary family bathroom
-
Master bedroom with ensuite shower room
Outside:
-
Private driveway for one car plus front garden
-
Additional shared residents’ parking on Holland Drive
Private rear garden with recently laid turf
Ideally suited to families or professionals seeking a modern, well-presented home in a peaceful yet convenient location close to local parks, shops, and transport links.
Close to Forest Hill Station for fast links to London Bridge and the Overground. The area offers great schools, independent cafés, restaurants, and the nearby Horniman Museum and Gardens.
Summary & Exclusions:
- Rent Amount: £2,750.00 per month (£634.62 per week)
- Deposit / Bond: £2,750.00
- 4 Bedrooms
- 3 Bathrooms
- Property comes furnished or unfurnished (tenant can decide)
- Available to move in from 16 November 2025
- Minimum tenancy term is 6 months
- Maximum number of tenants is 5
- Students welcome to enquire
- No Pets, sorry
- No Smokers
- Family Friendly
- Bills not included
- Property has parking
- Property has garden access
- EPC Rating: C
If calling, please quote reference: 2673551
Fees:
You will not be charged any admin fees.
** Contact today to book a viewing and have the landlord show you round! **
Request Details form responded to 24/7, with phone bookings available 9am-9pm, 7 days a week.
- COUNCIL TAXA payment made to your local authority in order to pay for local services like schools, libraries, and refuse collection. The amount you pay depends on the value of the property.Read more about council Tax in our glossary page.
- Ask agent
- PARKINGDetails of how and where vehicles can be parked, and any associated costs.Read more about parking in our glossary page.
- Private
- GARDENA property has access to an outdoor space, which could be private or shared.
- Private garden
- ACCESSIBILITYHow a property has been adapted to meet the needs of vulnerable or disabled individuals.Read more about accessibility in our glossary page.
- Ask agent
Energy performance certificate - ask agent
Holland Drive, London, SE23
Add an important place to see how long it'd take to get there from our property listings.
__mins driving to your place
Notes
Staying secure when looking for property
Ensure you're up to date with our latest advice on how to avoid fraud or scams when looking for property online.
Visit our security centre to find out moreDisclaimer - Property reference 267355127102025. The information displayed about this property comprises a property advertisement. Rightmove.co.uk makes no warranty as to the accuracy or completeness of the advertisement or any linked or associated information, and Rightmove has no control over the content. This property advertisement does not constitute property particulars. The information is provided and maintained by OpenRent, London. Please contact the selling agent or developer directly to obtain any information which may be available under the terms of The Energy Performance of Buildings (Certificates and Inspections) (England and Wales) Regulations 2007 or the Home Report if in relation to a residential property in Scotland.
*This is the average speed from the provider with the fastest broadband package available at this postcode. The average speed displayed is based on the download speeds of at least 50% of customers at peak time (8pm to 10pm). Fibre/cable services at the postcode are subject to availability and may differ between properties within a postcode. Speeds can be affected by a range of technical and environmental factors. The speed at the property may be lower than that listed above. You can check the estimated speed and confirm availability to a property prior to purchasing on the broadband provider's website. Providers may increase charges. The information is provided and maintained by Decision Technologies Limited. **This is indicative only and based on a 2-person household with multiple devices and simultaneous usage. Broadband performance is affected by multiple factors including number of occupants and devices, simultaneous usage, router range etc. For more information speak to your broadband provider.
Map data ©OpenStreetMap contributors.




