
Landguard Road, Southsea

- PROPERTY TYPE
Terraced
- BEDROOMS
2
- BATHROOMS
1
- SIZE
Ask agent
- TENUREDescribes how you own a property. There are different types of tenure - freehold, leasehold, and commonhold.Read more about tenure in our glossary page.
Freehold
Key features
- No Forward Chain!
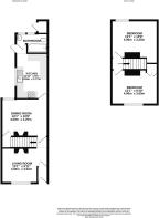
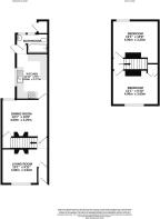
- Two Bedroom, Terraced Property
- Close To Local Amenities
- Two Separate Reception Rooms
- Internal Viewing Recommended
- Mortgage Adivce Available Upon Request
Description
Stepping through the welcoming porch, you're greeted by a delightful front reception room that would make an ideal dining area, followed by a separate, cosy living room complete with a feature fireplace and handy under-stair storage. Continuing through the property, there's a generously sized fitted kitchen providing plenty of workspace and storage, with a fitted bathroom suite conveniently located at the rear.
Upstairs, the first floor hosts two excellent double bedrooms, both well-proportioned, with the main bedroom benefiting from a built-in wardrobe. Externally, the home enjoys a neatly kept, enclosed rear garden — perfect for relaxing or entertaining in the warmer months.
This lovely property offers a great blend of character, comfort, and practicality, all set within a sought-after Southsea location. We highly recommend an internal viewing to truly appreciate all it has to offer — contact the Lawson Rose sales team today for further details or to arrange your viewing.
Material Information:
• Construction: Brick Built
• Electricity Supply: Alternating Current
• Heating: Gas Central Heating
• Water Supply: Mains Water Supply
• Sewage: Mains Sewage
• Broadband: Standard, Superfast Fibre and Gfast Fibre are available.
• Mobile: Ofcom Checker shows EE, Three, 02 and Vodafone all have voice and data availability in this area.
• Permit Parking: 1st permit is £30, 2nd permit is £120 and 3rd permit (where available) is £300.
• Council Tax: Portsmouth City Council – Band B
• Flood Risk – Low Risk (Stated on the Gov.uk portal)
Brochures
Property BrochureFull Details- COUNCIL TAXA payment made to your local authority in order to pay for local services like schools, libraries, and refuse collection. The amount you pay depends on the value of the property.Read more about council Tax in our glossary page.
- Band: B
- PARKINGDetails of how and where vehicles can be parked, and any associated costs.Read more about parking in our glossary page.
- Yes
- GARDENA property has access to an outdoor space, which could be private or shared.
- Yes
- ACCESSIBILITYHow a property has been adapted to meet the needs of vulnerable or disabled individuals.Read more about accessibility in our glossary page.
- Ask agent
Landguard Road, Southsea
Add an important place to see how long it'd take to get there from our property listings.
__mins driving to your place
Get an instant, personalised result:
- Show sellers you’re serious
- Secure viewings faster with agents
- No impact on your credit score
Your mortgage
Notes
Staying secure when looking for property
Ensure you're up to date with our latest advice on how to avoid fraud or scams when looking for property online.
Visit our security centre to find out moreDisclaimer - Property reference 12754573. The information displayed about this property comprises a property advertisement. Rightmove.co.uk makes no warranty as to the accuracy or completeness of the advertisement or any linked or associated information, and Rightmove has no control over the content. This property advertisement does not constitute property particulars. The information is provided and maintained by Lawson Rose, Southsea. Please contact the selling agent or developer directly to obtain any information which may be available under the terms of The Energy Performance of Buildings (Certificates and Inspections) (England and Wales) Regulations 2007 or the Home Report if in relation to a residential property in Scotland.
*This is the average speed from the provider with the fastest broadband package available at this postcode. The average speed displayed is based on the download speeds of at least 50% of customers at peak time (8pm to 10pm). Fibre/cable services at the postcode are subject to availability and may differ between properties within a postcode. Speeds can be affected by a range of technical and environmental factors. The speed at the property may be lower than that listed above. You can check the estimated speed and confirm availability to a property prior to purchasing on the broadband provider's website. Providers may increase charges. The information is provided and maintained by Decision Technologies Limited. **This is indicative only and based on a 2-person household with multiple devices and simultaneous usage. Broadband performance is affected by multiple factors including number of occupants and devices, simultaneous usage, router range etc. For more information speak to your broadband provider.
Map data ©OpenStreetMap contributors.







