Ambrose Place, Worthing, BN11 1PY

Letting details
- Let available date:
- 18/11/2025
- Deposit:
- £1,673A deposit provides security for a landlord against damage, or unpaid rent by a tenant.Read more about deposit in our glossary page.
- Min. Tenancy:
- Ask agent How long the landlord offers to let the property for.Read more about tenancy length in our glossary page.
- Let type:
- Long term
- Furnish type:
- Unfurnished
- Council Tax:
- Ask agent
- PROPERTY TYPE
Flat
- BEDROOMS
3
- BATHROOMS
1
- SIZE
861 sq ft
80 sq m
Key features
- Three Bedroom Flat
- Heart of Worthing Town Centre
- Character Features
- Available Mid-November
- Unfurnished
- Gas Central Heating
- EPC - D
Description
Aspire Residential are pleased to bring to the market this three bedroom apartment in the heart of Worthing Town Centre. Centrally located close to shops, restaurants and transport links, this property is in a great location.
Internally. this property boasts a whole heap of period features including parquet flooring. This property which has been renovated recently has three good sized bedrooms, a large living/diner & modern fitted kitchen with appliances.
Communal Rooftop - Door into:
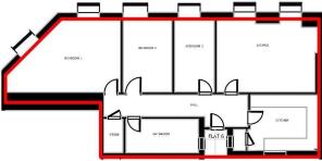
Entrance Hallway - Sky light. Two pendant lights. Picture rails. Radiator. Parquet flooring.
Kitchen - 11' 3'' x 9' 1'' (3.43m x 2.77m) - LED lights. West facing sash window. Pantry cupboard. Matching wall and base units. Part tiled splash back. Laminate worktop. Extractor fan over gas hob. Electric oven. Stainless steel mixer tap over kitchen sink with draining board. Freestanding washer dryer and fridge freezer. Laminate flooring.
Living Room - 15' 6'' x 14' 1'' into bay (4.72m x 4.29m) - Loft hatch. LED lights. Two sash bay windows. Picture rails. Fireplace. Storage alcove. Radiator. Internet and phone points. Parquet flooring.
Bathroom - 11' 6'' x 5' 3'' (3.50m x 1.60m) - Skylight. LED lights. Extractor. Sash window. Part tiled splashback surrounding bath. Stainless steel shower over bath with stainless steel mixer taps. Button flush w/c. Stainless steel taps over hand wash basin with tiled splashback. Radiator. Laminate flooring.
Bedroom 1 - 18' 10'' x 14' 0'' into bay (5.74m x 4.26m) - Pendant light. Picture rails. Two sash windows. Two built in storage cupboards. Radiator. Parquet flooring.
Bedroom 2 - 11' 7'' into bay x 7' 4'' (3.53m x 2.23m) - Pendant light. Picture rails. One sash window. Radiator. Parquet floor.
Bedroom 3 - 13' 7'' into bay x 6' 10'' (4.14m x 2.08m) - Pendant light. Picture rails. Sash window. Parquet flooring.
Worthing, a picturesque seaside town on the south coast of England, exudes a unique charm with its blend of Victorian elegance and contemporary vitality. Known for its extensive pebble beach, historic pier, and well-maintained promenade, Worthing offers residents and visitors alike a captivating coastal experience. The town's vibrant cultural scene is enriched by theatres, art galleries, and frequent events, creating a lively atmosphere. With its beautiful parks, such as Beach House Park and Highdown Gardens, Worthing provides green spaces for leisure and relaxation. The town's bustling town centre features a diverse array of shops, restaurants, and entertainment venues, contributing to its reputation as a welcoming and thriving community. Worthing's accessibility, rich history, and scenic beauty make it a sought-after destination for those seeking a coastal haven with a perfect blend of tradition and modernity.
Brochures
Ambrose Place, Worthing, BN11 1PYBrochure- COUNCIL TAXA payment made to your local authority in order to pay for local services like schools, libraries, and refuse collection. The amount you pay depends on the value of the property.Read more about council Tax in our glossary page.
- Band: B
- PARKINGDetails of how and where vehicles can be parked, and any associated costs.Read more about parking in our glossary page.
- Permit
- GARDENA property has access to an outdoor space, which could be private or shared.
- Yes
- ACCESSIBILITYHow a property has been adapted to meet the needs of vulnerable or disabled individuals.Read more about accessibility in our glossary page.
- Ask agent
Ambrose Place, Worthing, BN11 1PY
Add an important place to see how long it'd take to get there from our property listings.
__mins driving to your place

Notes
Staying secure when looking for property
Ensure you're up to date with our latest advice on how to avoid fraud or scams when looking for property online.
Visit our security centre to find out moreDisclaimer - Property reference 32825706. The information displayed about this property comprises a property advertisement. Rightmove.co.uk makes no warranty as to the accuracy or completeness of the advertisement or any linked or associated information, and Rightmove has no control over the content. This property advertisement does not constitute property particulars. The information is provided and maintained by Aspire Residential, Worthing. Please contact the selling agent or developer directly to obtain any information which may be available under the terms of The Energy Performance of Buildings (Certificates and Inspections) (England and Wales) Regulations 2007 or the Home Report if in relation to a residential property in Scotland.
*This is the average speed from the provider with the fastest broadband package available at this postcode. The average speed displayed is based on the download speeds of at least 50% of customers at peak time (8pm to 10pm). Fibre/cable services at the postcode are subject to availability and may differ between properties within a postcode. Speeds can be affected by a range of technical and environmental factors. The speed at the property may be lower than that listed above. You can check the estimated speed and confirm availability to a property prior to purchasing on the broadband provider's website. Providers may increase charges. The information is provided and maintained by Decision Technologies Limited. **This is indicative only and based on a 2-person household with multiple devices and simultaneous usage. Broadband performance is affected by multiple factors including number of occupants and devices, simultaneous usage, router range etc. For more information speak to your broadband provider.
Map data ©OpenStreetMap contributors.




