
Gronant Road, Prestatyn

- PROPERTY TYPE
Detached
- BEDROOMS
4
- BATHROOMS
2
- SIZE
1,432 sq ft
133 sq m
- TENUREDescribes how you own a property. There are different types of tenure - freehold, leasehold, and commonhold.Read more about tenure in our glossary page.
Freehold
Key features
- Detached extended property with large bi folding door over looking the garden
- Modern open plan living with natural light flooding through, perfect space for entertaining!
- Four well proportioned bedrooms
- Large enclosed private garden
- Outside brick built building offering plenty of storage solutions
- Modern fitted Milano kitchen with breakfast bar and quartz worktops
- Two reception rooms and a utility - Cardeen flooring with 20 year guarantee
- Large entrance hall offering storage cupboard
- Stunning turnkey property
- Sought after area of Upper Prestatyn
Description
Discover the epitome of contemporary living in the sought-after area of Upper Prestatyn with this stunning 4-bedroom house on Gronant Road. Situated in a peaceful and family-friendly neighbourhood, this property offers a perfect retreat for those seeking modern comfort and style. As you step into the large entrance hall, you'll immediately be captivated by the sense of space and elegance this home exudes. The hallway showcases a convenient storage cupboard, ensuring your belongings remain tidy and organized. Flowing seamlessly from the entrance hall, you'll find the heart of the home - a modern open-plan living area flooded with natural light. This is the ideal space for entertaining guests or simply enjoying quality time with your family. The large bi-folding doors create a seamless transition between indoor and outdoor living, leading out to the private garden. The garden is a true oasis, offering a tranquil sanctuary for relaxation or play. Imagine warm summer evenings spent hosting barbecues or enjoying a glass of wine on the patio while the kids play on the well-manicured lawn. The possibilities are endless! The property boasts four well-proportioned bedrooms, providing ample space for both family members and guests. Each bedroom is meticulously designed and offers a peaceful retreat for rest and relaxation. The modern fitted kitchen is a chef's dream, complete with a breakfast bar for casual dining. It boasts ample storage space and top-of-the-line appliances, ensuring every meal preparation is a delight. Additionally, there is a spacious utility room conveniently located adjacent to the kitchen. An exceptional feature of this property is the outside brick-built building providing plenty of storage solutions. Whether you need space for gardening tools, bicycles, or extra belongings, this versatile building offers endless possibilities. With its stunning turnkey condition, this home is ready for you to move in and make it your own. The attention to detail and high-quality finishes throughout ensure a luxurious and comfortable lifestyle. You'll find yourself living in a space where functionality meets style effortlessly. Situated in the sought-after area of Upper Prestatyn, this property offers more than just a stylish home. You'll enjoy the convenience of nearby amenities, including schools, shops, dining options, and beautiful parks. The location also provides easy access to the A548, ensuring a smooth commute to neighboring towns and cities. Don't miss out on this exceptional opportunity to own a truly remarkable property in Prestatyn. Embrace the modern yet welcoming ambiance and create cherished memories in this splendid home. Contact us today to arrange a viewing and take the first step toward living your dream lifestyle!
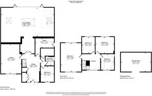
Room Measurements
Entrance Hall: 2.58m x 5.43m
Bedroom Four: 2.60m x 3.12m
Bathroom: 1.67m x 1.63m
Lounge: 3.99m x 5.75m
Utility: 3.64m x 1.73m
Kitchen/Diner: 10.48m x 5.65m
Bedroom One: 4.03m x 5.59m
Bedroom Two: 3.63m x 3.20m
Bedroom Three: 2.63m x 3.20m
Outbuilding: 5.91m x 3.74m
Denbighshire County Council Band: E
EPC Rating: E (EPC in place before works carried out)
Services: Mains gas, electric, water and drainage
Tenure: Freehold
Loft: Insulated
Extension completed: 2022
Combi Boiler fitted: 2021 (located down the side of the property in a storage cupboard accessed from outside only)
- COUNCIL TAXA payment made to your local authority in order to pay for local services like schools, libraries, and refuse collection. The amount you pay depends on the value of the property.Read more about council Tax in our glossary page.
- Band: E
- PARKINGDetails of how and where vehicles can be parked, and any associated costs.Read more about parking in our glossary page.
- Driveway
- GARDENA property has access to an outdoor space, which could be private or shared.
- Private garden
- ACCESSIBILITYHow a property has been adapted to meet the needs of vulnerable or disabled individuals.Read more about accessibility in our glossary page.
- No wheelchair access
Gronant Road, Prestatyn
Add an important place to see how long it'd take to get there from our property listings.
__mins driving to your place
Get an instant, personalised result:
- Show sellers you’re serious
- Secure viewings faster with agents
- No impact on your credit score
Your mortgage
Notes
Staying secure when looking for property
Ensure you're up to date with our latest advice on how to avoid fraud or scams when looking for property online.
Visit our security centre to find out moreDisclaimer - Property reference S1222919. The information displayed about this property comprises a property advertisement. Rightmove.co.uk makes no warranty as to the accuracy or completeness of the advertisement or any linked or associated information, and Rightmove has no control over the content. This property advertisement does not constitute property particulars. The information is provided and maintained by LL Estates, Rhuddlan. Please contact the selling agent or developer directly to obtain any information which may be available under the terms of The Energy Performance of Buildings (Certificates and Inspections) (England and Wales) Regulations 2007 or the Home Report if in relation to a residential property in Scotland.
*This is the average speed from the provider with the fastest broadband package available at this postcode. The average speed displayed is based on the download speeds of at least 50% of customers at peak time (8pm to 10pm). Fibre/cable services at the postcode are subject to availability and may differ between properties within a postcode. Speeds can be affected by a range of technical and environmental factors. The speed at the property may be lower than that listed above. You can check the estimated speed and confirm availability to a property prior to purchasing on the broadband provider's website. Providers may increase charges. The information is provided and maintained by Decision Technologies Limited. **This is indicative only and based on a 2-person household with multiple devices and simultaneous usage. Broadband performance is affected by multiple factors including number of occupants and devices, simultaneous usage, router range etc. For more information speak to your broadband provider.
Map data ©OpenStreetMap contributors.





