
Chapel Street, Chichester, PO19

- PROPERTY TYPE
Flat
- BEDROOMS
2
- BATHROOMS
1
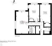
- SIZE
678 sq ft
63 sq m
Key features
- Dual aspect sitting room and principal bedroom
- Central location
- On-site manager and out of hours back up
- Communal garden and laundry room
- Guest suite
- No onward chain
Description
A light and airy two-bedroom retirement apartment in the heart of the city centre
This sunny first-floor apartment offers well-planned, comfortable and convenient accommodation within the ancient city walls, just a few steps from the pedestrianised shopping centre.
The property features an entrance hall, a bright dual-aspect sitting room and principal bedroom both facing west and north, kitchen, a second bedroom and a modern shower room.
Residents enjoy peace of mind with an on-site manager and a 24-hour Careline system providing out-of-hours emergency support. The development also offers beautifully landscaped communal gardens, a guest suite for visiting friends and family and a shared laundry room.
Chichester District Council - 25/26 Tax Band C £2,007.38 EPC-C
Lease: 85 years remaining
Service Charge: 3757.44 pa
Ground Rent: £75 pa
Directions - Proceed on foot from the city centre cross into West Street with the cathedral on the left, turn right into Chapel Street. Follow the road north and Providence Place is on the left. There is a pay and display car park a short distance along on the right. what3words - manliness.these.class
EPC Rating: C
Brochures
Property Brochure- COUNCIL TAXA payment made to your local authority in order to pay for local services like schools, libraries, and refuse collection. The amount you pay depends on the value of the property.Read more about council Tax in our glossary page.
- Band: C
- PARKINGDetails of how and where vehicles can be parked, and any associated costs.Read more about parking in our glossary page.
- Yes
- GARDENA property has access to an outdoor space, which could be private or shared.
- Communal garden
- ACCESSIBILITYHow a property has been adapted to meet the needs of vulnerable or disabled individuals.Read more about accessibility in our glossary page.
- Ask agent
Energy performance certificate - ask agent
Chapel Street, Chichester, PO19
Add an important place to see how long it'd take to get there from our property listings.
__mins driving to your place
Explore area BETA
Chichester
Get to know this area with AI-generated guides about local green spaces, transport links, restaurants and more.
Get an instant, personalised result:
- Show sellers you’re serious
- Secure viewings faster with agents
- No impact on your credit score
Your mortgage
Notes
Staying secure when looking for property
Ensure you're up to date with our latest advice on how to avoid fraud or scams when looking for property online.
Visit our security centre to find out moreDisclaimer - Property reference b0a37484-5992-428f-921b-13cea9d3eb51. The information displayed about this property comprises a property advertisement. Rightmove.co.uk makes no warranty as to the accuracy or completeness of the advertisement or any linked or associated information, and Rightmove has no control over the content. This property advertisement does not constitute property particulars. The information is provided and maintained by Henry Adams, Chichester. Please contact the selling agent or developer directly to obtain any information which may be available under the terms of The Energy Performance of Buildings (Certificates and Inspections) (England and Wales) Regulations 2007 or the Home Report if in relation to a residential property in Scotland.
*This is the average speed from the provider with the fastest broadband package available at this postcode. The average speed displayed is based on the download speeds of at least 50% of customers at peak time (8pm to 10pm). Fibre/cable services at the postcode are subject to availability and may differ between properties within a postcode. Speeds can be affected by a range of technical and environmental factors. The speed at the property may be lower than that listed above. You can check the estimated speed and confirm availability to a property prior to purchasing on the broadband provider's website. Providers may increase charges. The information is provided and maintained by Decision Technologies Limited. **This is indicative only and based on a 2-person household with multiple devices and simultaneous usage. Broadband performance is affected by multiple factors including number of occupants and devices, simultaneous usage, router range etc. For more information speak to your broadband provider.
Map data ©OpenStreetMap contributors.








