Boyton End, Stoke By Clare, CO10

Letting details
- Let available date:
- 13/11/2025
- Deposit:
- £3,173A deposit provides security for a landlord against damage, or unpaid rent by a tenant.Read more about deposit in our glossary page.
- Min. Tenancy:
- 12 months How long the landlord offers to let the property for.Read more about tenancy length in our glossary page.
- Let type:
- Long term
- Furnish type:
- Unfurnished
- Council Tax:
- Ask agent
- PROPERTY TYPE
Detached
- BEDROOMS
5
- BATHROOMS
4
- SIZE
2,658 sq ft
247 sq m
Description
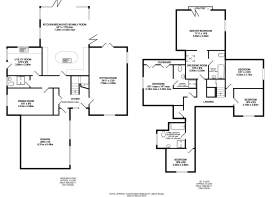
GROUND FLOOR
Entrance Hall – Welcoming entrance with front door, staircase rising to the first floor, and doors leading to the main living areas.
Living Room – Generous living space featuring an open fire, windows to the front and side, and French style doors opening onto the rear patio.
Kitchen/Breakfast Room – Modern kitchen with an extensive range of wall and base units, work surfaces, sink and drainer, American-style fridge/freezer, integrated microwave and dishwasher, two AEG ovens, Lamona hob with cooker hood, breakfast bar, and two sets of bi-fold doors leading to the rear garden.
Dining Room – Light and spacious with dual-aspect windows to the front and side, perfect for family meals and entertaining.
Utility Room – Equipped with wall and base units, work surfaces, sink and drainer, integrated washing machine and separate tumble dryer, plus doors and windows to the rear and side.
Shower/Wet Room – Fully tiled and fitted with a WC, vanity wash hand basin, shower, heated towel rail, and window to the side.
FIRST FLOOR
Master Bedroom – Generous principal bedroom with a wardrobe area, side-facing window, and Juliet balcony overlooking the rear.
En-Suite – Featuring a WC, vanity wash hand basin, heated towel rail, and bath with hand-held shower attachment.
Bedroom Two – Spacious double bedroom with built-in wardrobes and a side-facing window.
En-Suite – Comprising a WC, vanity wash hand basin, shower cubicle, and heated towel rail.
Bedroom Three – Comfortable double bedroom with a side-facing window.
Bedroom Four – Double bedroom with front and side windows, offering plenty of natural light.
Bedroom Five – Cosy double bedroom with a front-facing window.
Bathroom – Well-appointed with a WC, vanity wash hand basin, bath with hand-held shower, separate shower, heated towel rail, and window to the side.
OUTSIDE
The property is accessed via a tarmac driveway providing ample off-road parking and leading to an integral double garage. Set within a substantial plot, the home is surrounded by well-maintained gardens and offers beautiful views of the countryside beyond.
EPC Rating – D.
Oil Central Heating.
West Suffolk Council.
Council Tax Band – G.
12 Month Lease.
Pets Considered.
What 3 Words – ///post.blurs.grownup
Broadband - Ofcom states speeds available up to Ultrafast 1800Mbps.
Mobile - Yes
Approx. 2658 Sq Ft.
- COUNCIL TAXA payment made to your local authority in order to pay for local services like schools, libraries, and refuse collection. The amount you pay depends on the value of the property.Read more about council Tax in our glossary page.
- Band: G
- PARKINGDetails of how and where vehicles can be parked, and any associated costs.Read more about parking in our glossary page.
- Yes
- GARDENA property has access to an outdoor space, which could be private or shared.
- Yes
- ACCESSIBILITYHow a property has been adapted to meet the needs of vulnerable or disabled individuals.Read more about accessibility in our glossary page.
- Ask agent
Boyton End, Stoke By Clare, CO10
Add an important place to see how long it'd take to get there from our property listings.
__mins driving to your place
Notes
Staying secure when looking for property
Ensure you're up to date with our latest advice on how to avoid fraud or scams when looking for property online.
Visit our security centre to find out moreDisclaimer - Property reference NEW250195_L. The information displayed about this property comprises a property advertisement. Rightmove.co.uk makes no warranty as to the accuracy or completeness of the advertisement or any linked or associated information, and Rightmove has no control over the content. This property advertisement does not constitute property particulars. The information is provided and maintained by Jackson-Stops, Newmarket. Please contact the selling agent or developer directly to obtain any information which may be available under the terms of The Energy Performance of Buildings (Certificates and Inspections) (England and Wales) Regulations 2007 or the Home Report if in relation to a residential property in Scotland.
*This is the average speed from the provider with the fastest broadband package available at this postcode. The average speed displayed is based on the download speeds of at least 50% of customers at peak time (8pm to 10pm). Fibre/cable services at the postcode are subject to availability and may differ between properties within a postcode. Speeds can be affected by a range of technical and environmental factors. The speed at the property may be lower than that listed above. You can check the estimated speed and confirm availability to a property prior to purchasing on the broadband provider's website. Providers may increase charges. The information is provided and maintained by Decision Technologies Limited. **This is indicative only and based on a 2-person household with multiple devices and simultaneous usage. Broadband performance is affected by multiple factors including number of occupants and devices, simultaneous usage, router range etc. For more information speak to your broadband provider.
Map data ©OpenStreetMap contributors.







