Crosslees Park, Thornliebank

- PROPERTY TYPE
Semi-Detached
- BEDROOMS
3
- BATHROOMS
2
- SIZE
1,033 sq ft
96 sq m
- TENUREDescribes how you own a property. There are different types of tenure - freehold, leasehold, and commonhold.Read more about tenure in our glossary page.
Freehold
Key features
- An extended semi-detached family house in a prime southside location
- Flexible accommodation over two levels
- 3 bedrooms and 3 reception rooms
- Quiet cul-de-sac setting
- Private enclosed gardens
- Excellent school catchment
- Driveway and garage
Description
This traditional extended semi-detached villa enjoys an ever popular Thornliebank location. Set within private garden grounds, the subjects have been extended to the rear and side, and provide a great opportunity to the local marketplace.
This home lends itself for flexible living space finished in fresh neutral decor with quality fixtures and fittings throughout. Offering favourably proportioned accommodation which in brief extends to entrance hall, lounge, dining area and kitchen open plan to family room. Utility room with garage access and shower room. Upstairs landing area gives access to generous principal bedroom with fitted storage, two further spacious, bedrooms and main family bathroom. Additional storage provided by way of attic space. The specification includes a system of gas central heating, double glazed windows and the property is presented in neutral decorative tones throughout.
Externally the property is set within private and easily maintained gardens with patio area and level lawned area providing an ideal space for outside enjoyment. The gardens are secure and fully enclosed. Driveway to the front providing vehicular parking leading to the garage.
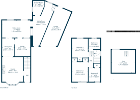
The floor plan shall provide you with a detailed layout of this well laid out home, however we recommend viewing to appreciate the space, versatility, and convenient setting that is on offer.
EER Band D
Local Area
Perfectly placed to take advantage of all local amenities in nearby Giffnock, Thornliebank and Newton Mearns. The property is perfectly placed for a variety of amenities which include Mearns Cross Shopping Centre which is a short drive away, Greenlaw Village which offers Waitrose and excellent further shopping facilities, nearby motorway links and Deaconsbank Golf course and Thornliebank Train Station are a short distance away. Walking distance to high achieving schooling. An abundance of sports and leisure facilities are available within East Renfrewshire including David Lloyd Sports Club, Whitecraigs Golf Club, Giffnock and Whitecraigs Tennis Clubs and Rouken Glen Park.
Brochures
Web Details- COUNCIL TAXA payment made to your local authority in order to pay for local services like schools, libraries, and refuse collection. The amount you pay depends on the value of the property.Read more about council Tax in our glossary page.
- Band: D
- PARKINGDetails of how and where vehicles can be parked, and any associated costs.Read more about parking in our glossary page.
- Driveway
- GARDENA property has access to an outdoor space, which could be private or shared.
- Yes
- ACCESSIBILITYHow a property has been adapted to meet the needs of vulnerable or disabled individuals.Read more about accessibility in our glossary page.
- Ask agent
Crosslees Park, Thornliebank
Add an important place to see how long it'd take to get there from our property listings.
__mins driving to your place
Get an instant, personalised result:
- Show sellers you’re serious
- Secure viewings faster with agents
- No impact on your credit score
Your mortgage
Notes
Staying secure when looking for property
Ensure you're up to date with our latest advice on how to avoid fraud or scams when looking for property online.
Visit our security centre to find out moreDisclaimer - Property reference NM4705. The information displayed about this property comprises a property advertisement. Rightmove.co.uk makes no warranty as to the accuracy or completeness of the advertisement or any linked or associated information, and Rightmove has no control over the content. This property advertisement does not constitute property particulars. The information is provided and maintained by Corum, Newton Mearns. Please contact the selling agent or developer directly to obtain any information which may be available under the terms of The Energy Performance of Buildings (Certificates and Inspections) (England and Wales) Regulations 2007 or the Home Report if in relation to a residential property in Scotland.
*This is the average speed from the provider with the fastest broadband package available at this postcode. The average speed displayed is based on the download speeds of at least 50% of customers at peak time (8pm to 10pm). Fibre/cable services at the postcode are subject to availability and may differ between properties within a postcode. Speeds can be affected by a range of technical and environmental factors. The speed at the property may be lower than that listed above. You can check the estimated speed and confirm availability to a property prior to purchasing on the broadband provider's website. Providers may increase charges. The information is provided and maintained by Decision Technologies Limited. **This is indicative only and based on a 2-person household with multiple devices and simultaneous usage. Broadband performance is affected by multiple factors including number of occupants and devices, simultaneous usage, router range etc. For more information speak to your broadband provider.
Map data ©OpenStreetMap contributors.







