
Edeva Court, Cambridge, Cambridgeshire, CB1 8AF
- PROPERTY TYPE
Plot
- SIZE
Ask agent
Key features
- A freehold three storey block
- Currently twelve flats (sold on leases)
- Planning permission granted for an additional storey to comprise 1 x two bedroom and 3 x one bedroom
- Structural and fire strategy reports are available in the legal pack
- All new flats will benefits from private balcony's
- Conveniently located for the amenities of Cambridge
Description
StrapLine
Auction Sale - 25/11/2025 - To book viewings, view the legal pack and register to bid please refer to the full sales particulars on the Savills Auctions websiteOf interest to builders and developers
A detached block of flats with planning permission granted to provide an additional four flats (1 x two bedroom, 3 x one bedroom), will located for the Shopping and Recreational amenities of Cambridge. Existing 12 flats sold on long leases.
Development opportunity
Description
A freehold three storey block arranged as twelve flats (sold on leases)
Location
Edeva Court runs off the east side of Wulfstan Way
An extensive range of Shopping facilities are easily accessible in the centre of Cambridge
Recreational amenities of Wandlebury Country Park and Cherry Hinton Hall Park are within close distance
Transport
National Rail- Cambridge
Planning
Permission (ref 24/01604/FUL) was granted by Cambridge City Council on 14th August 2024 for "Construction of a single storey extension at roof level comprising 4 No. self-contained residential flats (Use Class C3), including provision of car parking, cycle parking and associated works.
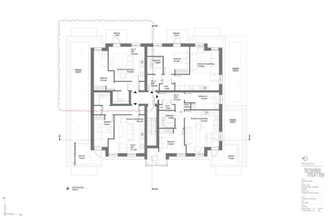
Proposed accommodation:
Third Floor:
Flat 13 (approximately 419 sq ft)- Kitchen/Living/Dining, Bedroom, Bathroom/WC, Balcony
Flat 14 (approximately 544 sq ft)- Kitchen/Living/Dining, Bedroom, Bathroom/WC, Balcony
Flat 15 (approximately 680 sq ft)- Kitchen/Living/Dining, Two Bedrooms, Bathroom/WC, Balcony
Flat 16 (approximately 448 sq ft), Kitchen/Living/Dining, Bedroom, Bathroom/WC, Balcony
Edeva Court, Cambridge, Cambridgeshire, CB1 8AF
NEAREST STATIONS
Distances are straight line measurements from the centre of the postcode- Cambridge Station1.2 miles
- Shelford Station2.2 miles
- Cambridge North3.0 miles
Notes
Disclaimer - Property reference 197-19609. The information displayed about this property comprises a property advertisement. Rightmove.co.uk makes no warranty as to the accuracy or completeness of the advertisement or any linked or associated information, and Rightmove has no control over the content. This property advertisement does not constitute property particulars. The information is provided and maintained by Savills Auctions, London. Please contact the selling agent or developer directly to obtain any information which may be available under the terms of The Energy Performance of Buildings (Certificates and Inspections) (England and Wales) Regulations 2007 or the Home Report if in relation to a residential property in Scotland.
Auction Fees: The purchase of this property may include associated fees not listed here, as it is to be sold via auction. To find out more about the fees associated with this property please call Savills Auctions, London on 020 3909 6715.
*Guide Price: An indication of a seller's minimum expectation at auction and given as a Guide Price or a range of Guide Prices. This is not necessarily the figure a property will sell for and is subject to change prior to the auction.
Reserve Price: Each auction property will be subject to a Reserve Price below which the property cannot be sold at auction. Normally the Reserve Price will be set within the range of Guide Prices or no more than 10% above a single Guide Price.
Map data ©OpenStreetMap contributors.





