
4 bedroom flat for sale
Marshall Place, Perth, PH2

- PROPERTY TYPE
Flat
- BEDROOMS
4
- BATHROOMS
2
- SIZE
1,518 sq ft
141 sq m
- TENUREDescribes how you own a property. There are different types of tenure - freehold, leasehold, and commonhold.Read more about tenure in our glossary page.
Freehold
Description
Elegant Four-Bedroom Flat with Panoramic Views Over South Inch Park with parking.
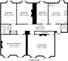
Situated on the desirable south side of Marshall Place, this charming top-floor flat occupies a prime position within a traditional four-storey mid-terraced block of stone construction. The property combines classic architectural character with bright, well-proportioned accommodation, offering a rare opportunity to own a piece of Perth’s historic streetscape.
Access to the flat is via a mutual entrance and stairwell, shared with one neighbouring property and maintained to a good standard. Internally, the flat extends to a generous layout comprising an entrance hall, spacious living room with feature window overlooking South Inch Park and wood burning stove, four double bedrooms, a modern fitted kitchen, shower room, and a separate WC. The rooms benefit from ample natural light, high ceilings, and traditional features such as decorative cornicing and new double glazed sash-and-case windows.
Externally, residents enjoy private parking and direct views over the beautiful landscaped parkland of the South Inch, ideal for leisure walks, outdoor activities, and scenic outlooks year-round.
The location offers excellent convenience, with day-to-day amenities available locally and Perth city centre less than one mile to the north, providing a wide selection of shops, cafés, restaurants, and cultural attractions. The area is also well-served by public transport, with bus and rail connections nearby, and easy access to the M90 motorway, linking Perth to Edinburgh, Dundee, and beyond.
This property represents an attractive proposition for those seeking a spacious period home in a prestigious and picturesque setting, combining historic charm with urban convenience.
EPC Rating: C
- COUNCIL TAXA payment made to your local authority in order to pay for local services like schools, libraries, and refuse collection. The amount you pay depends on the value of the property.Read more about council Tax in our glossary page.
- Band: D
- PARKINGDetails of how and where vehicles can be parked, and any associated costs.Read more about parking in our glossary page.
- Yes
- GARDENA property has access to an outdoor space, which could be private or shared.
- Ask agent
- ACCESSIBILITYHow a property has been adapted to meet the needs of vulnerable or disabled individuals.Read more about accessibility in our glossary page.
- Ask agent
Energy performance certificate - ask agent
Marshall Place, Perth, PH2
Add an important place to see how long it'd take to get there from our property listings.
__mins driving to your place
Get an instant, personalised result:
- Show sellers you’re serious
- Secure viewings faster with agents
- No impact on your credit score
Your mortgage
Notes
Staying secure when looking for property
Ensure you're up to date with our latest advice on how to avoid fraud or scams when looking for property online.
Visit our security centre to find out moreDisclaimer - Property reference 2a30f919-f35c-4d61-b58e-0290011aeb06. The information displayed about this property comprises a property advertisement. Rightmove.co.uk makes no warranty as to the accuracy or completeness of the advertisement or any linked or associated information, and Rightmove has no control over the content. This property advertisement does not constitute property particulars. The information is provided and maintained by Clyde Property, Perth. Please contact the selling agent or developer directly to obtain any information which may be available under the terms of The Energy Performance of Buildings (Certificates and Inspections) (England and Wales) Regulations 2007 or the Home Report if in relation to a residential property in Scotland.
*This is the average speed from the provider with the fastest broadband package available at this postcode. The average speed displayed is based on the download speeds of at least 50% of customers at peak time (8pm to 10pm). Fibre/cable services at the postcode are subject to availability and may differ between properties within a postcode. Speeds can be affected by a range of technical and environmental factors. The speed at the property may be lower than that listed above. You can check the estimated speed and confirm availability to a property prior to purchasing on the broadband provider's website. Providers may increase charges. The information is provided and maintained by Decision Technologies Limited. **This is indicative only and based on a 2-person household with multiple devices and simultaneous usage. Broadband performance is affected by multiple factors including number of occupants and devices, simultaneous usage, router range etc. For more information speak to your broadband provider.
Map data ©OpenStreetMap contributors.






