
Hartford Road, Bromsgrove, Worcestershire, B60

- PROPERTY TYPE
Semi-Detached
- BEDROOMS
3
- BATHROOMS
2
- SIZE
Ask agent
- TENUREDescribes how you own a property. There are different types of tenure - freehold, leasehold, and commonhold.Read more about tenure in our glossary page.
Freehold
Key features
- Rear Extension
- Desirable Location
- Modernished Throughout
- Utility
- Ground Floor Shower Room & Family Bathroom To First Floor
- Bi-Fold Doors
- South Facing Landscaped Garden
- Garage With Conversion Potential
- Near to Finstall First School
- Near To Vibrant Aston Fields & Brosmgrove High Street
Description
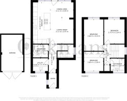
Beautifully extended and finished to an exceptional standard, this three bedroom, two bathroom semi-detached home offers stylish, modern family living in one of Bromsgrove’s most sought-after locations. Set within the highly desirable Hartford Park Estate, the property is ideally positioned for Finstall First School, the vibrant amenities of Aston Fields, and Bromsgrove Train Station, making it perfect for families and commuters alike.
The heart of the home is the impressive open-plan kitchen and dining space, complete with a central island, integrated appliances, and sleek contemporary finishes. Bi-fold doors create a seamless transition out to the beautifully landscaped south-facing garden, featuring a smart patio area — perfect for entertaining and enjoying the sunshine.
The ground floor also features a highly practical utility room and a modern shower room, adding valuable convenience for busy households.
Upstairs, the first floor offers three well-proportioned bedrooms and a stylish family bathroom, providing comfortable accommodation for families or visiting guests.
Further potential is offered via the garage, which lends itself perfectly to conversion into a lounge, study, playroom, or even a fourth bedroom (subject to planning/regulations).
With its combination of contemporary living spaces, generous accommodation, south-facing gardens and a prime location close to popular amenities, schooling and transport links, this is a home that truly stands out.
Early viewing is highly recommended.
- COUNCIL TAXA payment made to your local authority in order to pay for local services like schools, libraries, and refuse collection. The amount you pay depends on the value of the property.Read more about council Tax in our glossary page.
- Band: TBC
- PARKINGDetails of how and where vehicles can be parked, and any associated costs.Read more about parking in our glossary page.
- Garage,Driveway
- GARDENA property has access to an outdoor space, which could be private or shared.
- Yes
- ACCESSIBILITYHow a property has been adapted to meet the needs of vulnerable or disabled individuals.Read more about accessibility in our glossary page.
- Ask agent
Hartford Road, Bromsgrove, Worcestershire, B60
Add an important place to see how long it'd take to get there from our property listings.
__mins driving to your place
Get an instant, personalised result:
- Show sellers you’re serious
- Secure viewings faster with agents
- No impact on your credit score
Your mortgage
Notes
Staying secure when looking for property
Ensure you're up to date with our latest advice on how to avoid fraud or scams when looking for property online.
Visit our security centre to find out moreDisclaimer - Property reference HBN251526. The information displayed about this property comprises a property advertisement. Rightmove.co.uk makes no warranty as to the accuracy or completeness of the advertisement or any linked or associated information, and Rightmove has no control over the content. This property advertisement does not constitute property particulars. The information is provided and maintained by Oakmans Estate Agents, Bromsgrove. Please contact the selling agent or developer directly to obtain any information which may be available under the terms of The Energy Performance of Buildings (Certificates and Inspections) (England and Wales) Regulations 2007 or the Home Report if in relation to a residential property in Scotland.
*This is the average speed from the provider with the fastest broadband package available at this postcode. The average speed displayed is based on the download speeds of at least 50% of customers at peak time (8pm to 10pm). Fibre/cable services at the postcode are subject to availability and may differ between properties within a postcode. Speeds can be affected by a range of technical and environmental factors. The speed at the property may be lower than that listed above. You can check the estimated speed and confirm availability to a property prior to purchasing on the broadband provider's website. Providers may increase charges. The information is provided and maintained by Decision Technologies Limited. **This is indicative only and based on a 2-person household with multiple devices and simultaneous usage. Broadband performance is affected by multiple factors including number of occupants and devices, simultaneous usage, router range etc. For more information speak to your broadband provider.
Map data ©OpenStreetMap contributors.





