4 bedroom detached house for sale
Chivilas Road, Camborne

- PROPERTY TYPE
Detached
- BEDROOMS
4
- BATHROOMS
2
- SIZE
1,090 sq ft
101 sq m
- TENUREDescribes how you own a property. There are different types of tenure - freehold, leasehold, and commonhold.Read more about tenure in our glossary page.
Freehold
Key features
- IMMACULATE DETACHED FAMILY HOME
- THREE/FOUR BEDROOMS
- MASTER ENSUITE
- SUNNY ENCLOSED GARDEN
- BEAUTIFUL KITCHEN/DINING ROOM
- DUAL ASPECT LIVING ROOM
- UTILITY ROOM
- OFF ROAD PARKING
- OPEN VIEWS TO THE REAR
- SCAN QR FOR MATERIAL INFORMATION
Description
Property Description - Situated in a quiet Cul De Sac and enjoying an open rear aspect is this immaculate three/four bedroom family home, perfectly suited to a growing family. The current vendors have made superb improvements to the accommodation which enjoys plenty of natural light and now comprises a welcoming entrance hall with large under stairs cupboard, cloak room, a generous dual aspect living room, upgraded kitchen with integrated appliances, a comfortable dining area, utility room and a versatile office/ground floor single bedroom. To the first floor you will find a family bathroom and three further bedrooms with the master boasting an ensuite. Outside, the property is nicely set back on corner plot with a level lawned front garden and driveway providing off road parking. The rear enjoys a westerly facing, sunny enclosed garden which is predominantly laid to lawn along with a quality composite decked patio area providing the perfect space for children, pets an entertaining. Other benefits include gas central heating, double glazing with fitted blinds, oak internal doors and the remainder of a 10 year NHBC guarantee.
Location - Chivilas Road is a quiet Cul De Sac situated in a popular modern development on the outskirts of Camborne. Camborne is a Historic mining town in Mid West Cornwall which sits on the main A30 and mainline railway offering excellent transport links through the county and beyond. The town offers a wide range of retail and leisure facilities, schools for all ages and several beaches are within a short drive with popular choices including Portreath, Gwithian, and Porthtowan, all located within 7 miles.
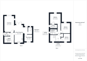
Accommodaiton In Detail - (All dimensions are approximate and measured by LiDAR)
Entrance - Composite door into:
Entrance Hall - A welcoming entrance hall with stairs rising to the first floor and large storage cupboard below, space for hanging coats, radiators, oak internal doors to cloak room, living room and kitchen.
Cloak Room - W.C with concealed cistern and hand basin with tiled splash back and cupboard below, tiled flooring, chrome effect heated towel rail, obscure double glazed window, extractor fan.
Living Room - A generous dual aspect living room with attractive half panelled walls, two double glazed windows with fitted blinds, radiator, opening into:
Kitchen/Dining Room - A beautiful kitchen/dining room which is the real 'hub of the home' enjoying a light and bright space with plenty of room for a large dining table and chairs. The kitchen is well appointed including a wide selection of matching shaker style base and wall units, stone effect work surfaces with complimentary tiled splash backs. Integrated appliances include a dishwasher, fridge/freezer, oven, hob, extractor, wine cooler and composite sink with drainer. There is also a double glazed window to the front, double glazed patio doors leading onto the rear garden and an additional floor to ceiling window all with fitted blinds, tiled flooring, modern decorative radiator and inset lighting. Oak internal doors lead into the utility and office/bedroom.
Utility - A useful utility space which matches the quality of the kitchen with further base and wall units, stone effect work surface with tiled splash back and an additional composite sink, inset lighting, tiled flooring, radiator, double glazed window, integrated washing machine and space for tumble dryer.
Office/Bedroom - A versatile room which could be used as a fourth single bedroom, office or snug. Vaulted ceiling with inset lighting, radiator, double glazed window with fitted blinds.
First Floor -
Landing - An open landing with a returning staircase with double glazed window, airing cupboard, oak internal doors to bedrooms and bathroom.
Bedroom One - Double glazed window with fitted blinds, radiator, oak internal door into:
Ensuite - A modern three piece shower suite comprising shower cubicle with tiled surround, W.C with concealed cistern and hand basin with fitted cupboard, chrome effect heated towel rail, tiled flooring, extractor fan, obscure doble glazed window.
Bedroom Two - Double glazed window with fitted blinds, radiator.
Bedroom Three - Double glazed window with fitted blinds, radiator.
Family Bathroom - A white three piece bathroom suite comprising bath with shower over and tiled surround, W.C with concealed cistern and hand basin with fitted cupboard, chrome effect heated towel rail, tiled floor, obscure double glazed window, extractor fan.
Outside - The property sits on a corner plot, approached over a pathway with a level lawned front garden with hedged border and a driveway providing off road parking. A pedestrian gate to the side gives access into the rear where you will find a private, family and pet friendly enclosed garden. The garden enjoys afternoon to evening sun with its westerly aspect and boasts a high quality composite decked area perfect for out door entertaining. The main garden is laid to lawn with fenced boundaries, flower bed borders and a useful tool shed. The garden also backs onto a wildlife area which can be seen from the first floor with the views extending beyond towards the north coast.
Directions - From Camborne Town travel down Fore Street onto Tehidy Road taking the right turn onto Enys Road. Continue to the top of Enys Road and straight over the cross roads onto Boiler Works Road. Take the left turn into West Seton then Right onto Chivilas Road where the property can be found after a short distance on your left hand side.
Material Information - Council Tax band: B
Tenure: Freehold
Property type: House
Property construction: Standard construction
Energy Performance rating: B
Number and types of room: 3 bedrooms, 2 bathrooms, 2 receptions
Electricity supply: Mains electricity
Solar Panels: No
Other electricity sources: No
Water supply: Mains water supply
Sewerage: Mains
Heating: Mains gas-powered central heating is installed.
Heating features: None
Broadband: FTTP (Fibre to the Premises)
Mobile coverage: O2 - Good, Vodafone - Good, Three - Good, EE - Good
Parking: Private
Building safety issues: No
Restrictions - Listed Building: No
Restrictions - Conservation Area: No
Restrictions - Tree Preservation Orders: None
Public right of way: No
Long-term area flood risk: No
Historical flooding: No
Flood defences: No
Coastal erosion risk: No
Planning permission issues: No
Accessibility and adaptations: Level access
Coal mining area: No
Non-coal mining area: Yes
All information is provided without warranty. Contains HM Land Registry data © Crown copyright and database right 2021. This data is licensed under the Open Government Licence v3.0.
The information contained is intended to help you decide whether the property is suitable for you. You should verify any answers which are important to you with your property lawyer or surveyor or ask for quotes from the appropriate trade experts: builder, plumber, electrician, damp, and timber expert.
Brochures
Chivilas Road, CamborneMATERIAL INFORMATIONBrochure- COUNCIL TAXA payment made to your local authority in order to pay for local services like schools, libraries, and refuse collection. The amount you pay depends on the value of the property.Read more about council Tax in our glossary page.
- Band: B
- PARKINGDetails of how and where vehicles can be parked, and any associated costs.Read more about parking in our glossary page.
- No disabled parking
- GARDENA property has access to an outdoor space, which could be private or shared.
- Yes
- ACCESSIBILITYHow a property has been adapted to meet the needs of vulnerable or disabled individuals.Read more about accessibility in our glossary page.
- Level access
Chivilas Road, Camborne
Add an important place to see how long it'd take to get there from our property listings.
__mins driving to your place
Get an instant, personalised result:
- Show sellers you’re serious
- Secure viewings faster with agents
- No impact on your credit score
Your mortgage
Notes
Staying secure when looking for property
Ensure you're up to date with our latest advice on how to avoid fraud or scams when looking for property online.
Visit our security centre to find out moreDisclaimer - Property reference 34308602. The information displayed about this property comprises a property advertisement. Rightmove.co.uk makes no warranty as to the accuracy or completeness of the advertisement or any linked or associated information, and Rightmove has no control over the content. This property advertisement does not constitute property particulars. The information is provided and maintained by Millerson, Camborne. Please contact the selling agent or developer directly to obtain any information which may be available under the terms of The Energy Performance of Buildings (Certificates and Inspections) (England and Wales) Regulations 2007 or the Home Report if in relation to a residential property in Scotland.
*This is the average speed from the provider with the fastest broadband package available at this postcode. The average speed displayed is based on the download speeds of at least 50% of customers at peak time (8pm to 10pm). Fibre/cable services at the postcode are subject to availability and may differ between properties within a postcode. Speeds can be affected by a range of technical and environmental factors. The speed at the property may be lower than that listed above. You can check the estimated speed and confirm availability to a property prior to purchasing on the broadband provider's website. Providers may increase charges. The information is provided and maintained by Decision Technologies Limited. **This is indicative only and based on a 2-person household with multiple devices and simultaneous usage. Broadband performance is affected by multiple factors including number of occupants and devices, simultaneous usage, router range etc. For more information speak to your broadband provider.
Map data ©OpenStreetMap contributors.





