
South Clarewood Barns, Corbridge, Northumberland, NE45
- PROPERTY TYPE
Land
- SIZE
Ask agent
Key features
- Development opportunity in prime location
- 5 units from 3 conversions and 2 new builds
- Sought after Tyne Valley
- location between Matfen and Corbridge
- Peaceful rural position
- Far reaching views
- Good degree of privacy afforded each unit
- Full Planning Permission
Description
South Clarewood Farm presents an exciting development opportunity comprising a range of attractive traditional and modern agricultural buildings that are approved for conversion to residential use under Planning Reference 24/00304/FUL.
An application has been made to amend the consent so that the conversion of the contemporary units is changed to a consent for two new-build units. Consent for this is imminent.
The steading lies in a beautiful rural location to the south of Matfen and to the north of Corbridge, close to the historic Hadrian’s Wall, a World Heritage Site. These houses will each benefit from expansive views north and south over the surrounding rolling countryside.
The development has been thoughtfully considered to ensure that the rustic charm and character alongside the historic setting is respected, retained and enhanced with privacy and movement within the site borne in mind. The revised scheme means that the existing modern agricultural sheds will be replaced with buildings of a more sensitive traditional scale and design yet still retaining the agricultural character of the site using a combination of natural stone and timber. Each unit will come with a generous area of garden.
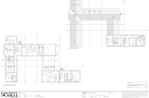
PLOTS 1 & 2
Planning permission (24/00304/FUL) for plots 1 and 2 was granted through permitted rights with the conversion of one big modern shed into Class Q type houses. A further application has been submitted to the Local Authority for a newbuild scheme of traditional appearance in place of the conversion of the contemporary buildings.
This scheme will provide two 4 to 5 bedroom houses with open plan living, each taking full advantage of the setting of the site and the expansive countryside views. Each of these houses will have a double garage. A decision for this application is expected in November 2025.
Consent exists for three conversions of traditional buildings to create Plots 3, 4, and 5.
PLOT 3
2820 sq.ft. (237 sq.m), 2 Storeys, 4 x Bedrooms briefly comprising:
Living/Dining/Kitchen | Utility Cloakroom | Ground Floor WC Office | 2 x Ground floor ensuite bedrooms | 2 x First Floor Bedrooms (1 en-suite) | Family Bathroom
PLOT 4
3165 sq.ft. (280 sq.m.) 2 Storeys, 5 Bedrooms briefly comprising:
Living Room | Kitchen/Dining Room | Utility | Cloaks/WC | 3 x Ground floor bedrooms (1 en-suite) | Ground Floor Bathroom | 2 x First Floor Bedrooms | First Floor Bathroom
PLOT 5
1485 sq.ft. (122 sq.m), Single storey, 3 Bedrooms briefly comprising:
Living Room | Kitchen/Dining Room | 3 x Bedrooms (1 en-suite) | Shower Room
LOCATION
The steading is located at South Clarewood, in a stunning rural setting approximately 2 miles to the south of Matfen. Matfen is one of the most desirable Northumbrian villages. Conveniently located just 15 miles west of Newcastle, Matfen offers a selection of local amenities, including a village shop, a tearoom, a popular pub, a village hall, a parish church and the renowned and recently renovated five-star Matfen Hall Hotel with its golf courses, spa, swimming pool and award-winning restaurant. Further amenities are available at Corbridge, Ponteland, and Hexham, whilst more extensive facilities can be found in Newcastle upon Tyne, with an international airport and regular main line trains to London Kings Cross and Edinburgh.
The surrounding countryside of the Tyne Valley has beautiful scenery and appealing, historic villages, all of which are easily accessible via a good local road network. Many of the region’s attractions can be found within a short drive and further afield is the Lake District National Park, Northumberland National Park and the dramatic Northumberland heritage coastline. Schooling is well catered for with first schools in Stamfordham and Belsay, and first and middle schools in Corbridge. A wide range of schooling is available in Hexham, while the popular independent Mowden Hall Preparatory School is also within especially easy reach.
DIRECTIONS
Turn east onto the B6318 (The Military Road) from the Errington Arms Coffee House and roundabout on the A68. Take the second left turning and the first right. The farm steading is at the end of this drive.
Postcode: NE45 5PX
GENERAL
Services: Mains electricity supply is available but will need to be upgraded by the developer.
Mains water supply is available but will need to be upgraded by the developer.
The consent requires the installation of a sewage treatment plant for the development plus two retained houses on site.
Access: The developer will be required to install an access from the highway which serves the site plus two retained houses.
Tenure: Freehold
Local Authority: Northumberland County Council
Council Tax: Not yet available
EPC: Not yet rated
VIEWING
Strictly by appointment with Galbraith Hexham
Tel: Email:
ANTI MONEY LAUNDERING (AML) Regulations
Please note that under the 2017 AML regulations we are legally required to carry out money laundering checks against purchasers. To enable us to complete these checks purchasers will need to provide along with their offer either: a) originals of primary (e.g. a passport) and secondary (e.g. current council tax or Utility bill) or b) copies of the same certified and dated by appropriate professional. Failure to provide this information may result in an offer not being considered.
IMPORTANT NOTES
1. These particulars are intended to give a fair and overall description of the property. If any points are relevant to your interest, please ask for further information prior to viewing. Prospective purchasers are advised to seek their own professional advice.
2. Areas, measurements and distances are given as a guide. Photographs depict only certain parts of the property. Nothing within the particulars shall be deemed to be a statement as to the structural condition, nor the working order of services and appliances.
3. The Seller will not be obliged to accept the highest, or indeed any offer and has the right to accept an offer at any time or withdraw the property from the market. The Seller will not be liable for any costs incurred by interested parties.
4. If there are matters of particular importance please raise this with us and we will try to check the information for you. Particulars prepared October 2025. Photographs taken July 2025. Computer generated images created October 2025.
Brochures
ParticularsSouth Clarewood Barns, Corbridge, Northumberland, NE45
NEAREST STATIONS
Distances are straight line measurements from the centre of the postcode- Corbridge Station4.0 miles
- Riding Mill Station4.6 miles
- Prudhoe Station5.2 miles
Notes
Disclaimer - Property reference HEX240029. The information displayed about this property comprises a property advertisement. Rightmove.co.uk makes no warranty as to the accuracy or completeness of the advertisement or any linked or associated information, and Rightmove has no control over the content. This property advertisement does not constitute property particulars. The information is provided and maintained by Galbraith, Hexham. Please contact the selling agent or developer directly to obtain any information which may be available under the terms of The Energy Performance of Buildings (Certificates and Inspections) (England and Wales) Regulations 2007 or the Home Report if in relation to a residential property in Scotland.
Map data ©OpenStreetMap contributors.








