Webster Street, Dalmarnock, Glasgow, G40

Letting details
- Let available date:
- Now
- Deposit:
- £2,025A deposit provides security for a landlord against damage, or unpaid rent by a tenant.Read more about deposit in our glossary page.
- Min. Tenancy:
- Ask agent How long the landlord offers to let the property for.Read more about tenancy length in our glossary page.
- Let type:
- Long term
- Furnish type:
- Furnished
- Council Tax:
- Ask agent
- PROPERTY TYPE
Terraced
- BEDROOMS
2
- BATHROOMS
1
- SIZE
Ask agent
Key features
- Double glazing
- Shower
- Washing machine
- Tumble dryer
- Dishwasher
- Fridge Freezer
Description
This immaculate family home is offered to the rental market on a furnished basis and is in pristine condition.
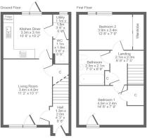
Internally the property is entered into on the ground floor level via the hallway which leads through to the living room as well as to the first floor via the staircase. The front-facing lounge has the addition of a handy under-stair cupboard and leads into the rear facing dining kitchen. The kitchen is tastefully designed and features a range of base and wall-mounted units and comes complete with integrated appliances including fridge freezer, dishwasher, electric oven and ceramic hob. Just off the kitchen are a convenient utility room housing the washing machine and a W.C.
Upstairs there is a handy storage cupboard on the landing, two double sized bedrooms, both with storage and a well-appointed three-piece bathroom with modern white three piece bathroom suite and a mains powered shower over the bath.
The property has a private fenced back garden as well as a private allocated parking space to the rear directly outside the back gate.
Further benefits include double glazing, PV solar panels, an efficient heating system, immaculate décor and furnishings throughout and private resident parking to the rear.
Webster Street is located in a great location close to Dalmarnock Train Station and the M74 Motorway. There is a 24-hour Tesco, and various fast food and coffee outlets nearby at the retail park as well as a variety of local amenities nearby including nurseries, schools at both primary and secondary levels and a host of recreational facilities. EPC rating: B. Landlord Registration Number: 536007/260/24122.
- COUNCIL TAXA payment made to your local authority in order to pay for local services like schools, libraries, and refuse collection. The amount you pay depends on the value of the property.Read more about council Tax in our glossary page.
- Band: C
- PARKINGDetails of how and where vehicles can be parked, and any associated costs.Read more about parking in our glossary page.
- Off street,Private
- GARDENA property has access to an outdoor space, which could be private or shared.
- Private garden
- ACCESSIBILITYHow a property has been adapted to meet the needs of vulnerable or disabled individuals.Read more about accessibility in our glossary page.
- Ask agent
Webster Street, Dalmarnock, Glasgow, G40
Add an important place to see how long it'd take to get there from our property listings.
__mins driving to your place



Notes
Staying secure when looking for property
Ensure you're up to date with our latest advice on how to avoid fraud or scams when looking for property online.
Visit our security centre to find out moreDisclaimer - Property reference P3735. The information displayed about this property comprises a property advertisement. Rightmove.co.uk makes no warranty as to the accuracy or completeness of the advertisement or any linked or associated information, and Rightmove has no control over the content. This property advertisement does not constitute property particulars. The information is provided and maintained by CAIRN LETTING & ESTATE AGENCY, Glasgow. Please contact the selling agent or developer directly to obtain any information which may be available under the terms of The Energy Performance of Buildings (Certificates and Inspections) (England and Wales) Regulations 2007 or the Home Report if in relation to a residential property in Scotland.
*This is the average speed from the provider with the fastest broadband package available at this postcode. The average speed displayed is based on the download speeds of at least 50% of customers at peak time (8pm to 10pm). Fibre/cable services at the postcode are subject to availability and may differ between properties within a postcode. Speeds can be affected by a range of technical and environmental factors. The speed at the property may be lower than that listed above. You can check the estimated speed and confirm availability to a property prior to purchasing on the broadband provider's website. Providers may increase charges. The information is provided and maintained by Decision Technologies Limited. **This is indicative only and based on a 2-person household with multiple devices and simultaneous usage. Broadband performance is affected by multiple factors including number of occupants and devices, simultaneous usage, router range etc. For more information speak to your broadband provider.
Map data ©OpenStreetMap contributors.




