
5 bedroom detached house for sale
Hensingham Road, Whitehaven, CA28

- PROPERTY TYPE
Detached
- BEDROOMS
5
- BATHROOMS
2
- SIZE
2,540 sq ft
236 sq m
- TENUREDescribes how you own a property. There are different types of tenure - freehold, leasehold, and commonhold.Read more about tenure in our glossary page.
Freehold
Key features
- Substantial 5 bed detached home on edge of town
- Flexible accommodation arranged over 3 floors
- Short walk to Whitehaven town centre, schools, and local amenities
- Lawned gardens to front and rear with mature fruit trees and useful outhouses
- No onward buying chain
- EPC Rating E
- Tenure: Freehold
- Council Tax Band D
Description
Set in an enviable elevated position on the edge of Whitehaven, this substantial five bedroom detached residence enjoys superb views over the town and is ideally located just a short walk from the town centre, local schools and amenities. With excellent access to the A595, it also offers great road links to nearby towns and employment centres, making it perfectly placed for modern family life.
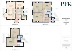
Having been in the same ownership for many years, and presented for sale with no onward chain, the property now offers an exciting opportunity for a new family to make it their forever home. The spacious and flexible layout extends across three floors, with the ground floor featuring an entrance vestibule, hallway, two large reception rooms to the front enjoying lovely outlooks, a separate dining room opening to the kitchen, and a useful walk-in pantry. A convenient WC is located on the half landing. To the first floor are three generous double bedrooms and a family bathroom, while the second floor provides two further bedrooms and a shower room, ideal for teenagers, guests, or a home office setup. Externally, the property enjoys a lawned front garden and a substantial rear garden with mature fruit trees and two outdoor stores, one housing the boiler.
With its size, setting, and potential, this is a wonderful home for growing families seeking space, convenience, and character close to town.
EPC Rating: E
Entrance Vestibule
Approached via UPVC door, with part sloped polycarbonate roof, windows to side and rear, feature tiled flooring, glazed door to hallway.
Hallway
Stairs to first floor accommodation, window to side elevation, radiator, wood effect flooring and doors to accommodation.
Lounge
4.02m x 3.71m
Large reception room with beautiful bay window to front overlooking Whitehaven, original cornicing, picture rail, traditional fireplace, radiator and wood effect flooring.
Reception Room
4.12m x 4.51m
Large reception room with traditional fireplace, window to front elevation, cornicing, picture rail, radiator and wood flooring.
Dining Room
3.87m x 2.92m
Positioned to the rear of the property and opening to the kitchen, with large window to the rear original storage cupboards and radiator.
Kitchen
2.59m x 3.08m
Fitted with a range of pine base units with solid wood worksurfacing incorporating a double stainless steel sink and drainer unit, space for cooker and fridge/freezer, door to pantry, tiled splashbacks, window to rear elevation, wooden door leading to the gardens, tiled floor and radiator.
Walk in pantry
2.39m x 1.79m
Fitted with a range of shelving and benefiting from a window to rear.
Half Landing
Stairs continuing on to the first floor, window and door to w.c
W.C
1.15m x 1.76m
Fitted with close coupled w.c, small corner wash hand basin, part wood panelled walls, obscured window.
First Floor Landing
Stairs to second floor, doors to accommodation.
Bedroom
4.05m x 4.04m
Large double bedroom with window to front overlooking the town, picture rail, original feature fireplace, wash hand basin and radiator.
Bedroom
4.09m x 4.61m
Spacious double bedroom with window to front elevation overlooking the town, feature fireplace, radiator.
Bedroom
3.9m x 3.41m
Double bedroom with dual aspect windows, feature fireplace and radiator.
Family Bathroom
2.61m x 1.84m
Fitted with four piece suite comprising concealed cistern w.c, wash hand basin, panelled bath and corner shower cubicle with electric shower. Part tiled walls, 2 windows and radiator.
Second Floor Landing
Doors to bedrooms and shower room.
Bedroom
4.08m x 4.07m
Double bedroom with part sloped ceiling, window, under eaves storage cupboard and radiator.
Bedroom
4.14m x 4.43m
Large double bedroom with original fireplace, window and radiator.
Shower Room
1.41m x 2.13m
Fitted with wash hand basin and shower cubicle with electric shower, part sloped ceiling and tiled splashbacks.
Directions
The property can be located on Hensingham Road using either CA28 8PR or What3words///amphibian.fillers.breaches
Services
Mains gas, electricity, water & drainage. Gas central heating and double glazing installed throughout. Please note: measurements are approximate so may reflect the maximum dimensions and the mention of any appliances/services within these particulars does not imply that they are in full and efficient working order.
Referral Fee Disclosure
PFK works with preferred providers for services relating to buying or selling property. These providers offer competitive pricing, but you are under no obligation to use them and are free to choose alternatives.
If you do use these services, PFK may receive a referral fee as follows (all figures include VAT):
• Conveyancing (Napthens LLP, Bendles LLP, Scott Duff & Co, Knights PLC, Newtons Ltd): £120 to £210 per completed sale or purchase
• Financial Services (Emma Harrison Financial Services): average referral fee of £221 in 2024 for arranging mortgages, insurance, and related products
• EPC and Floorplans (M & G EPCs Ltd): £35 for EPC & Floorplan, £24 for EPC only, £6 for Floorplan only
• Anti-Money Laundering (AML) Checks (via Landmark): between £8.50 and £15.50
Garden
The property is approached via steps leading up to a lawned front garden, with a pathway running to the side and giving access to the substantial rear garden. The rear garden is mainly laid to lawn and features mature fruit trees, raised beds, and attractive sandstone walling that provides both character and privacy. Adjoining the house is a useful undercover store with a doorway allowing access back round to the front of the property, together with two useful storage rooms:
Storage Room: Approx. 2.37m x 2.11m – ideal for garden equipment or general household storage.
Utility/Boiler Room: Approx. 2.12m x 2.70m – currently used as a utility space and housing the gas boiler.
Brochures
Property Brochure- COUNCIL TAXA payment made to your local authority in order to pay for local services like schools, libraries, and refuse collection. The amount you pay depends on the value of the property.Read more about council Tax in our glossary page.
- Band: D
- PARKINGDetails of how and where vehicles can be parked, and any associated costs.Read more about parking in our glossary page.
- Ask agent
- GARDENA property has access to an outdoor space, which could be private or shared.
- Private garden
- ACCESSIBILITYHow a property has been adapted to meet the needs of vulnerable or disabled individuals.Read more about accessibility in our glossary page.
- Ask agent
Hensingham Road, Whitehaven, CA28
Add an important place to see how long it'd take to get there from our property listings.
__mins driving to your place
Get an instant, personalised result:
- Show sellers you’re serious
- Secure viewings faster with agents
- No impact on your credit score
Your mortgage
Notes
Staying secure when looking for property
Ensure you're up to date with our latest advice on how to avoid fraud or scams when looking for property online.
Visit our security centre to find out moreDisclaimer - Property reference 08b25d1b-edce-4991-bd06-5dbcab314b80. The information displayed about this property comprises a property advertisement. Rightmove.co.uk makes no warranty as to the accuracy or completeness of the advertisement or any linked or associated information, and Rightmove has no control over the content. This property advertisement does not constitute property particulars. The information is provided and maintained by PFK, Cockermouth. Please contact the selling agent or developer directly to obtain any information which may be available under the terms of The Energy Performance of Buildings (Certificates and Inspections) (England and Wales) Regulations 2007 or the Home Report if in relation to a residential property in Scotland.
*This is the average speed from the provider with the fastest broadband package available at this postcode. The average speed displayed is based on the download speeds of at least 50% of customers at peak time (8pm to 10pm). Fibre/cable services at the postcode are subject to availability and may differ between properties within a postcode. Speeds can be affected by a range of technical and environmental factors. The speed at the property may be lower than that listed above. You can check the estimated speed and confirm availability to a property prior to purchasing on the broadband provider's website. Providers may increase charges. The information is provided and maintained by Decision Technologies Limited. **This is indicative only and based on a 2-person household with multiple devices and simultaneous usage. Broadband performance is affected by multiple factors including number of occupants and devices, simultaneous usage, router range etc. For more information speak to your broadband provider.
Map data ©OpenStreetMap contributors.





